大元工務店

大元工務店

"ともに"つくる家
お気に入りに追加する
北海道札幌市  Iさん
<札幌市/子ども3人/カーポート>夫婦の理想を叶え、旗竿地でも広がりを感じ、くつろげる空間に。
大元工務店 <札幌市/子ども3人/カーポート>夫婦の理想を叶え、旗竿地でも広がりを感じ、くつろげる空間に。の建築実例画像1
  • 本体価格
    3,500万円3,999万円
    87.6万円100.0万円/坪
  • 延床面積
    132.23m2 (39.9坪)
    敷地面積
    175.97m2 (53.2坪)
    家族構成
    夫婦+子ども3人
  • 竣工年月
    -
    工法
    木造軸組
この会社をもっと知りたくなったら
無料でお届け!まずはカタログ請求

施主Iさんのこだわり

理想に一層の輝きを与えた、的確な提案とさり気ない助言

Iさんの要望は「広い玄関と、家族が自然と集まるような明るい2階リビングを設けること。さらにリビングの天井は吹き抜けのように高く、大きな窓の向こうにはテラスを設けて、広がりを感じられる場所にしたい」というもの。また「リビングとつながり、子どもたちの遊び場や学習スペースになるロフト」も希望した。密にやり取りを重ね完成したのは、家族みんなが使う空間にゆとりを持たせる一方で、個室は最小限としたプランだったという。LDKにはIさんの要望をくまなく取り入れ、ロフトはキ… 続きを読む

Iさんの要望は「広い玄関と、家族が自然と集まるような明るい2階リビングを設けること。さらにリビングの天井は吹き抜けのように高く、大きな窓の向こうにはテラスを設けて、広がりを感じられる場所にしたい」というもの。また「リビングとつながり、子どもたちの遊び場や学習スペースになるロフト」も希望した。密にやり取りを重ね完成したのは、家族みんなが使う空間にゆとりを持たせる一方で、個室は最小限としたプランだったという。LDKにはIさんの要望をくまなく取り入れ、ロフトはキッチン上の空間を生かしたご夫妻も驚きの広々としたスペースにした。玄関やランドリールームは、あえて少し広めに設計されており、「住まいは部屋数よりも、居心地や使い勝手が大事。メリハリのある設計で面積以上のゆとり感を持たせました」という大元社長の考えが反映されている。実際に住んでみて心地よさも実感。3人のお子さんがいることを考慮した家事動線やきれいに保ちやすい収納のおかげで、「毎日の家事が驚くほど速く片付き気持ちにも時間にもゆとりが生まれました!」と奥様は語る。

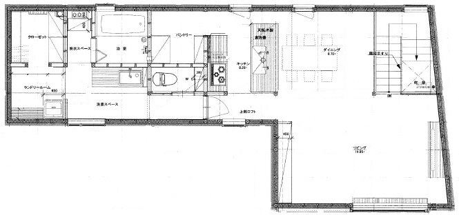
間取り図(3LDK)

1階
大元工務店 <札幌市/子ども3人/カーポート>夫婦の理想を叶え、旗竿地でも広がりを感じ、くつろげる空間に。の間取り図(3LDK)1階
2階
大元工務店 <札幌市/子ども3人/カーポート>夫婦の理想を叶え、旗竿地でも広がりを感じ、くつろげる空間に。の間取り図(3LDK)2階
この会社をもっと知りたくなったら
無料でお届け!まずはカタログ請求

内外観ギャラリー

この会社をもっと知りたくなったら
無料でお届け!まずはカタログ請求

この建築実例の担当者

2階リビングの大窓と、広いロフトスペースが特長です。ロフトはリビングにも洗面にもつながり、家族の存在感が常にわかるスペースとなりました。

大元工務店の担当者画像
代表取締役
大元敏和
得意分野
適材適所な素材選び
実績
145棟

この会社の他の建築実例を見る

この建築実例が気になった方へおすすめ

  • この建築実例のカタログをもらう

    大元工務店のカタログ画像
    総合カタログ
    大元工務店の総合カタログ
    まずは大元工務店を知ろう!コンセプトや施工例など情報が盛り沢山です
  • イベントに参加する

    大元工務店のイベント画像
    【”ともに”つくる家|社長に相談|オンライン可】自然素材を適材適所に活用した家づくりが魅力の大元工務店。ご希望を伺いながらOB宅訪問も。まずは今の夢をお話ください
    • セミナー・教室
    • 設計・資金相談会
    • 入居者宅見学会
    • その他イベント
    開催日
    2023年3月より開催。木曜定休
    開催場所
    北海道札幌市手稲区前田8条11丁目3-15

この建築実例の詳細情報

この建築実例を建てた店舗情報

住所 北海道札幌市手稲区前田8条11丁目3-15
問い合わせ
011-699-3038
  • ※営業時間内の対応となります。

  • ※お問い合わせの際は「SUUMO(スーモ)を見て」とお伝え下さい。

ホームページ この会社のホームページへ

大元工務店のコンテンツ一覧

お問い合わせ

カタログをもらう
総合カタログ
大元工務店のカタログ(大元工務店の総合カタログ)
大元工務店の総合カタログ
問合コード:1451860001
イベントに参加する
お問い合わせ先
011-699-3038
  • ※営業時間内の対応となります。

  • ※お問い合わせの際は「SUUMO(スーモ)を見て」とお伝え下さい。

  • 北海道札幌市手稲区前田8条11丁目3-15

  • 定休日:木曜日

この会社のホームページへ

この会社が気になったら

カタログをもらう
総合カタログ
大元工務店のカタログ(大元工務店の総合カタログ)
大元工務店の総合カタログ
問合コード:1451860001
イベントに参加する

関連キーワード

この建築実例のその他の特徴
5人家族  |  おしゃれ  |  開放感  |  重厚感  |  落ち着き  |  かっこいい  |  ハイセンス  |  ウッドデッキ  |  車庫
ページトップへ戻る