大元工務店

大元工務店

"ともに"つくる家
お気に入りに追加する
<札幌市/無垢材/2階リビング/薪ストーブ>建ててるときも建てた後もずっと永く愛着が持てる家
大元工務店 <札幌市/無垢材/2階リビング/薪ストーブ>建ててるときも建てた後もずっと永く愛着が持てる家の建築実例画像1
  • 本体価格
    2,500万円2,999万円
    75.1万円90.1万円/坪
  • 延床面積
    110.08m2 (33.2坪)
    敷地面積
    218.20m2 (66.0坪)
    家族構成
    夫婦+子ども2人
  • 竣工年月
    -
    工法
    木造軸組
この会社をもっと知りたくなったら
無料でお届け!まずはカタログ請求

施主Mさんのこだわり

社長自ら現場に出て汗を流してくれる。本当に、いい人に出会えました

同社のHPをみて「あったかい感じがする」という印象をもち、依頼することにしたMさん。その直感はあたっていて実際に相談してみると、簡単にできないと言わず、最良の方法を模索するその姿勢に信頼が増幅したという。例えば、土地探しの際も「まずは売り地の看板が無くても探してみて」とアドバイス。実践してみると、丁度いい場所に空き地を見つけ建築が決まったとか。さらにやりたいことと予算のバランスで悩んでいた際もコストカットの方法を提案。たとえばフローリングは育ち盛り、元気い… 続きを読む

同社のHPをみて「あったかい感じがする」という印象をもち、依頼することにしたMさん。その直感はあたっていて実際に相談してみると、簡単にできないと言わず、最良の方法を模索するその姿勢に信頼が増幅したという。例えば、土地探しの際も「まずは売り地の看板が無くても探してみて」とアドバイス。実践してみると、丁度いい場所に空き地を見つけ建築が決まったとか。さらにやりたいことと予算のバランスで悩んでいた際もコストカットの方法を提案。たとえばフローリングは育ち盛り、元気いっぱいの子どもたちの部屋は下地の合板を市松模様に張るのみとし、壁もあえて仕上げを省いたという。絶対にやりたいことは相談しながら叶える方向を模索し、すぐにやらなくて済むことは完成後に。そのメリハリある提案に満足度も上がったそう。住宅性能の良さも実感していて、就寝前に薪ストーブに薪を入れるのを止めても、翌朝、室内がほんのり暖かいという。「とにかく建ててるときも建てた後も大満足!末永く愛着のもてる家になりました」とMさんは語る。

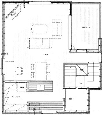
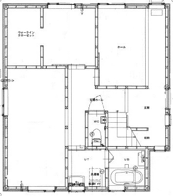
間取り図(2LDK)

1階
大元工務店 <札幌市/無垢材/2階リビング/薪ストーブ>建ててるときも建てた後もずっと永く愛着が持てる家の間取り図(2LDK)1階
2階
大元工務店 <札幌市/無垢材/2階リビング/薪ストーブ>建ててるときも建てた後もずっと永く愛着が持てる家の間取り図(2LDK)2階
この会社をもっと知りたくなったら
無料でお届け!まずはカタログ請求

内外観ギャラリー

この会社をもっと知りたくなったら
無料でお届け!まずはカタログ請求

この建築実例の担当者

裏の国有林の眺めが気に入られていたお施主さまのために、眺めを楽しめるように窓を大きく設計。素材感も考え、ウチとソトとのつながりを意識しました

大元工務店の担当者画像
代表取締役
大元敏和
得意分野
適材適所な素材選び
実績
145棟

この会社の他の建築実例を見る

この建築実例が気になった方へおすすめ

  • この建築実例のカタログをもらう

    大元工務店のカタログ画像
    総合カタログ
    大元工務店の総合カタログ
    まずは大元工務店を知ろう!コンセプトや施工例など情報が盛り沢山です
  • イベントに参加する

    大元工務店のイベント画像
    【”ともに”つくる家|社長に相談|オンライン可】自然素材を適材適所に活用した家づくりが魅力の大元工務店。ご希望を伺いながらOB宅訪問も。まずは今の夢をお話ください
    • セミナー・教室
    • 設計・資金相談会
    • 入居者宅見学会
    • その他イベント
    開催日
    2023年3月より開催。木曜定休
    開催場所
    北海道札幌市手稲区前田8条11丁目3-15

この建築実例の詳細情報

この建築実例を建てた店舗情報

住所 北海道札幌市手稲区前田8条11丁目3-15
問い合わせ
011-699-3038
  • ※営業時間内の対応となります。

  • ※お問い合わせの際は「SUUMO(スーモ)を見て」とお伝え下さい。

ホームページ この会社のホームページへ

大元工務店のコンテンツ一覧

お問い合わせ

カタログをもらう
総合カタログ
大元工務店のカタログ(大元工務店の総合カタログ)
大元工務店の総合カタログ
問合コード:1451860001
イベントに参加する
お問い合わせ先
011-699-3038
  • ※営業時間内の対応となります。

  • ※お問い合わせの際は「SUUMO(スーモ)を見て」とお伝え下さい。

  • 北海道札幌市手稲区前田8条11丁目3-15

  • 定休日:木曜日

この会社のホームページへ

この会社が気になったら

カタログをもらう
総合カタログ
大元工務店のカタログ(大元工務店の総合カタログ)
大元工務店の総合カタログ
問合コード:1451860001
イベントに参加する

関連キーワード

この建築実例のその他の特徴
ページトップへ戻る