大元工務店

大元工務店

"ともに"つくる家
お気に入りに追加する
北海道千歳市  Kさん
<千歳市/2階リビング/ビルドインガレージ>住宅街でも開放感を感じる、お気に入りの我が家
大元工務店 <千歳市/2階リビング/ビルドインガレージ>住宅街でも開放感を感じる、お気に入りの我が家の建築実例画像1
  • 本体価格
    3,500万円3,999万円
    59.9万円68.4万円/坪
  • 延床面積
    193.38m2 (58.4坪)
    敷地面積
    242.86m2 (73.4坪)
    家族構成
    夫婦+子ども2人
  • 竣工年月
    -
    工法
    木造軸組
この会社をもっと知りたくなったら
無料でお届け!まずはカタログ請求

施主Kさんのこだわり

性能とコストのバランスを考え、高性能住宅を夢で終わらせない

いくつもの会社のホームページを見て回った結果、「100年という長いスパンで住み続けられるような家を建てること」をポリシーにしている同社が一番気になったというKさん。「家づくりに対してひたむきに取り組んでいる雰囲気が伝わってきて、ここなら自分たちの希望を叶えてくれそう」という気持ちになったという。ご夫妻のペースを尊重し、適度な距離感をキープして検討させてくれたことも魅力だったそうだ。長期優良住宅仕様に匹敵する家づくりを基本とする同社の家づくりは、耐震性や断熱… 続きを読む

いくつもの会社のホームページを見て回った結果、「100年という長いスパンで住み続けられるような家を建てること」をポリシーにしている同社が一番気になったというKさん。「家づくりに対してひたむきに取り組んでいる雰囲気が伝わってきて、ここなら自分たちの希望を叶えてくれそう」という気持ちになったという。ご夫妻のペースを尊重し、適度な距離感をキープして検討させてくれたことも魅力だったそうだ。長期優良住宅仕様に匹敵する家づくりを基本とする同社の家づくりは、耐震性や断熱性などの住宅性能を重視していたKさんにぴったりだった。しかも、その家の特徴に合わせた適材適所なプランによって、予算を超えることなく性能とコストのバランスを取っている。強度を重視しコンクリート造にした1階は、車2台が入る車庫を中心に収納やご主人の書斎を設けた。それにより実現した2階のLDKと、水まわりや寝室の配置でワンフロアで生活が完結するようになっている。光がたっぷり射し込む広々としたリビングと扉1枚で子ども部屋があり、親子がいつでもそれぞれの気配を感じられ安心だ。住んでからも大満足で、遊びに来た友人たちが「こんなステキな家、どこで建てたの」と興味津々。「それだけ誰もが気になる家に仕上がったことをとても嬉しく思います。」と笑顔で語る奥さん。

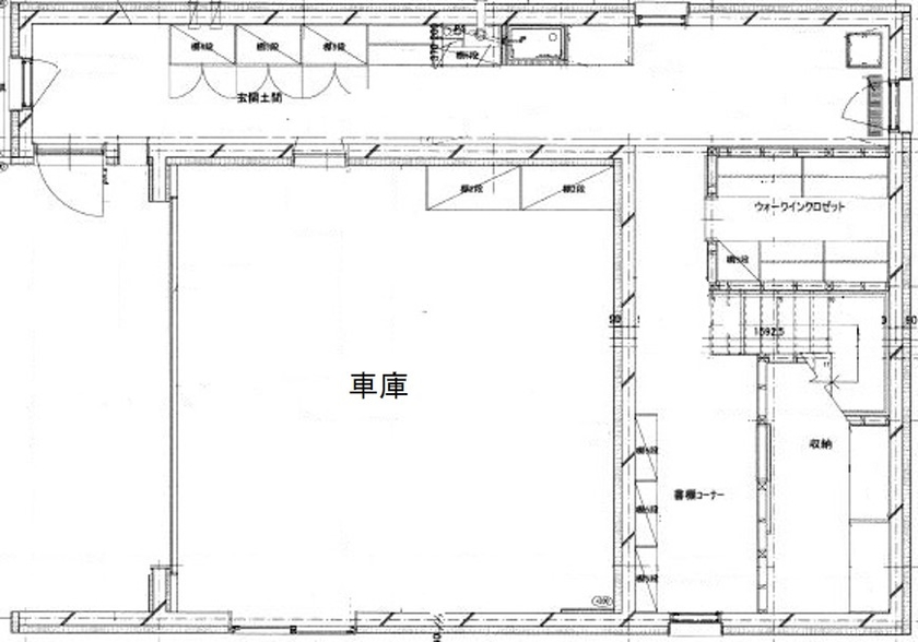
間取り図(3LDK)

1階
大元工務店 <千歳市/2階リビング/ビルドインガレージ>住宅街でも開放感を感じる、お気に入りの我が家の間取り図(3LDK)1階
2階
大元工務店 <千歳市/2階リビング/ビルドインガレージ>住宅街でも開放感を感じる、お気に入りの我が家の間取り図(3LDK)2階
この会社をもっと知りたくなったら
無料でお届け!まずはカタログ請求

内外観ギャラリー

この会社をもっと知りたくなったら
無料でお届け!まずはカタログ請求

この建築実例の担当者

玄関から2階に上がっていくときにワクワク感を感じるように工夫しました。プライバシーに配慮したバルコニーなどもこのお宅の特長です

大元工務店の担当者画像
代表取締役
大元敏和
得意分野
適材適所な素材選び
実績
145棟

この会社の他の建築実例を見る

この建築実例が気になった方へおすすめ

  • この建築実例のカタログをもらう

    大元工務店のカタログ画像
    総合カタログ
    大元工務店の総合カタログ
    まずは大元工務店を知ろう!コンセプトや施工例など情報が盛り沢山です
  • イベントに参加する

    大元工務店のイベント画像
    【”ともに”つくる家|社長に相談|オンライン可】自然素材を適材適所に活用した家づくりが魅力の大元工務店。ご希望を伺いながらOB宅訪問も。まずは今の夢をお話ください
    • セミナー・教室
    • 設計・資金相談会
    • 入居者宅見学会
    • その他イベント
    開催日
    2023年3月より開催。木曜定休
    開催場所
    北海道札幌市手稲区前田8条11丁目3-15

この建築実例の詳細情報

この建築実例を建てた店舗情報

住所 北海道札幌市手稲区前田8条11丁目3-15
問い合わせ
011-699-3038
  • ※営業時間内の対応となります。

  • ※お問い合わせの際は「SUUMO(スーモ)を見て」とお伝え下さい。

ホームページ この会社のホームページへ

大元工務店のコンテンツ一覧

お問い合わせ

カタログをもらう
総合カタログ
大元工務店のカタログ(大元工務店の総合カタログ)
大元工務店の総合カタログ
問合コード:1451860001
イベントに参加する
お問い合わせ先
011-699-3038
  • ※営業時間内の対応となります。

  • ※お問い合わせの際は「SUUMO(スーモ)を見て」とお伝え下さい。

  • 北海道札幌市手稲区前田8条11丁目3-15

  • 定休日:木曜日

この会社のホームページへ

この会社が気になったら

カタログをもらう
総合カタログ
大元工務店のカタログ(大元工務店の総合カタログ)
大元工務店の総合カタログ
問合コード:1451860001
イベントに参加する

関連キーワード

この建築実例のその他の特徴
4人家族  |  おしゃれ  |  開放感  |  ハイセンス  |  車庫
ページトップへ戻る