maida koumuten

希望予算でプランが叶う親身な対応 丁寧施工とフォロー体制を徹底
お気に入りに追加する
北海道札幌市清田区  Kさん
【札幌市/2000万円台/4LDK間取り/吹抜け/書斎】木のぬくもりを感じる和モダンな住まい
maida koumuten 【札幌市/2000万円台/4LDK間取り/吹抜け/書斎】木のぬくもりを感じる和モダンな住まいの建築実例画像1
  • 本体価格
    2,865万円
    79.0万円/坪
  • 延床面積
    119.99m2 (36.2坪)
    敷地面積
    208.30m2 (63.0坪)
    家族構成
    -
  • 竣工年月
    -
    工法
    木造軸組
この会社をもっと知りたくなったら
無料でお届け!まずはカタログ請求

施主Kさんのこだわり

吹抜けの開放感、白と木目で彩られた内観が印象的な住まい

注文住宅の専門店として豊富な実績を持つマイダ工務店は、お仕着せの提案ではなくお客様の要望を丁寧にヒアリングすることを得意としている。今回も様々な要望をヒアリングし、外観は木目を利用して重厚感ある仕上がりにしつつも内観は窓や吹き抜け、明るさから柔らかい印象を与える住まいとなった。お客様もイメージできていなかったプランとなり、大満足なご様子だ。

注文住宅の専門店として豊富な実績を持つマイダ工務店は、お仕着せの提案ではなくお客様の要望を丁寧にヒアリングすることを得意としている。今回も様々な要望をヒアリングし、外観は木目を利用して重厚感ある仕上がりにしつつも内観は窓や吹き抜け、明るさから柔らかい印象を与える住まいとなった。お客様もイメージできていなかったプランとなり、大満足なご様子だ。

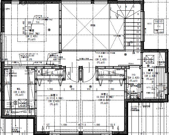
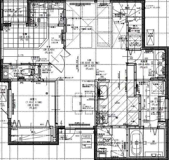
間取り図(4LDK)

1階
maida koumuten 【札幌市/2000万円台/4LDK間取り/吹抜け/書斎】木のぬくもりを感じる和モダンな住まいの間取り図(4LDK)1階
2階
maida koumuten 【札幌市/2000万円台/4LDK間取り/吹抜け/書斎】木のぬくもりを感じる和モダンな住まいの間取り図(4LDK)2階
この会社をもっと知りたくなったら
無料でお届け!まずはカタログ請求

内外観ギャラリー

この会社をもっと知りたくなったら
無料でお届け!まずはカタログ請求

この会社の他の建築実例を見る

この建築実例が気になった方へおすすめ

この建築実例の詳細情報

この建築実例を建てた店舗情報

住所 北海道札幌市東区北35条東25丁目4-16
問い合わせ
011-787-3535
  • ※営業時間内の対応となります。

  • ※お問い合わせの際は「SUUMO(スーモ)を見て」とお伝え下さい。

ホームページ この会社のホームページへ

maida koumutenのコンテンツ一覧

お問い合わせ

カタログをもらう
イベントに参加する
お問い合わせ先
011-787-3535
  • ※営業時間内の対応となります。

  • ※お問い合わせの際は「SUUMO(スーモ)を見て」とお伝え下さい。

  • 北海道札幌市東区北35条東25丁目4-16

  • 定休日:-

この会社のホームページへ
カタログ一覧

この会社が気になったら

カタログをもらう
イベントに参加する

関連キーワード

この建築実例のその他の特徴
クラシック  |  和風モダン  |  おしゃれ  |  かわいい  |  開放感  |  重厚感  |  かっこいい  |  クール  |  ハイセンス  |  子供部屋
ページトップへ戻る