maida koumuten

希望予算でプランが叶う親身な対応 丁寧施工とフォロー体制を徹底
お気に入りに追加する
北海道札幌市清田区  Sさん
【2000万円台/札幌市/床暖房/4LDK間取り】家事ラク動線とシンプルデザインを突き詰めた穏やかな住まい
maida koumuten 【2000万円台/札幌市/床暖房/4LDK間取り】家事ラク動線とシンプルデザインを突き詰めた穏やかな住まいの建築実例画像1
  • 本体価格
    2,040万円
    55.0万円/坪
  • 延床面積
    122.70m2 (37.1坪)
    敷地面積
    -
    家族構成
    3人
  • 竣工年月
    -
    工法
    木造軸組
この会社をもっと知りたくなったら
無料でお届け!まずはカタログ請求

施主Sさんのこだわり

こだわりのデザインとフルフラットキッチン。床暖房で、真冬の寒さを感じない快適な家

外観は、【シンプルでデザインをカッコよく!!】内観は、【開放的に見渡せるように!!】この2つのコンセプトと高気密・高断熱で床暖房の暖かい家を作りたいと弊社に御依頼いただきました。施主様のご要望とご予算を建物・土地からトータルコーディネートし、毎月のランニングコストを抑え夏の暑さ・冬の寒さを感じさせないと大満足な家が完成致しました。長く住む家だからこそ回遊動線で日々の動線を考え、使い勝手よく家族団欒を過ごすリビングは、開放的に。床暖房が標準仕様なので家具の配… 続きを読む

外観は、【シンプルでデザインをカッコよく!!】内観は、【開放的に見渡せるように!!】この2つのコンセプトと高気密・高断熱で床暖房の暖かい家を作りたいと弊社に御依頼いただきました。施主様のご要望とご予算を建物・土地からトータルコーディネートし、毎月のランニングコストを抑え夏の暑さ・冬の寒さを感じさせないと大満足な家が完成致しました。長く住む家だからこそ回遊動線で日々の動線を考え、使い勝手よく家族団欒を過ごすリビングは、開放的に。床暖房が標準仕様なので家具の配置は好きなように模様替えも楽しめる。

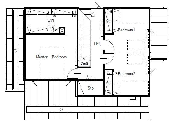
間取り図(4LDK)

1階
maida koumuten 【2000万円台/札幌市/床暖房/4LDK間取り】家事ラク動線とシンプルデザインを突き詰めた穏やかな住まいの間取り図(4LDK)1階
2階
maida koumuten 【2000万円台/札幌市/床暖房/4LDK間取り】家事ラク動線とシンプルデザインを突き詰めた穏やかな住まいの間取り図(4LDK)2階
この会社をもっと知りたくなったら
無料でお届け!まずはカタログ請求

内外観ギャラリー

この会社をもっと知りたくなったら
無料でお届け!まずはカタログ請求

この会社の他の建築実例を見る

この建築実例が気になった方へおすすめ

この建築実例の詳細情報

この建築実例を建てた店舗情報

住所 北海道札幌市東区北35条東25丁目4-16
問い合わせ
011-787-3535
  • ※営業時間内の対応となります。

  • ※お問い合わせの際は「SUUMO(スーモ)を見て」とお伝え下さい。

ホームページ この会社のホームページへ

maida koumutenのコンテンツ一覧

お問い合わせ

カタログをもらう
イベントに参加する
お問い合わせ先
011-787-3535
  • ※営業時間内の対応となります。

  • ※お問い合わせの際は「SUUMO(スーモ)を見て」とお伝え下さい。

  • 北海道札幌市東区北35条東25丁目4-16

  • 定休日:-

この会社のホームページへ
カタログ一覧

この会社が気になったら

カタログをもらう
イベントに参加する

関連キーワード

この建築実例のその他の特徴
ページトップへ戻る