maida koumuten

希望予算でプランが叶う親身な対応 丁寧施工とフォロー体制を徹底
お気に入りに追加する
【2000万円台/札幌市/二世帯住宅/間取り】黒ガルバリウムに木目が映える分離型二世帯の家
maida koumuten 【2000万円台/札幌市/二世帯住宅/間取り】黒ガルバリウムに木目が映える分離型二世帯の家の建築実例画像1
  • 本体価格
    2,900万円
    56.5万円/坪
  • 延床面積
    169.96m2 (51.4坪)
    敷地面積
    -
    家族構成
    4人
  • 竣工年月
    -
    工法
    木造軸組
この会社をもっと知りたくなったら
無料でお届け!まずはカタログ請求

施主のこだわり

分離型二世帯住宅 高気密高断熱の床暖房の家

黒のガルバリウムに木目の玄関ドアが映える。親世帯・子世帯で玄関を別々に確保し、プライベートを分ける。1Fが、親世帯・2Fが子世帯。子供の足音が、下に響かない様に1Fの天井には断熱材を充填し吸音処理の施工も施す。1Fの親世帯は、一直線にLDKと洋室を見渡しWCLで収納力も抜群。備え付けのカウンターには、収納棚も造作で作成した。2F子世帯も1F同様にキッチン前には、カウンターを施工。壁掛けTVとTVボードもリビング全体ともマッチ。和室コーナーには、飾り柱でアク… 続きを読む

黒のガルバリウムに木目の玄関ドアが映える。親世帯・子世帯で玄関を別々に確保し、プライベートを分ける。1Fが、親世帯・2Fが子世帯。子供の足音が、下に響かない様に1Fの天井には断熱材を充填し吸音処理の施工も施す。1Fの親世帯は、一直線にLDKと洋室を見渡しWCLで収納力も抜群。備え付けのカウンターには、収納棚も造作で作成した。2F子世帯も1F同様にキッチン前には、カウンターを施工。壁掛けTVとTVボードもリビング全体ともマッチ。和室コーナーには、飾り柱でアクセントを付けUTにはサンルームとファミリークローゼットを隣接にし家事導線もしっかり確保。子供部屋は、間仕切りを外し大きなスペースで家族みんなの寝室に。

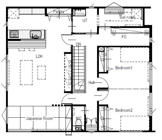
間取り図(5K以上)

1階
maida koumuten 【2000万円台/札幌市/二世帯住宅/間取り】黒ガルバリウムに木目が映える分離型二世帯の家の間取り図(5K以上)1階
2階
maida koumuten 【2000万円台/札幌市/二世帯住宅/間取り】黒ガルバリウムに木目が映える分離型二世帯の家の間取り図(5K以上)2階
この会社をもっと知りたくなったら
無料でお届け!まずはカタログ請求

内外観ギャラリー

この会社をもっと知りたくなったら
無料でお届け!まずはカタログ請求

この会社の他の建築実例を見る

この建築実例が気になった方へおすすめ

この建築実例の詳細情報

この建築実例を建てた店舗情報

住所 北海道札幌市東区北35条東25丁目4-16
問い合わせ
011-787-3535
  • ※営業時間内の対応となります。

  • ※お問い合わせの際は「SUUMO(スーモ)を見て」とお伝え下さい。

ホームページ この会社のホームページへ

maida koumutenのコンテンツ一覧

お問い合わせ

カタログをもらう
イベントに参加する
お問い合わせ先
011-787-3535
  • ※営業時間内の対応となります。

  • ※お問い合わせの際は「SUUMO(スーモ)を見て」とお伝え下さい。

  • 北海道札幌市東区北35条東25丁目4-16

  • 定休日:-

この会社のホームページへ
カタログ一覧

この会社が気になったら

カタログをもらう
イベントに参加する

関連キーワード

この建築実例のその他の特徴
ページトップへ戻る