maida koumuten

希望予算でプランが叶う親身な対応 丁寧施工とフォロー体制を徹底
お気に入りに追加する
北海道江別市  Kさん
【2000万円台/江別市/4LDK/間取り/ピン工法】オープンキッチンと開放的なリビングの床暖房の家
maida koumuten 【2000万円台/江別市/4LDK/間取り/ピン工法】オープンキッチンと開放的なリビングの床暖房の家の建築実例画像1
  • 本体価格
    2,100万円
    59.7万円/坪
  • 延床面積
    116.33m2 (35.1坪)
    敷地面積
    -
    家族構成
    -
  • 竣工年月
    -
    工法
    木造軸組
この会社をもっと知りたくなったら
無料でお届け!まずはカタログ請求

施主Kさんのこだわり

センスのいいデザインとオープンキッチンで、リビング全体を見渡す。

南に設置した吹き抜けからはさわやかな陽光が差し込む。オープンキッチンとアイアンの階段でリビングをLDKを広々と。パントリーの入り口をアーチにし可愛らしさとデザインを入れ、背面収納を造作棚に変更しアクセントクロスでまとめました。UT・SCLも十分な広さを取り回遊動線で使い勝手も〇 外観は、メインカラーをブラックにアクセントで木目調の外壁材をセレクト。高低差のある土地でしたが設計段階で外構工事のご提案行い大満足な家が、できあがりました。

南に設置した吹き抜けからはさわやかな陽光が差し込む。オープンキッチンとアイアンの階段でリビングをLDKを広々と。パントリーの入り口をアーチにし可愛らしさとデザインを入れ、背面収納を造作棚に変更しアクセントクロスでまとめました。UT・SCLも十分な広さを取り回遊動線で使い勝手も〇 外観は、メインカラーをブラックにアクセントで木目調の外壁材をセレクト。高低差のある土地でしたが設計段階で外構工事のご提案行い大満足な家が、できあがりました。

間取り図(4LDK)

1階
maida koumuten 【2000万円台/江別市/4LDK/間取り/ピン工法】オープンキッチンと開放的なリビングの床暖房の家の間取り図(4LDK)1階
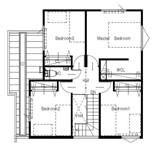
2階
maida koumuten 【2000万円台/江別市/4LDK/間取り/ピン工法】オープンキッチンと開放的なリビングの床暖房の家の間取り図(4LDK)2階
この会社をもっと知りたくなったら
無料でお届け!まずはカタログ請求

内外観ギャラリー

この会社をもっと知りたくなったら
無料でお届け!まずはカタログ請求

この会社の他の建築実例を見る

この建築実例が気になった方へおすすめ

この建築実例の詳細情報

この建築実例を建てた店舗情報

住所 北海道札幌市東区北35条東25丁目4-16
問い合わせ
011-787-3535
  • ※営業時間内の対応となります。

  • ※お問い合わせの際は「SUUMO(スーモ)を見て」とお伝え下さい。

ホームページ この会社のホームページへ

maida koumutenのコンテンツ一覧

お問い合わせ

カタログをもらう
イベントに参加する
お問い合わせ先
011-787-3535
  • ※営業時間内の対応となります。

  • ※お問い合わせの際は「SUUMO(スーモ)を見て」とお伝え下さい。

  • 北海道札幌市東区北35条東25丁目4-16

  • 定休日:-

この会社のホームページへ
カタログ一覧

この会社が気になったら

カタログをもらう
イベントに参加する

関連キーワード

この建築実例のその他の特徴
ページトップへ戻る