maida koumuten

希望予算でプランが叶う親身な対応 丁寧施工とフォロー体制を徹底
お気に入りに追加する
北海道札幌市豊平区  Sさん
【札幌市/間取り/二世帯住宅/3階建て】掘こたつ・造作家具・書斎と家族の要望を叶えた二世帯住宅
maida koumuten 【札幌市/間取り/二世帯住宅/3階建て】掘こたつ・造作家具・書斎と家族の要望を叶えた二世帯住宅の建築実例画像1
  • 本体価格
    3,120万円
    51.6万円/坪
  • 延床面積
    199.99m2 (60.4坪)
    敷地面積
    225.27m2 (68.1坪)
    家族構成
    6人家族
  • 竣工年月
    2019年4月
    工法
    木造軸組
この会社をもっと知りたくなったら
無料でお届け!まずはカタログ請求

施主Sさんのこだわり

2世帯住宅・3階建てで日当たり良好!!

当初、2階建てを希望してましたが日当たりを確保する為に3階建てにしました!日当たりもよくバルコニーで洗濯を干せることに大満足!!

当初、2階建てを希望してましたが日当たりを確保する為に3階建てにしました!日当たりもよくバルコニーで洗濯を干せることに大満足!!

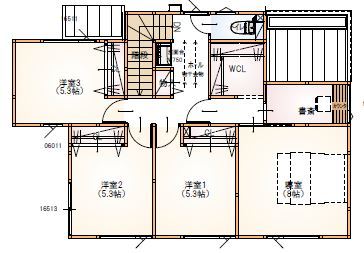
間取り図(5K以上)

1階
maida koumuten 【札幌市/間取り/二世帯住宅/3階建て】掘こたつ・造作家具・書斎と家族の要望を叶えた二世帯住宅の間取り図(5K以上)1階
2階
maida koumuten 【札幌市/間取り/二世帯住宅/3階建て】掘こたつ・造作家具・書斎と家族の要望を叶えた二世帯住宅の間取り図(5K以上)2階
3階
maida koumuten 【札幌市/間取り/二世帯住宅/3階建て】掘こたつ・造作家具・書斎と家族の要望を叶えた二世帯住宅の間取り図(5K以上)3階
この会社をもっと知りたくなったら
無料でお届け!まずはカタログ請求

内外観ギャラリー

この会社をもっと知りたくなったら
無料でお届け!まずはカタログ請求

この会社の他の建築実例を見る

この建築実例が気になった方へおすすめ

この建築実例の詳細情報

この建築実例を建てた店舗情報

住所 北海道札幌市東区北35条東25丁目4-16
問い合わせ
011-787-3535
  • ※営業時間内の対応となります。

  • ※お問い合わせの際は「SUUMO(スーモ)を見て」とお伝え下さい。

ホームページ この会社のホームページへ

maida koumutenのコンテンツ一覧

お問い合わせ

カタログをもらう
イベントに参加する
お問い合わせ先
011-787-3535
  • ※営業時間内の対応となります。

  • ※お問い合わせの際は「SUUMO(スーモ)を見て」とお伝え下さい。

  • 北海道札幌市東区北35条東25丁目4-16

  • 定休日:-

この会社のホームページへ
カタログ一覧

この会社が気になったら

カタログをもらう
イベントに参加する

関連キーワード

この建築実例のその他の特徴
ページトップへ戻る