アートホーム

アートホーム

家は器。家は家族が生活する器である。決して主張しすぎてはいけない。
お気に入りに追加する
北海道札幌市  Kさん
【A-Prot】|3330万円/札幌市/2LDK+フリースペース|広い土間玄関と2階リビング窓から季節の移ろいを感じる
  • 本体価格
    2,930万円
    74.3万円/坪
  • 延床面積
    130.45m2 (39.4坪)
    敷地面積
    168.13m2 (50.8坪)
    家族構成
    夫婦
    竣工年月
    2019年4月
    工法
    木造軸組
  • 特徴
    2階建て  |  収納充実  |  家事がラク  |  高気密・高断熱  |  高耐火  |  こだわりの外観デザイン  |  通風・採光  |  料理を楽しむ  |  …
この会社をもっと知りたくなったら
無料でお届け!まずはカタログ請求

施主Kさんのこだわり

オープンハウスで実物を体感。暮らしのイメージができました

家づくりの検討には1年ほどじっくり時間をかけたKさんご家族。住宅展示場などにも足を運んでいたがなかなか決め切れずにいたそう。そんな中アートホームのオープンハウスへ来場してすぐに気に入り建築を決めたという。ネットや写真などで見るのとは違い、自然な無垢の感じを体感して暮らしのイメージをすることができた。「玄関から広い土間を作ってもらいました。土間スペースでは趣味のサーフィンや自転車、アウトドアなど道具の手入れをしたりするのに重宝しています。」とKさん。家族や友… 続きを読む

家づくりの検討には1年ほどじっくり時間をかけたKさんご家族。住宅展示場などにも足を運んでいたがなかなか決め切れずにいたそう。そんな中アートホームのオープンハウスへ来場してすぐに気に入り建築を決めたという。ネットや写真などで見るのとは違い、自然な無垢の感じを体感して暮らしのイメージをすることができた。「玄関から広い土間を作ってもらいました。土間スペースでは趣味のサーフィンや自転車、アウトドアなど道具の手入れをしたりするのに重宝しています。」とKさん。家族や友人が集まりやすいようにキッチンを中心にプランし、リビングは一段下げることでくつろぎのスペースに。リビングのコーナー窓からは季節の移ろいを感じる山々を眺めることができる。

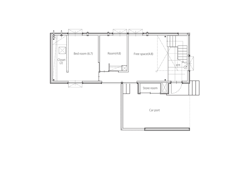
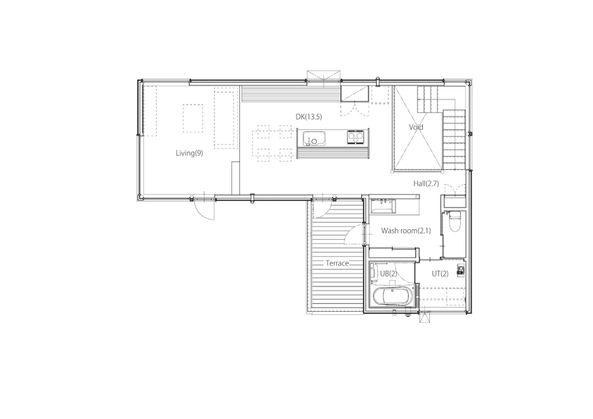
間取り図(2LDK+フリースペース)

1階
アートホーム 【A-Prot】|3330万円/札幌市/2LDK+フリースペース|広い土間玄関と2階リビング窓から季節の移ろいを感じるの間取り図(2LDK+フリースペース)1階

2階
アートホーム 【A-Prot】|3330万円/札幌市/2LDK+フリースペース|広い土間玄関と2階リビング窓から季節の移ろいを感じるの間取り図(2LDK+フリースペース)2階

この会社をもっと知りたくなったら
無料でお届け!まずはカタログ請求

内外観ギャラリー

この会社をもっと知りたくなったら
無料でお届け!まずはカタログ請求

この会社の他の建築実例を見る

この建築実例が気になった方へおすすめ

この建築実例の詳細情報

この建築実例を建てた店舗情報

店舗名 札幌支店
住所 北海道札幌市南区南30条西8丁目5-1
問い合わせ
011-581-8686
  • ※営業時間内の対応となります。

  • ※お問い合わせの際は「SUUMO(スーモ)を見て」とお伝え下さい。

ホームページ この会社のホームページへ

アートホームのコンテンツ一覧

お問い合わせ

カタログをもらう
総合カタログ
アートホームのカタログ(【アートホーム】実例やミニプロトなど商品のカタログ。)
【アートホーム】実例やミニプロトなど商品のカタログ。
問合コード:1313520001
イベントに参加する

この会社が気になったら

カタログをもらう
総合カタログ
アートホームのカタログ(【アートホーム】実例やミニプロトなど商品のカタログ。)
【アートホーム】実例やミニプロトなど商品のカタログ。
問合コード:1313520001
イベントに参加する

関連キーワード

この建築実例のその他の特徴
ページトップへ戻る