匠建(たっけん)コーポレーション

匠建(たっけん)コーポレーション

明るい陽射しと開放感がいっぱい 「床暖房の暖かさにもホッとします」
お気に入りに追加する
北海道札幌市  Tさん
【札幌市 31坪 夫婦 全室床暖房】車庫&家事室&2階リビング 思いがかなった理想の我が家!
匠建(たっけん)コーポレーション 【札幌市 31坪 夫婦 全室床暖房】車庫&家事室&2階リビング 思いがかなった理想の我が家!の建築実例画像1
  • 本体価格
    1,499万円
    48.1万円/坪
  • 延床面積
    103.10m2 (31.1坪)
    敷地面積
    -
    家族構成
    -
  • 竣工年月
    -
    工法
    木造軸組
この会社をもっと知りたくなったら
無料でお届け!まずはカタログ請求

施主Tさんのこだわり

建築会社の決め手と家づくりの要望・こだわり

匠建さんが床暖房を採用しているのをホームページで知りモデルハウスを見学しました。冬だったこともあって床暖房の暖かさを体感できたことや、予算内で要望通りの家が建てられると聞いてお願いしました。車庫や家事室など要望を具体的に伝えたくて2人で図面を描いたんです。担当者からアドバイスや提案をもらい、コストをかけずに満足のいく家が完成しました。家中どこもお気に入りのところばかりです。

匠建さんが床暖房を採用しているのをホームページで知りモデルハウスを見学しました。冬だったこともあって床暖房の暖かさを体感できたことや、予算内で要望通りの家が建てられると聞いてお願いしました。車庫や家事室など要望を具体的に伝えたくて2人で図面を描いたんです。担当者からアドバイスや提案をもらい、コストをかけずに満足のいく家が完成しました。家中どこもお気に入りのところばかりです。

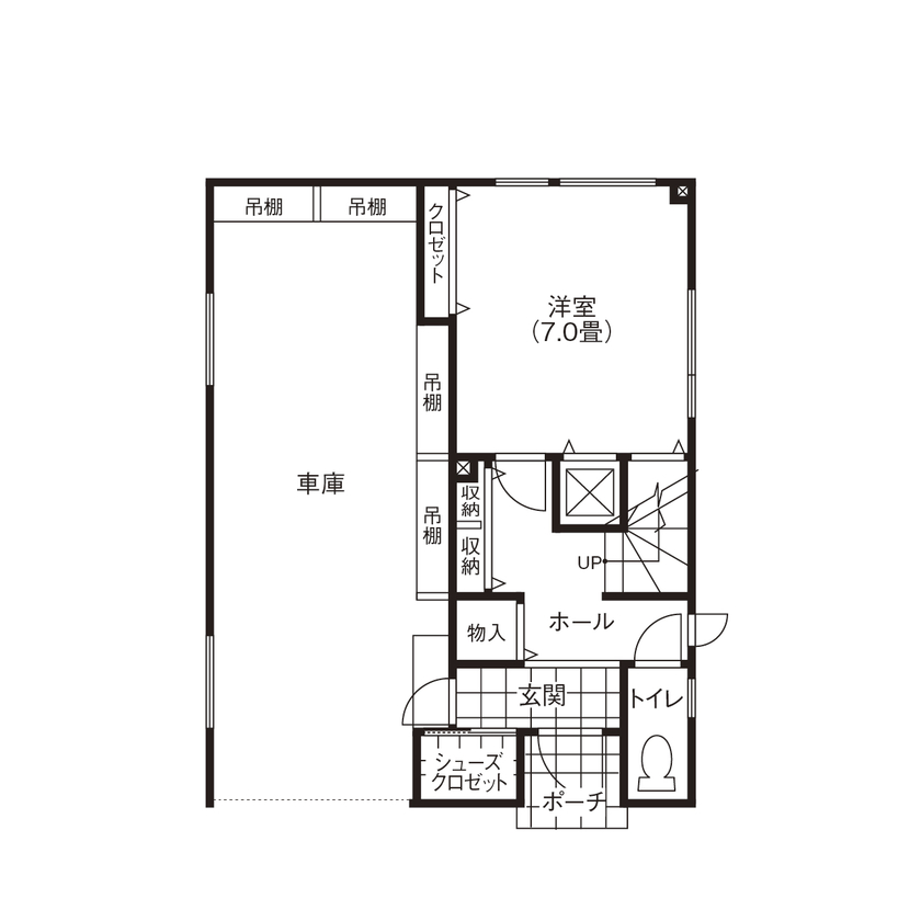
間取り図(2LDK)

1階
匠建(たっけん)コーポレーション 【札幌市 31坪 夫婦 全室床暖房】車庫&家事室&2階リビング 思いがかなった理想の我が家!の間取り図(2LDK)1階
2階
匠建(たっけん)コーポレーション 【札幌市 31坪 夫婦 全室床暖房】車庫&家事室&2階リビング 思いがかなった理想の我が家!の間取り図(2LDK)2階
この会社をもっと知りたくなったら
無料でお届け!まずはカタログ請求

内外観ギャラリー

この会社をもっと知りたくなったら
無料でお届け!まずはカタログ請求

この会社の他の建築実例を見る

この建築実例が気になった方へおすすめ

この建築実例の詳細情報

この建築実例を建てた店舗情報

住所 北海道札幌市東区北45条東5丁目5-16
問い合わせ
011-733-5506
  • ※営業時間内の対応となります。

  • ※お問い合わせの際は「SUUMO(スーモ)を見て」とお伝え下さい。

ホームページ この会社のホームページへ

匠建(たっけん)コーポレーションのコンテンツ一覧

お問い合わせ

カタログをもらう
総合カタログ
匠建(たっけん)コーポレーションのカタログ(匠建コーポレーションコンセプトブック)
匠建コーポレーションコンセプトブック
問合コード:1218140001
イベントに参加する
お問い合わせ先
011-733-5506
  • ※営業時間内の対応となります。

  • ※お問い合わせの際は「SUUMO(スーモ)を見て」とお伝え下さい。

  • 北海道札幌市東区北45条東5丁目5-16

  • 定休日:毎週水曜日 第2・4木曜日

この会社のホームページへ

この会社が気になったら

カタログをもらう
総合カタログ
匠建(たっけん)コーポレーションのカタログ(匠建コーポレーションコンセプトブック)
匠建コーポレーションコンセプトブック
問合コード:1218140001
イベントに参加する

関連キーワード

この建築実例のその他の特徴
ページトップへ戻る