専門職組合

専門職組合

自由設計、じぶんいろ。ずっとここちのいい家
お気に入りに追加する
北海道登別市  Iさん
<登別市/2LDK/収納充実>回遊動線で家事も楽々、収納豊富でゆったり暮らせる憧れの平屋
  • 本体価格
    2,200万円
    91.5万円/坪
  • 延床面積
    79.50m2 (24.0坪)
    敷地面積
    842.11m2 (254.7坪)
    家族構成
    夫婦+犬
    竣工年月
    -
    工法
    木造軸組
  • 特徴
    収納充実  |  家事がラク  |  高気密・高断熱  |  こだわりの外観デザイン  |  ナチュラル  |  共働き世帯に配慮  |  平屋  |  …
この会社をもっと知りたくなったら
無料でお届け!まずはカタログ請求

施主Iさんのこだわり

柔軟な対応が決め手!「不満は全くありません」

実家の家業を継ぐことになり、家づくりを検討しだしたIさん。最初は札幌の住宅展示場を中心に見て回っていたが、場所や工期の問題でなかなか合う会社がなかったという。そんなときに偶然ネットで見つけたのが専門職組合だ。ちょうど住宅セミナーをやっていたので、参加。滝下社長に状況を説明すると「できますよ」とあっさり回答してくれ、非常に心強かったという。こだわりは、平屋であることと、もともと住んでいたマンションと同じ間取りにしたかったということ。さらに収納を充実させゆとり… 続きを読む

実家の家業を継ぐことになり、家づくりを検討しだしたIさん。最初は札幌の住宅展示場を中心に見て回っていたが、場所や工期の問題でなかなか合う会社がなかったという。そんなときに偶然ネットで見つけたのが専門職組合だ。ちょうど住宅セミナーをやっていたので、参加。滝下社長に状況を説明すると「できますよ」とあっさり回答してくれ、非常に心強かったという。こだわりは、平屋であることと、もともと住んでいたマンションと同じ間取りにしたかったということ。さらに収納を充実させゆとりのある空間にしたかったという。また職業柄、汚れた作業着で帰ってくるのでランドリースペースや勝手口への動線にも配慮した。「予算ないにも収まったし、希望もかなった。不満は全くないですね」とIさんは語る。造作収納0円でできる同社だからこそできる柔軟なプラン設計だ。

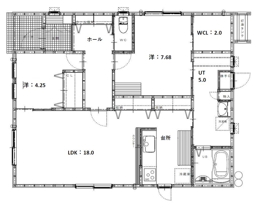
間取り図(2LDK)

1階
専門職組合 <登別市/2LDK/収納充実>回遊動線で家事も楽々、収納豊富でゆったり暮らせる憧れの平屋の間取り図(2LDK)1階

この会社をもっと知りたくなったら
無料でお届け!まずはカタログ請求

内外観ギャラリー

この会社をもっと知りたくなったら
無料でお届け!まずはカタログ請求

この会社の他の建築実例を見る

この建築実例が気になった方へおすすめ

  • この建築実例のカタログをもらう

    専門職組合のカタログ画像
    総合カタログ
    ~COLORS~ 自由設計、じぶんいろ。
    自由な設計。一人一人の「色」を設計するための実例集&プラン詳細
  • イベントに参加する

    専門職組合のイベント画像
    「平屋って本当に暮らしやすい?」その疑問に、実例と経験でお応えします|オンライン対応可
    • セミナー・教室
    • 設計・資金相談会
    • モデルハウス見学会
    • 土地相談会
    開催日
    2025/9/3(水)~随時
    開催場所
    北海道札幌市北区新川西1条4丁目2-36

この建築実例の詳細情報

この建築実例を建てた店舗情報

住所 北海道札幌市北区新川西1条4丁目2-36
問い合わせ
0117685633
  • ※営業時間内の対応となります。

  • ※お問い合わせの際は「SUUMO(スーモ)を見て」とお伝え下さい。

ホームページ この会社のホームページへ

専門職組合のコンテンツ一覧

お問い合わせ

カタログをもらう
総合カタログ
専門職組合のカタログ(~COLORS~ 自由設計、じぶんいろ。)
~COLORS~ 自由設計、じぶんいろ。
問合コード:1118820001
イベントに参加する
お問い合わせ先
0117685633
  • ※営業時間内の対応となります。

  • ※お問い合わせの際は「SUUMO(スーモ)を見て」とお伝え下さい。

  • 北海道札幌市北区新川西1条4丁目2-36

  • 定休日:水曜日

この会社のホームページへ

この会社が気になったら

カタログをもらう
総合カタログ
専門職組合のカタログ(~COLORS~ 自由設計、じぶんいろ。)
~COLORS~ 自由設計、じぶんいろ。
問合コード:1118820001
イベントに参加する

関連キーワード

この建築実例のその他の特徴
ページトップへ戻る