晃和住宅

晃和住宅

<木がある暮らし>自由設計で居心地のよい空間を
お気に入りに追加する
北海道ニセコ町  Rさん
【狭小地×ペットと暮らす×2階リビング】ニセコの大自然に溶け込み眺望にこだわった"Happy"な木の家
  • 本体価格
    2,350万円
    65.4万円/坪
  • 延床面積
    118.82m2 (35.9坪)
    敷地面積
    -
    家族構成
    夫婦+犬1匹
    竣工年月
    -
    工法
    木造軸組
  • 特徴
    耐震・免震・制震  |  2階建て  |  収納充実  |  家事がラク  |  高気密・高断熱  |  こだわりの外観デザイン  |  料理を楽しむ  |  …
この会社をもっと知りたくなったら
無料でお届け!まずはカタログ請求

施主Rさんのこだわり

羊蹄山まで一望。ニセコの夕日を眺める、「幸せで満足」な家づくり

「手つかずの緑があるこの土地に、ニセコの大自然に溶け込むような家を建てたいと思いました」とRさん。野地板の現し天井といった木の家であることなど、建築イメージはとても明確。2階からの眺望にとにかくこだわり、家と外の緑が融けあって何気なくつながるよう、ウッドデッキの色はグリーンをセレクト。おかげでリビングからニセコの大自然に落ちる美しい夕日を毎日眺められるという。建築家とコラボしたおしゃれな家づくり。要望通りに施工・塗装を同社が手掛けるなど、お客様の意向に沿っ… 続きを読む

「手つかずの緑があるこの土地に、ニセコの大自然に溶け込むような家を建てたいと思いました」とRさん。野地板の現し天井といった木の家であることなど、建築イメージはとても明確。2階からの眺望にとにかくこだわり、家と外の緑が融けあって何気なくつながるよう、ウッドデッキの色はグリーンをセレクト。おかげでリビングからニセコの大自然に落ちる美しい夕日を毎日眺められるという。建築家とコラボしたおしゃれな家づくり。要望通りに施工・塗装を同社が手掛けるなど、お客様の意向に沿った家づくり、フレキシブルな対応には感謝いっぱいという。畳に座った姿勢でも景色が楽しめる和室、オープンなリビング、木の香り漂うツリーハウスの雰囲気にも大満足。最初は平屋にしようかと考えていた夫妻も、2階建てにしたことで、この土地の魅力をより活かすことができたと実感している。

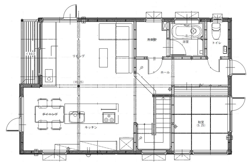
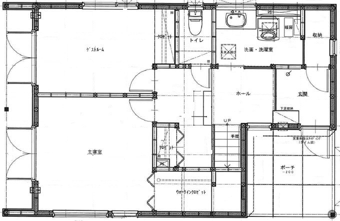
間取り図(3LDK)

1階
晃和住宅 【狭小地×ペットと暮らす×2階リビング】ニセコの大自然に溶け込み眺望にこだわった"Happy"な木の家の間取り図(3LDK)1階

2階
晃和住宅 【狭小地×ペットと暮らす×2階リビング】ニセコの大自然に溶け込み眺望にこだわった"Happy"な木の家の間取り図(3LDK)2階

この会社をもっと知りたくなったら
無料でお届け!まずはカタログ請求

内外観ギャラリー

この会社をもっと知りたくなったら
無料でお届け!まずはカタログ請求

施主Rさんがこの会社に決めた理由

対応の速さが決め手。設計、施工の柔軟性にも感動!

インターネットで晃和住宅を見つけたのが始まり。何社か住宅会社を検討していたが、対応が速く、見学したルスツのオープンハウスも木のぬくもりのある素敵な家だと魅力を感じ同社に決めた。外国籍のご主人のためにローン会社も一緒に探してくれ親身で助かったという。打ち合わせ以降も、2階からの眺望にこだわるRさんのためにリビングの位置や窓の方角など、設計に工夫してくれたことも満足している。施工中も自分で壁を塗ったりオリジナリティ溢れる家づくりになったそうだ。

インターネットで晃和住宅を見つけたのが始まり。何社か住宅会社を検討していたが、対応が速く、見学したルスツのオープンハウスも木のぬくもりのある素敵な家だと魅力を感じ同社に決めた。外国籍のご主人のためにローン会社も一緒に探してくれ親身で助かったという。打ち合わせ以降も、2階からの眺望にこだわるRさんのためにリビングの位置や窓の方角など、設計に工夫してくれたことも満足している。施工中も自分で壁を塗ったりオリジナリティ溢れる家づくりになったそうだ。

この建築実例の担当者より

私にとっても思い出深い家づくりになりました

ニセコの自然に溶け込む家づくりということで世界に一つしかないツリーハウス風の住宅ができました。印象的だったのはご主人の眺望へのこだわり。多くの方は、リビングは南向きを要望するところを、方角ではなく「どんな景色が見えるか」で判断されました。その結果、羊蹄山に沈む美しい夕日が見えるよう北西向きに設計し、より景色を楽しめるようリビングを2階にもっていきバルコニーとひとつなぎにして工夫したのも新鮮でしたね。施工中、壁をRさんご夫婦で塗っていたのもクラフト感がでて素… 続きを読む

ニセコの自然に溶け込む家づくりということで世界に一つしかないツリーハウス風の住宅ができました。印象的だったのはご主人の眺望へのこだわり。多くの方は、リビングは南向きを要望するところを、方角ではなく「どんな景色が見えるか」で判断されました。その結果、羊蹄山に沈む美しい夕日が見えるよう北西向きに設計し、より景色を楽しめるようリビングを2階にもっていきバルコニーとひとつなぎにして工夫したのも新鮮でしたね。施工中、壁をRさんご夫婦で塗っていたのもクラフト感がでて素敵でした。私としても新たな発見があり、家づくりの奥深さを改めて感じることができたお気に入りのお家です。

代表取締役
小川 敏夫

この会社の他の建築実例を見る

この建築実例が気になった方へおすすめ

  • この建築実例のカタログをもらう

    晃和住宅のカタログ画像
    総合カタログ
    晃和住宅会社案内
    晃和住宅のことが分かります
  • イベントに参加する

    晃和住宅のイベント画像
    \プラン間取り相談会/「検討してる土地でどんな家が建てられる?」そんな疑問に答えます♪平屋モデルハウスで見学しながらの相談も可能!
    • 設計・資金相談会
    • モデルハウス見学会
    • 土地相談会
    • その他イベント
    開催日
    随時【要予約制】1日前までにご連絡ください
    開催場所
    北海道札幌市北区新琴似町1021-8

この建築実例の詳細情報

この建築実例を建てた店舗情報

住所 北海道札幌市北区新琴似町1021-8
問い合わせ
011-766-3373
  • ※営業時間内の対応となります。

  • ※お問い合わせの際は「SUUMO(スーモ)を見て」とお伝え下さい。

ホームページ この会社のホームページへ

晃和住宅のコンテンツ一覧

お問い合わせ

カタログをもらう
総合カタログ
晃和住宅のカタログ(晃和住宅会社案内)
晃和住宅会社案内
問合コード:1020210001
イベントに参加する
お問い合わせ先
011-766-3373
  • ※営業時間内の対応となります。

  • ※お問い合わせの際は「SUUMO(スーモ)を見て」とお伝え下さい。

  • 北海道札幌市北区新琴似町1021-8

  • 定休日:なし(年末年始・GW・お盆期間を除く)

この会社のホームページへ

この会社が気になったら

カタログをもらう
総合カタログ
晃和住宅のカタログ(晃和住宅会社案内)
晃和住宅会社案内
問合コード:1020210001
イベントに参加する

関連キーワード

この建築実例のその他の特徴
ページトップへ戻る