この世に2つとして同じ家が存在しない「注文住宅」という家づくり。Dさんのお宅は改めてそのことを強烈に感じさせてくれる家だ。1階にダイニングキッチンと大型ガレージ。2階にリビング、バスルームに浴槽は無くシャワーのみで、テントサウナ用のバルコニーに面している。特徴を列挙するだけでも、オリジナリティにあふれていることがわかる。「自分たちのスタイルで、いつでも好きなものに囲まれた暮らしがしたくて。それを軸に考えると、自然に間取りや空間のイメージは固まっていきました… 続きを読む
この世に2つとして同じ家が存在しない「注文住宅」という家づくり。Dさんのお宅は改めてそのことを強烈に感じさせてくれる家だ。1階にダイニングキッチンと大型ガレージ。2階にリビング、バスルームに浴槽は無くシャワーのみで、テントサウナ用のバルコニーに面している。特徴を列挙するだけでも、オリジナリティにあふれていることがわかる。「自分たちのスタイルで、いつでも好きなものに囲まれた暮らしがしたくて。それを軸に考えると、自然に間取りや空間のイメージは固まっていきました」とDさん。ガラス越しにダイニングキッチンとつながるガレージには、ソファやモニターも置かれ、単に車を格納するだけの場所ではないことがうかがえる。ラックにDULTON(ダルトン)のコンテナが整然と並ぶ様子から、所有するたくさんのアイテムが、ディスプレイされながら、しっかり実用されているのがわかる。ガレージ内にも置かれていたSnapon(スナップオン)のツールボックスは、キッチン収納としても使われていて、キッチンハウス社のフルステンレス・キッチンとの相性も抜群。こだわりはこれだけではない。2階のバルコニーはテントサウナを楽しむための場所。「インフィニティチェアを置く想定で、無駄のない広さにしてもらいました。冬の排雪対策で壁の一部を抜いたり、照明の位置にこだわったり、シャワーも近くて快適です」。“好き”を楽しむスタンスにブレはない
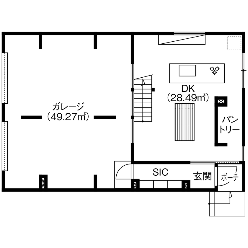
1階は車2台分のガレージとガラス窓でつながるダイニングキッチン。室内とは玄関のシューズクロゼットを通って行き来できる
1階は車2台分のガレージとガラス窓でつながるダイニングキッチン。室内とは玄関のシューズクロゼットを通って行き来できる
2階は階段を挟んでリビングとフリースペースがオープンにつながっている。洗面コーナーとトイレ、ユーティリティーなど水回りも2階に確保。ユーティリティーとフリースペースの間には、テントサウナを楽しむためのバルコニーを設けた
2階は階段を挟んでリビングとフリースペースがオープンにつながっている。洗面コーナーとトイレ、ユーティリティーなど水回りも2階に確保。ユーティリティーとフリースペースの間には、テントサウナを楽しむためのバルコニーを設けた
好きなものに囲まれた暮らしをブレずに目指して、納得の空間をつくり上げたDさん。ふたり好みのヴィンテージ感のある… 続きを読む
好きなものに囲まれた暮らしをブレずに目指して、納得の空間をつくり上げたDさん。ふたり好みのヴィンテージ感のあるインテリアが、絶妙なバランスで調和している
シンクには水栓が二つ……と思ったら、よく見ると一つはまさかのビールサーバー。好きなことをとことん楽しむ。Dさん… 続きを読む
シンクには水栓が二つ……と思ったら、よく見ると一つはまさかのビールサーバー。好きなことをとことん楽しむ。Dさんのブレない姿勢が、こんなところにも表れている
ガレージは車を置いても余裕の広さ。冬も趣味を楽しむ空間として快適に過ごせるよう、ソファやストーブが用意されてい… 続きを読む
ガレージは車を置いても余裕の広さ。冬も趣味を楽しむ空間として快適に過ごせるよう、ソファやストーブが用意されている
| 商品名 | 【LUXE/リュクス】 |
| 部材・設備 | キッチン:キッチンハウス、階段:スチールオープン階段、造作材:可動棚、背面カウンター、ダイニングテーブルなど |
| 商品名 | 【LUXE/リュクス】 |
| 部材・設備 | キッチン:キッチンハウス、階段:スチールオープン階段、造作材:可動棚、背面カウンター、ダイニングテーブルなど |
| 延床面積 | 157.38m2 (47.6坪) |
| 敷地面積 | 164.26m2 (49.6坪) |
| 工法 | 木造軸組 |
| 本体価格 | - |
| 竣工年月 | 2022年4月 |
| 店舗名 | 北王札幌 |
| 住所 | 北海道札幌市中央区北10条西20丁目2-30 |
| 問い合わせ | |
| ホームページ | この会社のホームページへ |
好きなものに囲まれた暮らしをブレずに目指して、納得の空間をつくり上げたDさん。ふたり好みのヴィンテージ感のあるインテリアが、絶妙なバランスで調和している
ガラス越しにガレージが見えるダイニングキッチン
キッチンの壁に並ぶ収納はガレージでも使っているSnapon(スナップオン)のツールボックス。オールステンレスのキッチンにしっくり馴染んでいる
シンクには水栓が二つ……と思ったら、よく見ると一つはまさかのビールサーバー。好きなことをとことん楽しむ。Dさんのブレない姿勢が、こんなところにも表れている
ビルトインキッチンのハイエンドブランド「GAGGENAU(ガゲナウ)」の食洗機。シンプルで洗練されたデザイン、しかも大容量。“好き”に妥協しないDさんならではのセレクトだ
フリースペースと間仕切りなくオープンにつながる2階リビング。階段のまわりをラインの細い手すりにすることで、空間がより広く開放的に感じられる
ゆったりくつろげるソファや木製のコーヒーテーブル、ぬいぐるみに小さめの観葉植物、リラックス感のあるインテリアでコーディネートした2階リビング
コーナー窓から光が心地よく広がり、ゆっくりくつろげるリビング。優しい光に包まれて、うたた寝も気持ちよくできそう。窓台の薄さ、巾木レス仕上げのスッキリさが、好きなものにあふれるDさん宅の空間を陰で支えている
寝室の手前に設けた洗面コーナー。シャワー室への動線もスムーズで毎日の身支度もストレスなくできる
シンプルで美しい真鍮の水栓。年月を重ね色合いが変化するのも魅力
テントサウナ用のバルコニー。シャワールームがあるユーティリティーから出入りできるので、サウナで熱くなった身体をシャワーの水で冷やすのもスムーズ
寝室は心地よい眠りのために、ハイサイドライトで光の量を抑え、リラックスできるよう配慮
ガレージへの通路を兼ねた玄関の土間スペース。手前は造作棚を設けてシューズクロゼットに
ガレージは車を置いても余裕の広さ。冬も趣味を楽しむ空間として快適に過ごせるよう、ソファやストーブが用意されている
DULTON(ダルトン)のコンテナが整然と並ぶガレージ
外壁はブラックのガルバリウム鋼板。道路側は窓の数も抑えてシックな印象