STV興発

STV興発

札幌市・近郊で設計士と直接対話し、デザインも住み心地も納得するまでとことん追求
お気に入りに追加する
北海道札幌市手稲区  Aさん
【札幌/3LDK+フリールーム/収納充実 /インナーガレージ】ガルバリウム鋼板と塗り壁の高級感のある外観
STV興発 【札幌/3LDK+フリールーム/収納充実 /インナーガレージ】ガルバリウム鋼板と塗り壁の高級感のある外観の建築実例画像1
  • 本体価格
    3,500万円3,999万円
    80.6万円92.1万円/坪
  • 延床面積
    143.67m2 (43.4坪)
    敷地面積
    271.64m2 (82.1坪)
    家族構成
    夫婦+子供1人
  • 竣工年月
    2021年11月
    工法
    木造軸組
この会社をもっと知りたくなったら
無料でお届け!まずはカタログ請求

施主Aさんのこだわり

季節の移り変わりを感じ穏やかな時間を過ごせる暮らし 土間から広がる自由な住まい

【家の仕様】トリプルガラス樹脂サッシ、木製玄関ドアで一年中快適な暮らし。ビルトインカーポートは駐車スペース以外にも使用可能。 【太陽光発電】シェアでんきによる太陽光パネルで電気代を節約、外部コンセントで将来の電気自動車への買い替えにも対応。 【地産地消】構造材はすべて道産材を使用し、北海道の資源を守り、より豊かにしていきたいという思いが込められた住まい。

【家の仕様】トリプルガラス樹脂サッシ、木製玄関ドアで一年中快適な暮らし。ビルトインカーポートは駐車スペース以外にも使用可能。 【太陽光発電】シェアでんきによる太陽光パネルで電気代を節約、外部コンセントで将来の電気自動車への買い替えにも対応。 【地産地消】構造材はすべて道産材を使用し、北海道の資源を守り、より豊かにしていきたいという思いが込められた住まい。

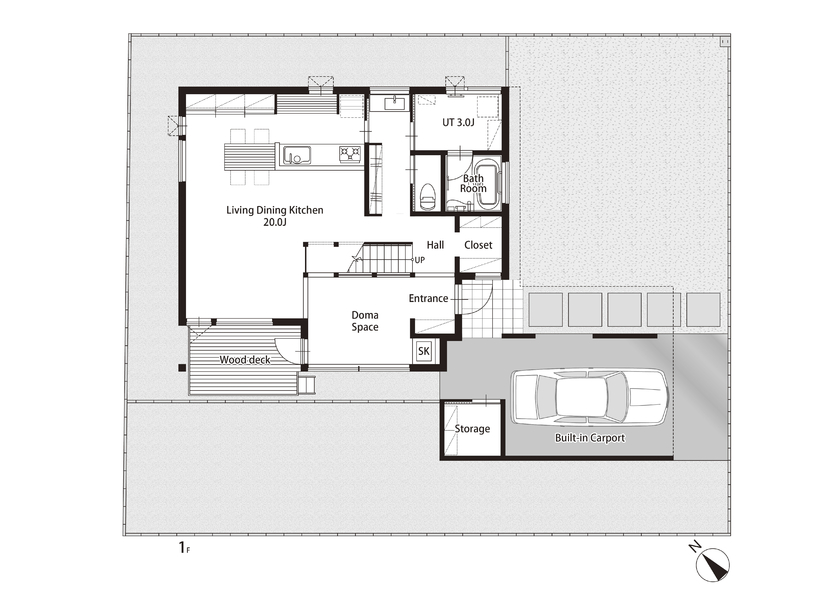
間取り図(3LDK+フリースペース)

1階
STV興発 【札幌/3LDK+フリールーム/収納充実 /インナーガレージ】ガルバリウム鋼板と塗り壁の高級感のある外観の間取り図(3LDK+フリースペース)1階
2階
STV興発 【札幌/3LDK+フリールーム/収納充実 /インナーガレージ】ガルバリウム鋼板と塗り壁の高級感のある外観の間取り図(3LDK+フリースペース)2階
この会社をもっと知りたくなったら
無料でお届け!まずはカタログ請求

内外観ギャラリー

この会社をもっと知りたくなったら
無料でお届け!まずはカタログ請求

この会社の他の建築実例を見る

この建築実例が気になった方へおすすめ

この建築実例の詳細情報

この建築実例を建てた店舗情報

住所 北海道札幌市中央区南1条西6丁目11番地 札幌北辰ビル3階
問い合わせ
0120-089-582
  • ※営業時間内の対応となります。

  • ※お問い合わせの際は「SUUMO(スーモ)を見て」とお伝え下さい。

ホームページ この会社のホームページへ

STV興発のコンテンツ一覧

お問い合わせ

カタログをもらう
施工実例集
STV興発のカタログ(施工実例集)
施工実例集
問合コード:0157600001
イベントに参加する
お問い合わせ先
0120-089-582
  • ※営業時間内の対応となります。

  • ※お問い合わせの際は「SUUMO(スーモ)を見て」とお伝え下さい。

  • 北海道札幌市中央区南1条西6丁目11番地 札幌北辰ビル3階

  • 定休日:土・日・祝 ※モデルハウスは土日祝公開

この会社のホームページへ

この会社が気になったら

カタログをもらう
施工実例集
STV興発のカタログ(施工実例集)
施工実例集
問合コード:0157600001
イベントに参加する

関連キーワード

ページトップへ戻る