ドヒハウス

ドヒハウス

自社工場での造作制作と高いデザインセンスでわが家スタイルの家づくりを実現する
お気に入りに追加する
広島県  Hさん
【間取り図有/二階建て/3LDK】キッチンのアクセント抜群、R壁を楽しむ家事動線が楽なお家
ドヒハウス 【間取り図有/二階建て/3LDK】キッチンのアクセント抜群、R壁を楽しむ家事動線が楽なお家の建築実例画像1
  • 本体価格
    2,500万円2,999万円
    79.8万円95.7万円/坪
  • 延床面積
    103.65m2 (31.3坪)
    敷地面積
    -
    家族構成
    -
  • 竣工年月
    -
    工法
    2×4、2×6
この会社をもっと知りたくなったら
無料でお届け!まずはカタログ請求

施主Hさんのこだわり

キッチンのアクセント抜群、R壁を楽しむ家事動線が楽なお家

キッチンのタイルとアール壁に囲まれた掘り下げリビング学習スペース。ダイニングテーブルには鉄板を仕込み、浴室から一直線に横並びの洗面・ファミリークローク・パントリーの動線は家事楽を追求したこだわりの間取り。

キッチンのタイルとアール壁に囲まれた掘り下げリビング学習スペース。ダイニングテーブルには鉄板を仕込み、浴室から一直線に横並びの洗面・ファミリークローク・パントリーの動線は家事楽を追求したこだわりの間取り。

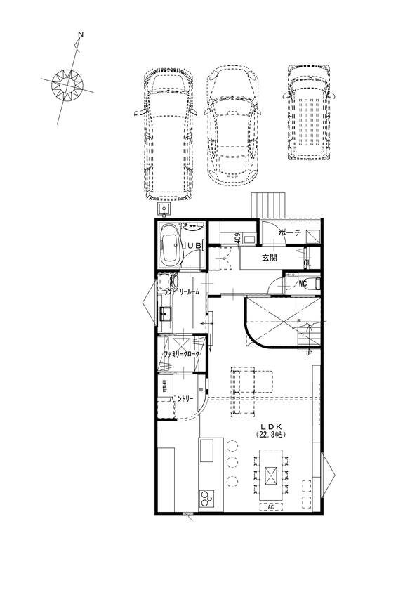
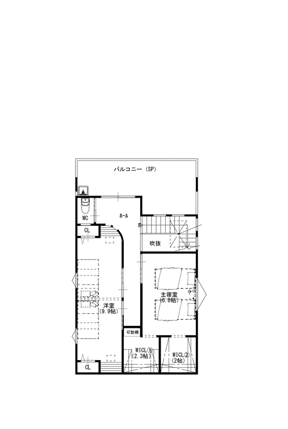
間取り図(3LDK)

1階
ドヒハウス 【間取り図有/二階建て/3LDK】キッチンのアクセント抜群、R壁を楽しむ家事動線が楽なお家の間取り図(3LDK)1階
2階
ドヒハウス 【間取り図有/二階建て/3LDK】キッチンのアクセント抜群、R壁を楽しむ家事動線が楽なお家の間取り図(3LDK)2階
この会社をもっと知りたくなったら
無料でお届け!まずはカタログ請求

内外観ギャラリー

この会社をもっと知りたくなったら
無料でお届け!まずはカタログ請求

この会社の他の建築実例を見る

この建築実例が気になった方へおすすめ

この建築実例の詳細情報

この建築実例を建てた店舗情報

店舗名 広島本店
住所 広島県広島市南区宇品西2丁目6-54
問い合わせ
080-8980-6165
  • ※営業時間内の対応となります。

  • ※お問い合わせの際は「SUUMO(スーモ)を見て」とお伝え下さい。

ホームページ この会社のホームページへ

ドヒハウスのコンテンツ一覧

お問い合わせ

カタログをもらう
総合カタログ
ドヒハウスのカタログ(DOHIHOUSE HOUSE MAKING BOOK)
DOHIHOUSE HOUSE MAKING BOOK
問合コード:0851400001
お問い合わせ先
080-8980-6165
  • ※営業時間内の対応となります。

  • ※お問い合わせの際は「SUUMO(スーモ)を見て」とお伝え下さい。

広島本店
  • 広島県広島市南区宇品西2丁目6-54

  • 定休日:火・水曜日

この会社のホームページへ

この会社が気になったら

カタログをもらう
総合カタログ
ドヒハウスのカタログ(DOHIHOUSE HOUSE MAKING BOOK)
DOHIHOUSE HOUSE MAKING BOOK
問合コード:0851400001

関連キーワード

この建築実例のその他の特徴
ページトップへ戻る