栃木ハウス

栃木ハウス

オーナーのこだわりをカタチに。美を追求し続けるデザイナーと創る住まい
お気に入りに追加する
吹抜けの大空間広がる、気品漂うラグジュアリーモダンな住まい
栃木ハウス 吹抜けの大空間広がる、気品漂うラグジュアリーモダンな住まいの建築実例画像1
  • 本体価格
    3,300万円3,399万円
    58.6万円60.4万円/坪
  • 延床面積
    186.31m2 (56.3坪)
    敷地面積
    -
    家族構成
    -
  • 竣工年月
    -
    工法
    木造軸組
この会社をもっと知りたくなったら
無料でお届け!まずはカタログ請求

施主のこだわり

吹抜けの大空間広がる、気品漂うラグジュアリーモダンな住まい

天井まで伸びる吹抜け空間が印象的なこちらのお住まい。周りが住宅で密集しているエリアであるため、リビングに高窓を配置しプライバシーを守りつつ開放感溢れる空間が実現した。素材使いにもこだわり、ラグジュアリーな素材を採用し住まい全体をグレイッシュなトーンで統一している。デザイン性はもちろん、収納力や家事動線にも考慮し、大容量のクローゼットを1階・2階共に配置してゆとりあるゾーン分けを提案。また、ご主人は「西の空を臨む書斎」、奥様は「家事スペースの中心の位置にパウ… 続きを読む

天井まで伸びる吹抜け空間が印象的なこちらのお住まい。周りが住宅で密集しているエリアであるため、リビングに高窓を配置しプライバシーを守りつつ開放感溢れる空間が実現した。素材使いにもこだわり、ラグジュアリーな素材を採用し住まい全体をグレイッシュなトーンで統一している。デザイン性はもちろん、収納力や家事動線にも考慮し、大容量のクローゼットを1階・2階共に配置してゆとりあるゾーン分けを提案。また、ご主人は「西の空を臨む書斎」、奥様は「家事スペースの中心の位置にパウダールーム」といったご夫婦それぞれが要望していたワークスペースを確保。同社のデザイナーと何度も打合せを重ね、ご夫婦の要望が詰まった理想の住まいが実現した。

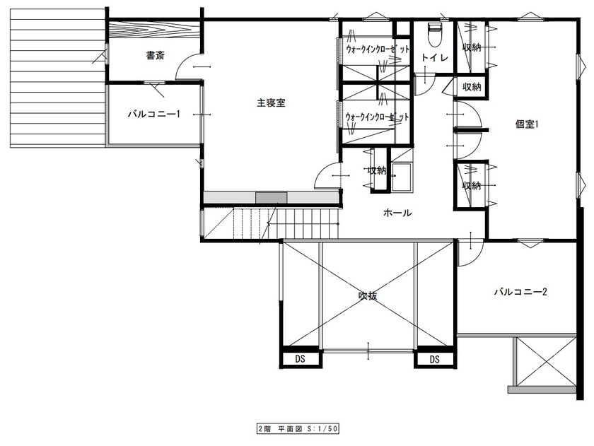
間取り図(4LDK)

1階
栃木ハウス 吹抜けの大空間広がる、気品漂うラグジュアリーモダンな住まいの間取り図(4LDK)1階
2階
栃木ハウス 吹抜けの大空間広がる、気品漂うラグジュアリーモダンな住まいの間取り図(4LDK)2階
この会社をもっと知りたくなったら
無料でお届け!まずはカタログ請求

内外観ギャラリー

この会社をもっと知りたくなったら
無料でお届け!まずはカタログ請求

この会社の他の建築実例を見る

この建築実例が気になった方へおすすめ

この建築実例の詳細情報

この建築実例を建てた店舗情報

店舗名 本社
住所 栃木県鹿沼市上野町331-1
問い合わせ
0289-63-5255
  • ※営業時間内の対応となります。

  • ※お問い合わせの際は「SUUMO(スーモ)を見て」とお伝え下さい。

ホームページ この会社のホームページへ

栃木ハウスのコンテンツ一覧

お問い合わせ

お問い合わせ先
0289-63-5255
  • ※営業時間内の対応となります。

  • ※お問い合わせの際は「SUUMO(スーモ)を見て」とお伝え下さい。

本社
  • 栃木県鹿沼市上野町331-1

  • 定休日:水曜

この会社のホームページへ

関連キーワード

ページトップへ戻る