サイト工業 はぐくみの木の家(宮城・福島)

サイト工業 はぐくみの木の家(宮城・福島)

太陽の恵みと四季の風。自然とともに暮らす日々。豊かな暮らしを愉しむための家づくり
お気に入りに追加する
宮城県  Mさん
【2300万円台/間取り図有】家事動線と収納力を重視した、スッキリと暮らせる住まい
サイト工業 はぐくみの木の家(宮城・福島) 【2300万円台/間取り図有】家事動線と収納力を重視した、スッキリと暮らせる住まいの建築実例画像1
  • 本体価格
    2,300万円2,399万円
    68.4万円71.4万円/坪
  • 延床面積
    111.17m2 (33.6坪)
    敷地面積
    215.16m2 (65.0坪)
    家族構成
    夫婦+子ども2人
  • 竣工年月
    2021年6月
    工法
    木造軸組(耐力面材使用)
この会社をもっと知りたくなったら
無料でお届け!まずはカタログ請求

施主Mさんのこだわり

心安らぐ木の香りに包まれ、感性豊かに暮らすシンプルな木の家

「夢だった木の家に住むことができ、大変うれしいです。家に訪れる方々は口をそろえて『木の匂いがする』と言い、鼻をクンクンします」と話すのは、施主のMさん。亡き父が大工だったといい「木の匂いは父の匂いでもあり、そんな大好きだった父に包まれているような気持ちになります」と面影を重ねる。「はぐくみの木の家」は国産無垢材など自然素材をふんだんに使用。自然エネルギーを最大限に取り込むパッシブデザインの間取りを基本とした、四季の移り変わりを感じられる健やかな家づくりを行… 続きを読む

「夢だった木の家に住むことができ、大変うれしいです。家に訪れる方々は口をそろえて『木の匂いがする』と言い、鼻をクンクンします」と話すのは、施主のMさん。亡き父が大工だったといい「木の匂いは父の匂いでもあり、そんな大好きだった父に包まれているような気持ちになります」と面影を重ねる。「はぐくみの木の家」は国産無垢材など自然素材をふんだんに使用。自然エネルギーを最大限に取り込むパッシブデザインの間取りを基本とした、四季の移り変わりを感じられる健やかな家づくりを行う。Mさんの住まいは、家事効率を重視した間取りで、適所に使い勝手の良い収納を配置。スッキリと暮らすことが出来る。ハイブリッド断熱と全館空調の効果で家中どこにいても温度差を感じることなく365日快適に暮らしている

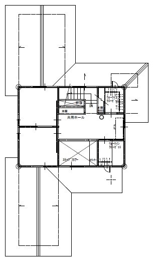
間取り図(3LDK)

1階
サイト工業 はぐくみの木の家(宮城・福島) 【2300万円台/間取り図有】家事動線と収納力を重視した、スッキリと暮らせる住まいの間取り図(3LDK)1階
2階
サイト工業 はぐくみの木の家(宮城・福島) 【2300万円台/間取り図有】家事動線と収納力を重視した、スッキリと暮らせる住まいの間取り図(3LDK)2階
この会社をもっと知りたくなったら
無料でお届け!まずはカタログ請求

内外観ギャラリー

この会社をもっと知りたくなったら
無料でお届け!まずはカタログ請求

この会社の他の建築実例を見る

この建築実例が気になった方へおすすめ

この建築実例の詳細情報

この建築実例を建てた店舗情報

住所 宮城県仙台市若林区卸町2-6-11
問い合わせ
0120-310-275
  • ※営業時間内の対応となります。

  • ※お問い合わせの際は「SUUMO(スーモ)を見て」とお伝え下さい。

ホームページ この会社のホームページへ

サイト工業 はぐくみの木の家(宮城・福島)のコンテンツ一覧

お問い合わせ

カタログをもらう
施工実例集
サイト工業 はぐくみの木の家(宮城・福島)のカタログ(はぐくみの木の家「実例集」)
はぐくみの木の家「実例集」
問合コード:1683770001
お問い合わせ先
0120-310-275
  • ※営業時間内の対応となります。

  • ※お問い合わせの際は「SUUMO(スーモ)を見て」とお伝え下さい。

  • 宮城県仙台市若林区卸町2-6-11

  • 定休日:毎週火曜日・水曜日

この会社のホームページへ

この会社が気になったら

カタログをもらう
施工実例集
サイト工業 はぐくみの木の家(宮城・福島)のカタログ(はぐくみの木の家「実例集」)
はぐくみの木の家「実例集」
問合コード:1683770001

関連キーワード

ページトップへ戻る