【3500万円/間取り図有】お風呂以外の住宅設備を親世帯と子世帯それぞれに設けた2世帯住宅の住まい
施主Hさんのこだわり
両親が暮らしていた築20数年の家を2世帯住宅に建て替えたHさん。子供の小学校入学を機に同居を考えるようになり、両親に相談した。前の家は地震の影響による歪みやシロアリの被害があったため、リフォームではなく建て替えを決断。家族共通で要望したのは、親子世帯それぞれ気兼ねせず暮らせる間取り。「はぐくみの木の家」の提案は、2階の足音など生活音の影響を最小限に抑えつつ共用空間を設けるプランだった。みんなが寛ぐメインリビングの一部を土間にして、前の家で愛用していた薪スト…
続きを読む
両親が暮らしていた築20数年の家を2世帯住宅に建て替えたHさん。子供の小学校入学を機に同居を考えるようになり、両親に相談した。前の家は地震の影響による歪みやシロアリの被害があったため、リフォームではなく建て替えを決断。家族共通で要望したのは、親子世帯それぞれ気兼ねせず暮らせる間取り。「はぐくみの木の家」の提案は、2階の足音など生活音の影響を最小限に抑えつつ共用空間を設けるプランだった。みんなが寛ぐメインリビングの一部を土間にして、前の家で愛用していた薪ストーブを設置したり、子供の成長を刻んできた大黒柱を再利用するなど、両親が大切にしている思い出を残しながら、新しい実家を作り上げた。
間取り図(5K以上)
内外観ギャラリー
-
国産無垢材と調湿性の高い自然由来の内装材でつくられた、一年中快適な住まい。家族が寛ぐリビングは、和室や薪ストー…
続きを読む
国産無垢材と調湿性の高い自然由来の内装材でつくられた、一年中快適な住まい。家族が寛ぐリビングは、和室や薪ストーブの土間とつながりを持たせてゆったりと。家事や子育てに配慮したキッチンを中心にぐるりと回れる間取りも特徴。
-
薪ストーブがある土間スペースは、庭から土足のまま出入りできるので薪の搬入や掃除もしやすい。土のついた野菜を置い…
続きを読む
薪ストーブがある土間スペースは、庭から土足のまま出入りできるので薪の搬入や掃除もしやすい。土のついた野菜を置いたり、DIYや園芸の作業スペースにも活用できる。
-
キッチン周りをはじめ、適材適所に収納スペースを造作。キッチンの隣には、スタディコーナーを設け、勉強する子どもを…
続きを読む
キッチン周りをはじめ、適材適所に収納スペースを造作。キッチンの隣には、スタディコーナーを設け、勉強する子どもを見守れるように配慮。家族のコミュニケーションも大切にプランニング。
-
親世帯は、天井や壁、床まで杉の無垢材に囲まれた清々しい空間。個性的な旧宅のドアがアクセントに。
親世帯は、天井や壁、床まで杉の無垢材に囲まれた清々しい空間。個性的な旧宅のドアがアクセントに。
-
階段下のスペースは、スタディコーナーに利用。
階段下のスペースは、スタディコーナーに利用。
-
オーナー家族の希望に合わせて造作した洗面化粧台。
オーナー家族の希望に合わせて造作した洗面化粧台。
-
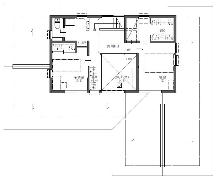
2階フリースペースのスキップフロアには、多目的に使えるカウンターを設けた。薪ストーブの暖気がスキップフロアの開…
続きを読む
2階フリースペースのスキップフロアには、多目的に使えるカウンターを設けた。薪ストーブの暖気がスキップフロアの開口を通って、家全体を循環。
-
ネイビーの建具がモダンな雰囲気の子供室。板張りのクローゼットの中は、木の持つ調湿効果や抗菌作用で衣類や寝具など…
続きを読む
ネイビーの建具がモダンな雰囲気の子供室。板張りのクローゼットの中は、木の持つ調湿効果や抗菌作用で衣類や寝具などを清潔に保てる。
-
玄関ポーチから使える外物置。掃除道具などを収納するのに便利そうだ。
玄関ポーチから使える外物置。掃除道具などを収納するのに便利そうだ。
-
2世帯家族5人が暮らす住まい。平屋部分が親世帯、2階部分には子世帯の個室を設けた。L字型のデザインや薪ストーブ…
続きを読む
2世帯家族5人が暮らす住まい。平屋部分が親世帯、2階部分には子世帯の個室を設けた。L字型のデザインや薪ストーブの煙突も外観のポイントだ。
この会社の他の建築実例を見る
-
-
-
延床面積
106.00m2
(32.0坪)
-
所在地
福島県福島市御山字中屋敷83-1
-
営業時間
10:00~17:00(定休日:火曜、水曜日)
この建築実例の詳細情報
|
商品名
|
-
|
|
部材・設備
|
-
|
|
延床面積
|
165.61m2
(50.0坪)
|
|
敷地面積
|
299.45m2
(90.5坪)
|
|
工法
|
木造軸組(プラスパネル)
|
|
本体価格
|
3,500万円
|
|
竣工年月
|
2023年8月
|
この建築実例を建てた店舗情報
サイト工業 はぐくみの木の家(宮城・福島)のコンテンツ一覧