昭和建設

昭和建設

「より良い住まいをより安く、より多くの方へ」をモットーに、お客様の理想を実現
お気に入りに追加する
大分県  Oさん
【2260万円で建てた家/間取り図有】大切な家族がいつもすぐそばに。コンパクトでも丁度いい平屋
昭和建設 【2260万円で建てた家/間取り図有】大切な家族がいつもすぐそばに。コンパクトでも丁度いい平屋の建築実例画像1
  • 本体価格
    2,260万円
    62.7万円/坪
  • 延床面積
    119.25m2 (36.0坪)
    敷地面積
    208.34m2 (63.0坪)
    家族構成
    夫婦+子ども2人
  • 竣工年月
    2023年3月
    工法
    木造軸組(外張断熱工法)
この会社をもっと知りたくなったら
無料でお届け!まずはカタログ請求

施主Oさんのこだわり

20代で決断した家づくり。若いご夫婦が広さよりも大切にしたのは、家族の距離感

「私たちの理想は、キッチンを中心に室内全体に目が行き届く家。広さよりも一体感のある空間にこだわり、食事や遊び、お出かけ準備、プライベートな時間をLDKのなかで完結できる間取りを希望しました」。そう語るのは、家事や仕事、子育てに大忙しながらも、家族との時間を楽しそうに過ごすOさんご夫婦。お家時間の中心はリビングにあると考え、キッチンやダイニングだけでなく、ご夫婦それぞれのプライベート空間や子ども部屋の入口、パントリー、ドレッサー兼洗面台まですべてをLDK内に… 続きを読む

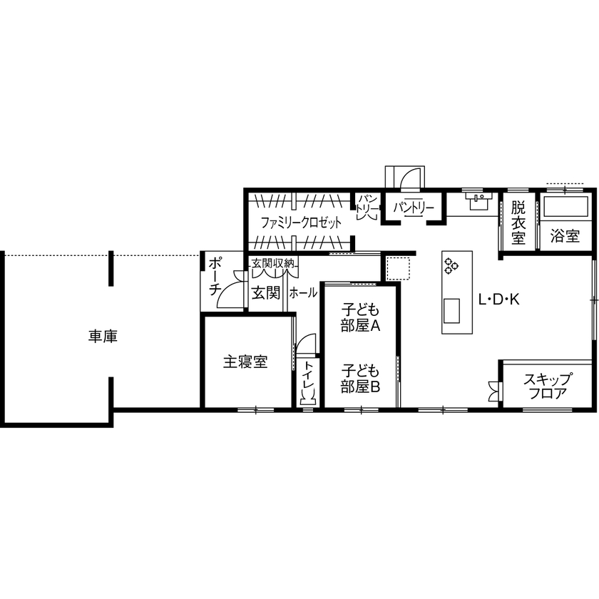
「私たちの理想は、キッチンを中心に室内全体に目が行き届く家。広さよりも一体感のある空間にこだわり、食事や遊び、お出かけ準備、プライベートな時間をLDKのなかで完結できる間取りを希望しました」。そう語るのは、家事や仕事、子育てに大忙しながらも、家族との時間を楽しそうに過ごすOさんご夫婦。お家時間の中心はリビングにあると考え、キッチンやダイニングだけでなく、ご夫婦それぞれのプライベート空間や子ども部屋の入口、パントリー、ドレッサー兼洗面台まですべてをLDK内に集約する大胆な発想で、理想の住まいをカタチにしていた。断熱性に優れた同社の家なら、天井が高い大空間でもエアコン1台で快適。歯磨きやドライヤーをかける際にも、寒さ・暑さを感じることがない点も嬉しいポイントだ。「子どもたちから目を離さず、どこにいても寛げるこの家が大好きです。子どもがお昼寝をしている間は、スキップフロアで自分の時間を満喫。夫はインナーガレージで筋トレをしたり、スキップフロアの下段でお昼寝をするのが楽しみになったようです。自由度の高い昭和建設さんだからこそ叶えられたお家ですね」と、満面の笑みで話してくれた。

間取り図(2LDK(3LDK対応))

1階
昭和建設 【2260万円で建てた家/間取り図有】大切な家族がいつもすぐそばに。コンパクトでも丁度いい平屋の間取り図(2LDK(3LDK対応))1階
この会社をもっと知りたくなったら
無料でお届け!まずはカタログ請求

内外観ギャラリー

この会社をもっと知りたくなったら
無料でお届け!まずはカタログ請求

この会社の他の建築実例を見る

この建築実例が気になった方へおすすめ

この建築実例の詳細情報

この建築実例を建てた店舗情報

店舗名 櫛原展示場
住所 福岡県久留米市諏訪野町2333
問い合わせ
0120-519-233
  • ※営業時間内の対応となります。

  • ※お問い合わせの際は「SUUMO(スーモ)を見て」とお伝え下さい。

ホームページ この会社のホームページへ

昭和建設のコンテンツ一覧

お問い合わせ

カタログをもらう
総合カタログ
昭和建設のカタログ(家族だんらんの家)
家族だんらんの家
問合コード:0783110001

この会社が気になったら

カタログをもらう
総合カタログ
昭和建設のカタログ(家族だんらんの家)
家族だんらんの家
問合コード:0783110001

関連キーワード

この建築実例のその他の特徴
ページトップへ戻る