綿半林業

綿半林業

「サイエンスホーム」「cotton1/2」伝統的な真壁工法の木の家を現代の性能に進化
お気に入りに追加する
神奈川県  Aさん
【1000万円台/ひのき/おうち時間】リモートワークも家族の団らんも叶えた和モダンの家
綿半林業 【1000万円台/ひのき/おうち時間】リモートワークも家族の団らんも叶えた和モダンの家の建築実例画像1
  • 本体価格
    -
  • 延床面積
    103.51m2 (31.3坪)
    敷地面積
    136.49m2 (41.2坪)
    家族構成
    夫婦+子ども2人
  • 竣工年月
    2021年3月
    工法
    木造軸組
この会社をもっと知りたくなったら
無料でお届け!まずはカタログ請求

施主Aさんのこだわり

おうち時間を快適にする空間で、リラックスと集中が両立できる工夫がいっぱい!

古い寺院等の日本家屋に馴染みがあり、木に囲まれて暮らすような温かみのある家に憧れていたAさん。サイエンスホームのHPを見て興味を持ち、展示場を訪ねて一目ぼれ。「真壁づくり」という言葉を初めて知り、ほかに無いデザインが気に入り依頼し、古民家やノスタルジックな雰囲気をイメージしたマイホームが完成。ホワイトとブラウンのツートンカラーが映える外観。玄関にはL字型の土間を備え、自転車が置けるゆとりの収納スペースを確保しました。南側全面に間取りしたLDKは明るく広々。… 続きを読む

古い寺院等の日本家屋に馴染みがあり、木に囲まれて暮らすような温かみのある家に憧れていたAさん。サイエンスホームのHPを見て興味を持ち、展示場を訪ねて一目ぼれ。「真壁づくり」という言葉を初めて知り、ほかに無いデザインが気に入り依頼し、古民家やノスタルジックな雰囲気をイメージしたマイホームが完成。ホワイトとブラウンのツートンカラーが映える外観。玄関にはL字型の土間を備え、自転車が置けるゆとりの収納スペースを確保しました。南側全面に間取りしたLDKは明るく広々。フラットにしたリビングの畳コーナーは、全体を和モダンでまとめたインテリアに馴染んでいます。「タイルのデザインがお気に入り」という洗面所は、キッチン横から楽にアクセス。脱衣所と空間を分けたのでいつでも気軽に手洗いができます。リビングから木格子で隔てた先に階段を配置し、ダイニング上部が吹き抜けになるよう設計。2階には家族の個室に加え、リモートワークにも没頭できるAさん専用の独立した書斎もつくりました。壁の一面へシックなカラーのアクセントクロスをあしらい、落ち着いた雰囲気にした主寝室。子ども部屋は木色を変え、明るくさわやかな居室に。「古民家・和モダン・ノスタルジックと漠然とした希望のイメージを具現化していただき、魅力あふれる家になりました」とAさんは笑顔。「リモートワークにも集中できるし、広いリビングで、家族団らんのひとときも楽しいです」。

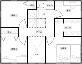
間取り図(3LDK)

1階
綿半林業 【1000万円台/ひのき/おうち時間】リモートワークも家族の団らんも叶えた和モダンの家の間取り図(3LDK)1階
2階
綿半林業 【1000万円台/ひのき/おうち時間】リモートワークも家族の団らんも叶えた和モダンの家の間取り図(3LDK)2階
この会社をもっと知りたくなったら
無料でお届け!まずはカタログ請求

内外観ギャラリー

この会社をもっと知りたくなったら
無料でお届け!まずはカタログ請求

この建築実例の担当者

明るく風通しの良い家、リモートワークに対応した間取りが主なご希望でした。独立した洗面など、今だからこそ必要な要素も盛り込み、お客様のご要望をすべて叶えたシンプルで無駄のない間取りを心がけました。

綿半林業の担当者画像
三角豪

この会社の他の建築実例を見る

この建築実例が気になった方へおすすめ

この建築実例の詳細情報

この建築実例を建てた店舗情報

店舗名 横浜店
住所 神奈川県大和市渋谷7-3-6
問い合わせ
046-206-5515
  • ※営業時間内の対応となります。

  • ※お問い合わせの際は「SUUMO(スーモ)を見て」とお伝え下さい。

ホームページ この会社のホームページへ

綿半林業のコンテンツ一覧

お問い合わせ

カタログをもらう
カタログ一覧
※1社で請求できるカタログは3冊までです。

この会社が気になったら

カタログをもらう

関連キーワード

ページトップへ戻る