住宅街の中にあり、静かな表情を見せる外観。意図的に囲まれたアプローチを通り抜けると、ゆったりとしたリビングが広がる。「音楽や映画を楽しむなど、二人とも家で過ごすことが好き。これから家族が増えても、ゆったりとした時間を過ごせる場所にしたいと思いました」とFさん夫婦。「モデルハウスで体感したデザインに一目ぼれでした」というリビングは、天井高3mの開放感が魅力。そして、床と天井、建具の素材感、無機質な石の壁面の色使いに統一感を持たせ、空間に落ち着きを。それぞれの… 続きを読む
住宅街の中にあり、静かな表情を見せる外観。意図的に囲まれたアプローチを通り抜けると、ゆったりとしたリビングが広がる。「音楽や映画を楽しむなど、二人とも家で過ごすことが好き。これから家族が増えても、ゆったりとした時間を過ごせる場所にしたいと思いました」とFさん夫婦。「モデルハウスで体感したデザインに一目ぼれでした」というリビングは、天井高3mの開放感が魅力。そして、床と天井、建具の素材感、無機質な石の壁面の色使いに統一感を持たせ、空間に落ち着きを。それぞれのラインを整えた、細部まで美しい意匠が、穏やかな毎日を支えてくれる。そして、料理が好きなご夫婦が選んだキッチンは、ゆったりと横に並べるオープンタイプに。天井の高さに変化を付けることで、緩やかにリビングとゾーニング。それぞれの役割を明確に使える。「長く暮らす場所だからこそ、強さと快適さも求めたい」というご希望に、120ミリ厚の木質パネルを採用した「センチュリーモノコック」構法で、高い耐震性や気密・断熱性を実現している。「私達らしい暮らしを叶える住まいが完成しました」と話すFさん。「この家をずっと大切にしたいという想いが募ります」
1階は家族用、ゲスト用で分けた玄関を入ると、ほとんどワンフロアで設計された空間に。「家族が集まる場所を広く」というFさんの希望を叶えている。玄関前の空間は、家族用のライブラリーや来客を出迎えるスペースとしても活用。リビングとロールスクリーンで仕切ることができ、家族のプライバシーに配慮している。テレビ… 続きを読む
1階は家族用、ゲスト用で分けた玄関を入ると、ほとんどワンフロアで設計された空間に。「家族が集まる場所を広く」というFさんの希望を叶えている。玄関前の空間は、家族用のライブラリーや来客を出迎えるスペースとしても活用。リビングとロールスクリーンで仕切ることができ、家族のプライバシーに配慮している。テレビを掛けた壁の向こうは、2階へ続くリビング階段を設計。自然と会話が生まれる動線が、家族のコミュニケーションを育む
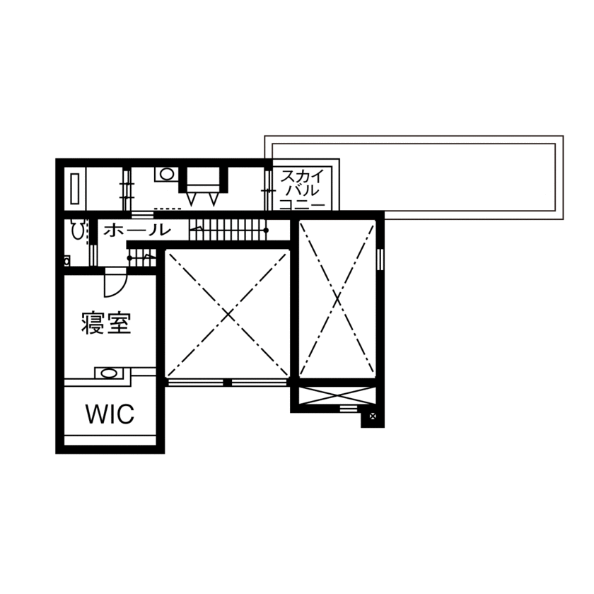
2階と2.5階は家族それぞれの個室を設けたプライベートゾーン。2階には夫婦の寝室と水まわりを集約し、家事や収納動線を効率的に、スムーズに行えるように設計している
2階と2.5階は家族それぞれの個室を設けたプライベートゾーン。2階には夫婦の寝室と水まわりを集約し、家事や収納動線を効率的に、スムーズに行えるように設計している
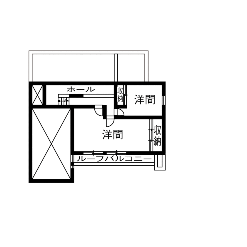
スキップでつながる2.5階には、将来の子ども部屋を設置。入口の扉を2つ設けることで、成長に合わせて部屋を分けることができるように、可変性を持たせた設計に。階段ホールには玄関側に窓を設けていない代わりに、トップライトを設置して採光を確保している
スキップでつながる2.5階には、将来の子ども部屋を設置。入口の扉を2つ設けることで、成長に合わせて部屋を分けることができるように、可変性を持たせた設計に。階段ホールには玄関側に窓を設けていない代わりに、トップライトを設置して採光を確保している
これだけの大空間にもかかわらず、断熱性能の高さを実感しているFさん。「夜にエアコンを少し入れておけば、朝までず… 続きを読む
これだけの大空間にもかかわらず、断熱性能の高さを実感しているFさん。「夜にエアコンを少し入れておけば、朝までずっと快適。遮音性も高まり、大好きな映画や音楽を存分に楽しんでいます」
住み慣れた場所でこれからの暮らしにあわせた、住まいづくりを選んだFさん夫婦。「自分達らしいデザインはもちろんなのですが、いざという時に守ってくれる、地震や災害に強い住まいを建てると決めていました」。ミサワホームの展示場を見学して「そのデザインに一目ぼれでした」と話すFさん。構造見学会にも参加し、同社の強い家を実感したそう。「担当してくれたデザイナーの藤田さんは、提案を押し付けるようなことは一切なく、私たちの希望をじっくり聞きながら、『私たちがこうしたい』と… 続きを読む
住み慣れた場所でこれからの暮らしにあわせた、住まいづくりを選んだFさん夫婦。「自分達らしいデザインはもちろんなのですが、いざという時に守ってくれる、地震や災害に強い住まいを建てると決めていました」。ミサワホームの展示場を見学して「そのデザインに一目ぼれでした」と話すFさん。構造見学会にも参加し、同社の強い家を実感したそう。「担当してくれたデザイナーの藤田さんは、提案を押し付けるようなことは一切なく、私たちの希望をじっくり聞きながら、『私たちがこうしたい』と気軽に言える雰囲気をつくってくれました」とFさん。「経験豊富な藤田さんが描いてくれたプランには、私たちのこうしたいが詰まっている。住まいづくりを終えた今でも、『こうしておけば良かった』と思うことがありません」
| 商品名 | - |
| 部材・設備 | - |
| 商品名 | - |
| 部材・設備 | - |
| 延床面積 | 176.14m2 (53.2坪) |
| 敷地面積 | - |
| 工法 | 木質系プレハブ(木質パネル接着工法(プレハブ)) |
| 本体価格 | - |
| 竣工年月 | 2021年2月 |
無駄のないシンプルな美しさが際立つ、天井高3mの開放的なリビング。インテリアは木の柔らかな表情、石の壁面タイルの無機質さ、それぞれの素材が調和。それぞれのラインが揃えられ、細部にまで整えられた美しいデザインが、穏やかな日常を支えてくれる
これだけの大空間にもかかわらず、断熱性能の高さを実感しているFさん。「夜にエアコンを少し入れておけば、朝までずっと快適。遮音性も高まり、大好きな映画や音楽を存分に楽しんでいます」
リビングと緩やかにつながるオープンキッチン。下がり天井で変化を付けることで、開放的な住空間を区切らずにゾーニングしている
キッチンの隣、リビングからは見えない位置に設けた多目的スペース。ゲストルームとして使ったり、将来はキッチンから見守ることができるキッズスペースとして活躍する
2階に集約した水まわりスペースは、白を基調とした清潔感のある空間に。「洗濯する・干す・たたむ」という作業が、一直線の動線でスムーズにできるよう設計
寝室とWICは天井部をオープンにする設計に。天井をつなげることで、視線が抜けて開放的に。さらに、収納スペースに湿気がこもらないようにする工夫も
2.5階のホール部分に設けたトップライト。通り側の窓をなくしながらも、天井から届く自然の光のおかげで、空間を明るくする
玄関はゲスト用、家族用と2WAYに分けた設計に。家族用の玄関には、整理整頓がしやすい土間続きのクロークと、ウイルスなどの予防対策のために手洗いカウンターを設けた
訪れる人を気持ちよく迎えてくれる、ゲスト用の玄関スペース。左の壁の向こうに大容量のクロークを併設し、キレイに片付く空間をキープできる
格子の扉を開けた右側に玄関へつながる。あえて壁で囲まれ視界を遮るように設計されたアプローチから入ることで、リビングの広がりを強く感じる仕掛けに
家の正面には窓を設けず、玄関は通りから見えない位置にすることで、プライバシーが守られるよう配慮されている
装飾を抑えたシンプルさを基本に、造形の美しさが際立つフォルムの外観。まるで現代的な美術館のような佇まい