THE HAUS ザハウス

THE HAUS ザハウス

北九州・行橋・中津エリアで【デザイン+性能+メンテナンスコスト】にこだわる家づくり
お気に入りに追加する
大分県中津市  Iさん
【大分県中津市/平屋/4LDK/塗り壁】中庭の景色を採り込むコの字型の平屋
THE HAUS ザハウス 【大分県中津市/平屋/4LDK/塗り壁】中庭の景色を採り込むコの字型の平屋の建築実例画像1
  • 本体価格
    2,400万円
    71.6万円/坪
  • 延床面積
    110.96m2 (33.5坪)
    敷地面積
    302.50m2 (91.5坪)
    家族構成
    夫婦+子ども
  • 竣工年月
    2021年3月
    工法
    木造軸組
この会社をもっと知りたくなったら
無料でお届け!まずはカタログ請求

施主Iさんのこだわり

ホテルライクなインテリアの落ち着いた空間で上質な時間を過ごす家

太陽の日差しや明るさ、心地よい風、そして自然の彩りを室内に採り込めるようにテラス全面に中庭を配したコの字型の住宅。インテリアは落ち着いたホテルライクなテイスト、ラグジュアリーな空間が意識されている。動線にもしっかりこだわりが見える。家族の動線はシューズクローク→洗面コーナー→お風呂と一直線に繋がっており、小さな子どもが泥だらけで帰ってきても、リビングを汚す心配がない。帰宅後の手洗いの習慣形成にも役立つ動線が魅力的だ。これまでの暮らしに、「四季折々の自然を家… 続きを読む

太陽の日差しや明るさ、心地よい風、そして自然の彩りを室内に採り込めるようにテラス全面に中庭を配したコの字型の住宅。インテリアは落ち着いたホテルライクなテイスト、ラグジュアリーな空間が意識されている。動線にもしっかりこだわりが見える。家族の動線はシューズクローク→洗面コーナー→お風呂と一直線に繋がっており、小さな子どもが泥だらけで帰ってきても、リビングを汚す心配がない。帰宅後の手洗いの習慣形成にも役立つ動線が魅力的だ。これまでの暮らしに、「四季折々の自然を家族と一緒に眺める」という楽しみ方が加わったようだ。

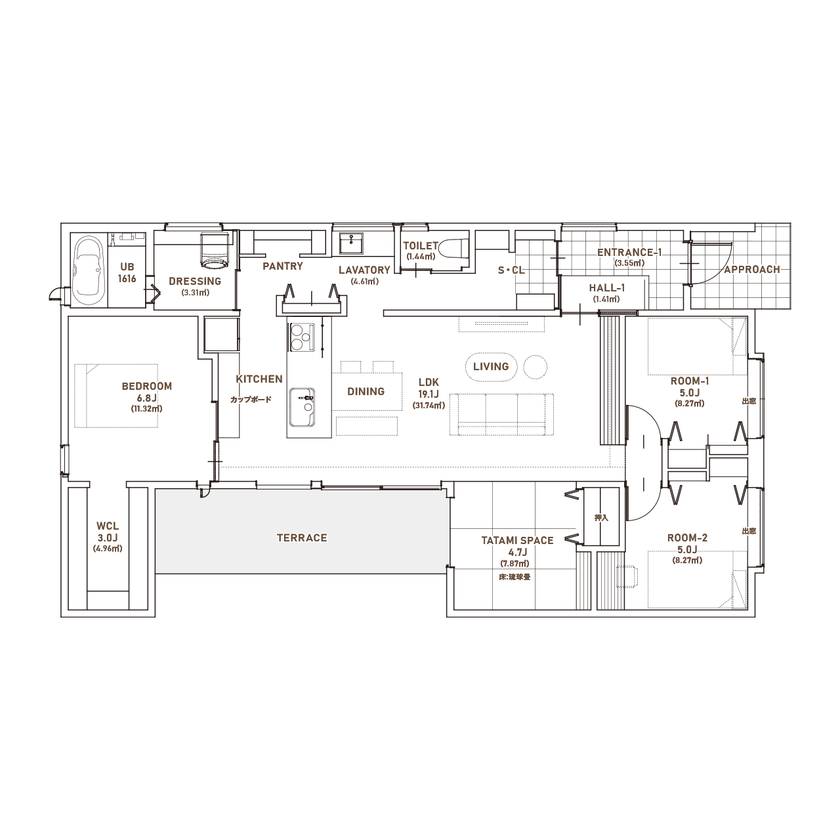
間取り図(4LDK)

1階
THE HAUS ザハウス 【大分県中津市/平屋/4LDK/塗り壁】中庭の景色を採り込むコの字型の平屋の間取り図(4LDK)1階
この会社をもっと知りたくなったら
無料でお届け!まずはカタログ請求

内外観ギャラリー

この会社をもっと知りたくなったら
無料でお届け!まずはカタログ請求

この会社の他の建築実例を見る

この建築実例が気になった方へおすすめ

この建築実例の詳細情報

この建築実例を建てた店舗情報

店舗名 小倉店
住所 福岡県北九州市小倉南区徳力3-18-5
問い合わせ
0120-928-311
  • ※営業時間内の対応となります。

  • ※お問い合わせの際は「SUUMO(スーモ)を見て」とお伝え下さい。

ホームページ この会社のホームページへ

THE HAUS ザハウスのコンテンツ一覧

お問い合わせ

カタログをもらう
施工実例集
THE HAUS ザハウスのカタログ(スタイルブック)
スタイルブック
問合コード:1563140002
お問い合わせ先
0120-928-311
  • ※営業時間内の対応となります。

  • ※お問い合わせの際は「SUUMO(スーモ)を見て」とお伝え下さい。

小倉店
  • 福岡県北九州市小倉南区徳力3-18-5

  • 定休日:火曜・水曜

この会社のホームページへ

この会社が気になったら

カタログをもらう
施工実例集
THE HAUS ザハウスのカタログ(スタイルブック)
スタイルブック
問合コード:1563140002

関連キーワード

この建築実例のその他の特徴
ページトップへ戻る