THE HAUS ザハウス

THE HAUS ザハウス

北九州・行橋・中津エリアで【デザイン+性能+メンテナンスコスト】にこだわる家づくり
お気に入りに追加する
福岡県  Yさん
★間取り【平屋/3LDK+中庭】プライベート庭と借景を持つ漆黒の平屋
THE HAUS ザハウス ★間取り【平屋/3LDK+中庭】プライベート庭と借景を持つ漆黒の平屋の建築実例画像1
  • 本体価格
    2,327万円
    80.1万円/坪
  • 延床面積
    96.05m2 (29.0坪)
    敷地面積
    209.50m2 (63.3坪)
    家族構成
    夫婦(30代)+子ども2人
  • 竣工年月
    2022年6月
    工法
    木造軸組
この会社をもっと知りたくなったら
無料でお届け!まずはカタログ請求

施主Yさんのこだわり

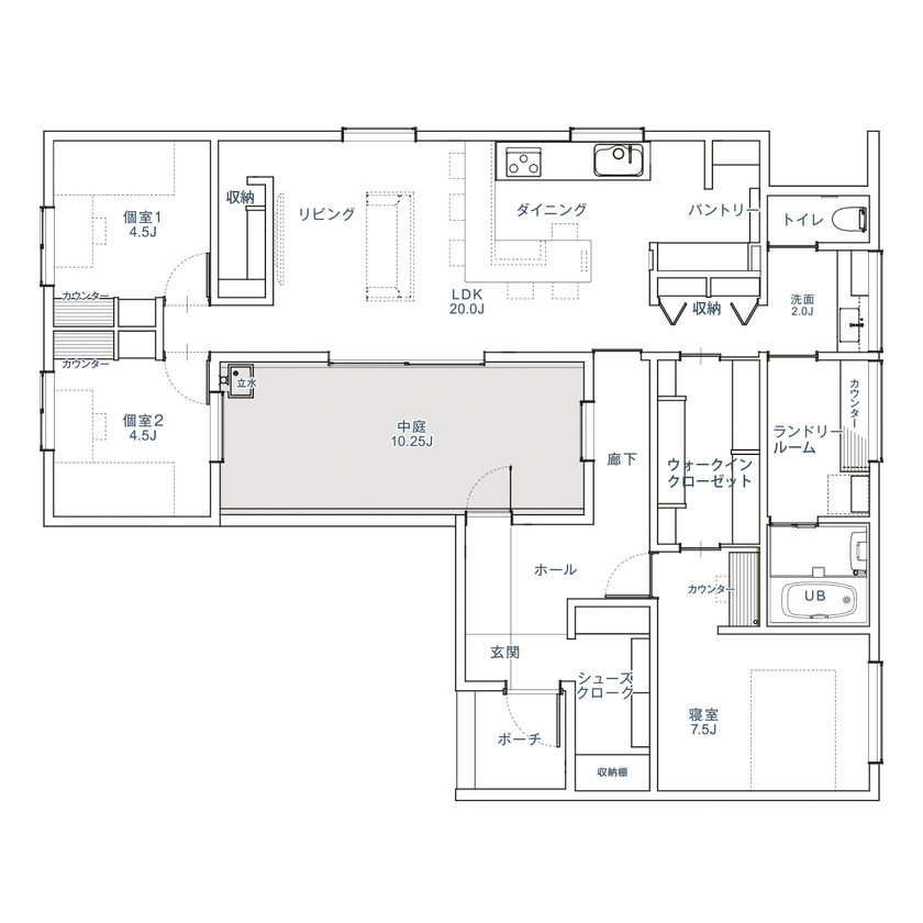
コの字型の居住空間で叶えた完全プライベートな庭を楽しむ暮らし

ザハウスのロの字型モデルハウスが気に入り、「中庭を中心に暮らす」というイメージで始まったというY様の家づくり。しかし、約60坪の敷地に、ロの字型の家を配置するのは難しく、建築家の熟考の結果、コの字型の住宅に塀をプラスすることで完全プライベートな庭を実現した。塀を屋根より低くしたため、光、風といった外気の良い環境を採り込みやすくなり、建物で囲むよりかえって良くなったと満足している。建物の外回りは、ブラックのガルバリウム鋼板の外壁でクールに、中庭部分はホワイト… 続きを読む

ザハウスのロの字型モデルハウスが気に入り、「中庭を中心に暮らす」というイメージで始まったというY様の家づくり。しかし、約60坪の敷地に、ロの字型の家を配置するのは難しく、建築家の熟考の結果、コの字型の住宅に塀をプラスすることで完全プライベートな庭を実現した。塀を屋根より低くしたため、光、風といった外気の良い環境を採り込みやすくなり、建物で囲むよりかえって良くなったと満足している。建物の外回りは、ブラックのガルバリウム鋼板の外壁でクールに、中庭部分はホワイトの塗り壁で優しい雰囲気に、表情を変えたのもポイントだ。マイナスをマイナスで終わらせない、むしろプラスに変える建築家のプランニングがいきた住宅となっている。

間取り図(3LDK+中庭)

1階
THE HAUS ザハウス ★間取り【平屋/3LDK+中庭】プライベート庭と借景を持つ漆黒の平屋の間取り図(3LDK+中庭)1階
この会社をもっと知りたくなったら
無料でお届け!まずはカタログ請求

内外観ギャラリー

この会社をもっと知りたくなったら
無料でお届け!まずはカタログ請求

この会社の他の建築実例を見る

この建築実例が気になった方へおすすめ

この建築実例の詳細情報

この建築実例を建てた店舗情報

店舗名 小倉店
住所 福岡県北九州市小倉南区徳力3-18-5
問い合わせ
0120-928-311
  • ※営業時間内の対応となります。

  • ※お問い合わせの際は「SUUMO(スーモ)を見て」とお伝え下さい。

ホームページ この会社のホームページへ

THE HAUS ザハウスのコンテンツ一覧

お問い合わせ

カタログをもらう
施工実例集
THE HAUS ザハウスのカタログ(スタイルブック)
スタイルブック
問合コード:1563140002
お問い合わせ先
0120-928-311
  • ※営業時間内の対応となります。

  • ※お問い合わせの際は「SUUMO(スーモ)を見て」とお伝え下さい。

小倉店
  • 福岡県北九州市小倉南区徳力3-18-5

  • 定休日:火曜・水曜

この会社のホームページへ

この会社が気になったら

カタログをもらう
施工実例集
THE HAUS ザハウスのカタログ(スタイルブック)
スタイルブック
問合コード:1563140002

関連キーワード

この建築実例のその他の特徴
ページトップへ戻る