アサヒアレックス

アサヒアレックス

お客様の暮らしのすべてを心でささえ、「心あたたまる幸せな暮らし」をご提供
お気に入りに追加する
宮城県仙台市若林区  Sさん
こだわり動線でいつも家族を感じられる家
アサヒアレックス こだわり動線でいつも家族を感じられる家の建築実例画像1
  • 本体価格
    1,990万円
    62.1万円/坪
  • 延床面積
    105.98m2 (32.0坪)
    敷地面積
    132.23m2 (39.9坪)
    家族構成
    -
  • 竣工年月
    工法
    木造軸組
この会社をもっと知りたくなったら
無料でお届け!まずはカタログ請求

施主Sさんのこだわり

コンパクトな動線で、自然と深まるコミュニケーション

コンパクトに繋がる動線で、家族が自然と顔を合わせられるような設計に。コミュニケーションをとりやすく、家族がのびのびと仲良く生活できる工夫が盛りだくさん。リビングの大きな窓で、LDK全体を明るくしてくれる。

コンパクトに繋がる動線で、家族が自然と顔を合わせられるような設計に。コミュニケーションをとりやすく、家族がのびのびと仲良く生活できる工夫が盛りだくさん。リビングの大きな窓で、LDK全体を明るくしてくれる。

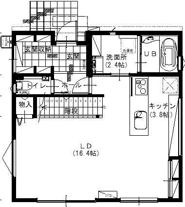
間取り図(3LDK)

1階
アサヒアレックス こだわり動線でいつも家族を感じられる家の間取り図(3LDK)1階
2階
アサヒアレックス こだわり動線でいつも家族を感じられる家の間取り図(3LDK)2階
この会社をもっと知りたくなったら
無料でお届け!まずはカタログ請求

内外観ギャラリー

この会社をもっと知りたくなったら
無料でお届け!まずはカタログ請求

この会社の他の建築実例を見る

この建築実例が気になった方へおすすめ

この建築実例の詳細情報

この建築実例を建てた店舗情報

住所 新潟県新潟市中央区美咲町1-9-48
問い合わせ
025-285-1112
  • ※営業時間内の対応となります。

  • ※お問い合わせの際は「SUUMO(スーモ)を見て」とお伝え下さい。

ホームページ この会社のホームページへ

アサヒアレックスのコンテンツ一覧

お問い合わせ

カタログをもらう
総合カタログ
アサヒアレックスのカタログ(アサヒアレックス プロミスブック)
アサヒアレックス プロミスブック
問合コード:1050670002
お問い合わせ先
025-285-1112
  • ※営業時間内の対応となります。

  • ※お問い合わせの際は「SUUMO(スーモ)を見て」とお伝え下さい。

  • 新潟県新潟市中央区美咲町1-9-48

  • 定休日:水曜・木曜

この会社のホームページへ

この会社が気になったら

カタログをもらう
総合カタログ
アサヒアレックスのカタログ(アサヒアレックス プロミスブック)
アサヒアレックス プロミスブック
問合コード:1050670002

関連キーワード

この建築実例のその他の特徴
ページトップへ戻る