【2,000万円台/30坪台/間取り図】プライバシーを確保した充実の書斎がある住まい
施主Iさんのこだわり
閑静な住宅街に建つI様邸は、自社スタッフの自慢のマイホーム。前面道路からは縦長の窓と玄関しか見えないが、中に入るとリビングの明るさに驚かされる。住宅街での建築だからこそ、隣地や道路からの目線をさえぎりながらも開放感のある家になる様間取りを工夫。シンプルな外観は青く晴れた空に映える白一色。高性能外壁材ACLのパネルのデザインを変え、コストもシンプルに。これまで住まいづくりに携わってきたからこその工夫が散りばめられている。
閑静な住宅街に建つI様邸は、自社スタッフの自慢のマイホーム。前面道路からは縦長の窓と玄関しか見えないが、中に入るとリビングの明るさに驚かされる。住宅街での建築だからこそ、隣地や道路からの目線をさえぎりながらも開放感のある家になる様間取りを工夫。シンプルな外観は青く晴れた空に映える白一色。高性能外壁材ACLのパネルのデザインを変え、コストもシンプルに。これまで住まいづくりに携わってきたからこその工夫が散りばめられている。
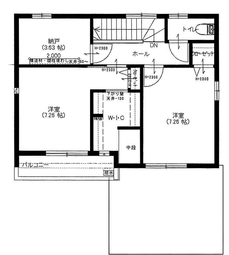
間取り図(3LDK)
内外観ギャラリー
-
シンプルに白一色で仕上げられた外観は、グランロック塗装仕上げ。汚れが付きにくい高耐候アクリルシリコーン樹脂を主…
続きを読む
シンプルに白一色で仕上げられた外観は、グランロック塗装仕上げ。汚れが付きにくい高耐候アクリルシリコーン樹脂を主原料とした長期耐久塗材を採用。プライバシーを守るため道路側にはスリット窓のみ。西側ということもあり、西日対策も兼ねている。スリット窓は開口部が細いため、通りの車の音なども室内に入りずらく、音対策にもなっている。道路側から夜、窓越しにリビングが見えないように、手入れのしやすいシマトネリコを植えた。玄関ドアの色とも美しく、洗練された仕上がり。
-
将来を見据えて、スロープを上がり、玄関へ。程よい高低差も視線を気にせず暮らせるポイントだが、植栽をうまく活用す…
続きを読む
将来を見据えて、スロープを上がり、玄関へ。程よい高低差も視線を気にせず暮らせるポイントだが、植栽をうまく活用するのもポイント。リビング(手前)側にはユーカリ(ポポラス)を植え、プライバシーを確保。外壁パネルのデザインはチェック柄のパネルを部分的に使用することで同じ白一色でも、アクセントとなっている。
-
玄関にはスマートキーを採用。玄関ドアにカギ穴が見えず、防犯対策。両手に荷物を抱えていても鍵を身につけていれば、…
続きを読む
玄関にはスマートキーを採用。玄関ドアにカギ穴が見えず、防犯対策。両手に荷物を抱えていても鍵を身につけていれば、ボタン一つで開錠できるのも日々の暮らしの中で嬉しい機能。扉を開いた時に、室内が見えにくいよう、扉の正面はあえて壁に。縦長のニッチに照明を入れ、玄関の飾り棚として、お気に入りのインテリアを飾っている。
-
LDKに入ると外観からは想像できないほど明るい。その理由は南側の大きな窓と、天井のトップライト(天窓)隣地から…
続きを読む
LDKに入ると外観からは想像できないほど明るい。その理由は南側の大きな窓と、天井のトップライト(天窓)隣地からの目線をさえぎるため、レースのカーテンを占めていることが多くてもこの天窓があればダイニングはもちろん、隣接するキッチンまで明るい。
-
リビングに向けて、対面配置したキッチンはリビング側から手元や、キッチン収納に置いてある家電が見えないようにあえ…
続きを読む
リビングに向けて、対面配置したキッチンはリビング側から手元や、キッチン収納に置いてある家電が見えないようにあえて高く設計。約140cmほどある壁は落ち着いたモスグリーン系のモザイクタイルでLDK全体のアクセントになっている。キッチン背面のキッチン収納は白を選び、室内空間を広く感じられる工夫がここにも。
-
キッチン奥には洗面脱衣所兼ランドリールーム、浴室と最短家事動線となっている。洗面脱衣所兼ランドリールームは2W…
続きを読む
キッチン奥には洗面脱衣所兼ランドリールーム、浴室と最短家事動線となっている。洗面脱衣所兼ランドリールームは2Wayになっており、玄関ホールからアクセスすることも可能。玄関からLDK水回りと回遊できる動線。
-
高く設計した壁のキッチン側ももちろん有効活用。少し背の高い壁厚収納をつくり「スパイスニッチに仕上げた。キッチン…
続きを読む
高く設計した壁のキッチン側ももちろん有効活用。少し背の高い壁厚収納をつくり「スパイスニッチに仕上げた。キッチン側の仕上げはタイルではなく、不燃材のキッチンパネルを採用。水はねや油汚れなども簡単に掃除できる手入れのしやすさが決め手だった。
-
スパイスニッチは洗剤や調味料など用途によってそれぞれ使い分けができるように工夫。コンロ側のスパイスニッチにはコ…
続きを読む
スパイスニッチは洗剤や調味料など用途によってそれぞれ使い分けができるように工夫。コンロ側のスパイスニッチにはコンセントをつけ、キッチンでフードプロセッサーなどの家電が使用できるようになっている。
-
約20帖のLDK。幅も高さも大きくとった窓からは外の光が室内に入り、日中は照明が必要ないほど明るい。大きな窓に…
続きを読む
約20帖のLDK。幅も高さも大きくとった窓からは外の光が室内に入り、日中は照明が必要ないほど明るい。大きな窓により圧迫感を排除できているが、より開放的な空間になるよう、天井を折上げ天井仕上げを採用。2段にすることでデザイン性もリビングのアクセントになっている。
-
書斎という名の「私(弊社スタッフ)の癒し部屋」3.6帖の広さには書斎にはデスクやキャビネットと併せて造り付けの…
続きを読む
書斎という名の「私(弊社スタッフ)の癒し部屋」3.6帖の広さには書斎にはデスクやキャビネットと併せて造り付けの書棚を設けている。壁の厚みを利用した書棚には本がぎっしり。耐久性も考慮している。書棚をつくりつけることで別途本棚を置く必要はなく、3.6帖の広さの書斎は広すぎず、狭すぎず、丁度落ち着く、満足できる広さとのこと。
この会社の他の建築実例を見る
-
-
-
〈体感型内覧会〉ワンランク上を目指す住宅を体感してください!充実の設備に使いやすい間取り♪プロが考えた物件をご見学頂けます!!
この建築実例の詳細情報
|
商品名
|
-
|
|
部材・設備
|
地熱床暖房
|
|
延床面積
|
105.25m2
(31.8坪)
|
|
敷地面積
|
175.21m2
(53.0坪)
|
|
工法
|
木造軸組
|
|
本体価格
|
2,340万円
|
|
竣工年月
|
2015年2月
|
この建築実例を建てた店舗情報
ユニバーサルホーム(福岡マリナ通り店、福岡南店、宗像店、唐津店)のコンテンツ一覧