昭和住宅

昭和住宅

【北九州】住むほどに愛着が深まる。創業から50年以上続く、地元無垢材で建てる家
お気に入りに追加する
福岡県北九州市若松区  Kさん
【北九州市/3980万円/間取図有】ビルトインガレージ×5LDK。濡れずに入れる玄関と2階リビングの開放感が◎
昭和住宅 【北九州市/3980万円/間取図有】ビルトインガレージ×5LDK。濡れずに入れる玄関と2階リビングの開放感が◎の建築実例画像1
  • 本体価格
    3,980万円
    80.4万円/坪
  • 延床面積
    163.68m2 (49.5坪)
    敷地面積
    161.20m2 (48.7坪)
    家族構成
    父+本人+子ども2人
  • 竣工年月
    2021年3月
    工法
    木造軸組
この会社をもっと知りたくなったら
無料でお届け!まずはカタログ請求

施主Kさんのこだわり

ガレージメインで大人4人がストレスなく暮らしたい…。提案されたプランを見て即決!

父が一人で住む実家を、現在の家賃の負担や、将来のことを見据えて、建替えることに決めたKさん。スーモカウンターで紹介された数社のうち、希望を満たした上にワクワクするような間取りを提案した昭和住宅に、「即決でした」。2台+1台のガレージと、そのビルトインガレージから雨に濡れずに玄関ホールにアプローチできる動線に、もともとガレージ希望だった息子さんも納得。家族がストレスなく暮らせるようにそれぞれの独立した個室を確保。2階にリビングを持ってきたおかげで開放感は抜群… 続きを読む

父が一人で住む実家を、現在の家賃の負担や、将来のことを見据えて、建替えることに決めたKさん。スーモカウンターで紹介された数社のうち、希望を満たした上にワクワクするような間取りを提案した昭和住宅に、「即決でした」。2台+1台のガレージと、そのビルトインガレージから雨に濡れずに玄関ホールにアプローチできる動線に、もともとガレージ希望だった息子さんも納得。家族がストレスなく暮らせるようにそれぞれの独立した個室を確保。2階にリビングを持ってきたおかげで開放感は抜群。「南側には高い建物がなく、遠く海を見ることも出来て、とても開放的です。2階リビングはお隣の視線も気にならないので、プライバシー対策にも有利ですね。道路側から見えるタタミコーナーの丸窓も、外観のアクセントになって気に入ってます」セルロースファイバー吹付で断熱性能にも配慮。大人4人の快適で落ち着いた暮らしが実現しそう。

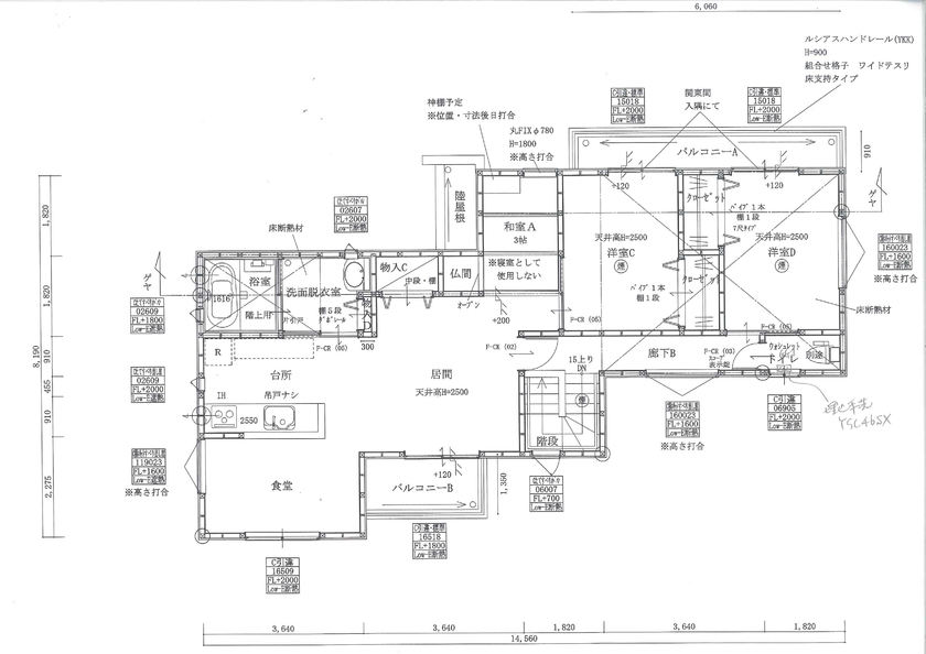
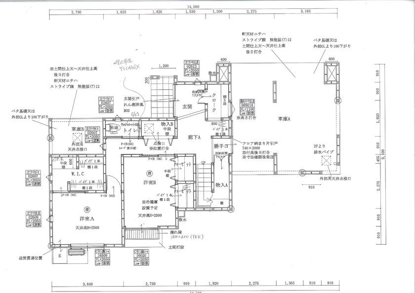
間取り図(5LDK)

1階
昭和住宅 【北九州市/3980万円/間取図有】ビルトインガレージ×5LDK。濡れずに入れる玄関と2階リビングの開放感が◎の間取り図(5LDK)1階
2階
昭和住宅 【北九州市/3980万円/間取図有】ビルトインガレージ×5LDK。濡れずに入れる玄関と2階リビングの開放感が◎の間取り図(5LDK)2階
この会社をもっと知りたくなったら
無料でお届け!まずはカタログ請求

内外観ギャラリー

この会社をもっと知りたくなったら
無料でお届け!まずはカタログ請求

この会社の他の建築実例を見る

この建築実例が気になった方へおすすめ

  • この建築実例のカタログをもらう

    昭和住宅のカタログ画像
    施工実例集
    過去事例の間取り図・価格を知れる!昭和住宅の実例集
    昭和住宅の総合カタログです。
  • モデルハウスを見学する

    昭和住宅のモデルハウス画像1
    昭和住宅のモデルハウス画像2
    • 延床面積
      131.33m239.7坪)
    • 所在地
      福岡県北九州市八幡西区町上津役西4-2-16
    • 営業時間
      10:00~17:00(定休日:お盆、年末年始)
    • ナチュラル
    • 和モダン
    • 子育て
    • 外と繋がる
  • イベントに参加する

    昭和住宅のイベント画像
    【事前予約/八幡西区】無垢材の家は高いと諦めてない?予算内で叶える、心地よい暮らし発見プラン相談会
    • 設計・資金相談会
    • 完成見学会
    • 土地相談会
    開催日
    随時
    開催場所
    福岡県北九州市八幡西区町上津役西4-2-16

この建築実例の詳細情報

この建築実例を建てた店舗情報

住所 福岡県北九州市八幡西区町上津役西4-2-16
問い合わせ
093-612-0228
  • ※営業時間内の対応となります。

  • ※お問い合わせの際は「SUUMO(スーモ)を見て」とお伝え下さい。

ホームページ この会社のホームページへ

昭和住宅のコンテンツ一覧

お問い合わせ

カタログをもらう
施工実例集
昭和住宅のカタログ(過去事例の間取り図・価格を知れる!昭和住宅の実例集)
過去事例の間取り図・価格を知れる!昭和住宅の実例集
問合コード:1016380001
イベントに参加する
お問い合わせ先
093-612-0228
  • ※営業時間内の対応となります。

  • ※お問い合わせの際は「SUUMO(スーモ)を見て」とお伝え下さい。

  • 福岡県北九州市八幡西区町上津役西4-2-16

  • 定休日:なし

この会社のホームページへ

この会社が気になったら

カタログをもらう
施工実例集
昭和住宅のカタログ(過去事例の間取り図・価格を知れる!昭和住宅の実例集)
過去事例の間取り図・価格を知れる!昭和住宅の実例集
問合コード:1016380001
イベントに参加する

関連キーワード

この建築実例のその他の特徴
ページトップへ戻る