【間取り図有/3LDK/39.8坪】外観も内観もこだわりがいっぱい!「simple雑貨店」がテーマの土間の家
施主Nさんのこだわり
「帰ってきて眺めたときに、うきうきするような家にしたかった」と語るNさん。時間をかけて探したこだわりのマテリアルと、計算された機能的な間取り。使い勝手とおしゃれさを兼ね備えた雑貨屋のようなお家が完成した。外観は7寸勾配の大屋根の形状を最大限に活かし、内部は外観そのままの天井空間に。2階にはロフトや勾配天井の居室など、色々な表情が楽しめる空間が広がる。室内はこだわりぬいた雑貨や照明たちが映えるように空間自体をシンプルにそして無機質に仕上げた。雰囲気を出すため…
続きを読む
「帰ってきて眺めたときに、うきうきするような家にしたかった」と語るNさん。時間をかけて探したこだわりのマテリアルと、計算された機能的な間取り。使い勝手とおしゃれさを兼ね備えた雑貨屋のようなお家が完成した。外観は7寸勾配の大屋根の形状を最大限に活かし、内部は外観そのままの天井空間に。2階にはロフトや勾配天井の居室など、色々な表情が楽しめる空間が広がる。室内はこだわりぬいた雑貨や照明たちが映えるように空間自体をシンプルにそして無機質に仕上げた。雰囲気を出すための素材には、漆喰・モルタル・オーク・真鍮・アイアンを使用し、色味・高さなどもチグハグにならないように統一。特に生活感の出るコンセントや収納類、インターホン、給湯器リモコン等を目の届く場所から極力排除しつつ、使いやすいところに配置することにも気を配ってコーディネートしている。唯一無二の魅力が満載なN邸。これからの暮らしが非常に楽しみである。
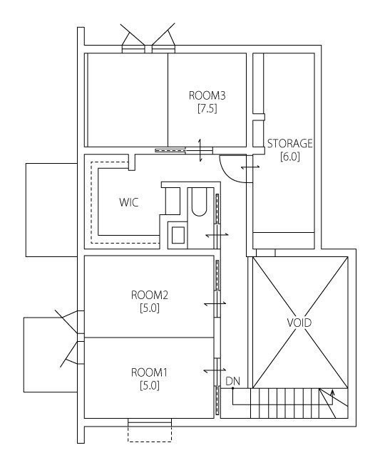
間取り図(3LDK+小屋裏収納 )
内外観ギャラリー
-
屋根の勾配を利用した開放的なリビング。漆喰を基調に白煉瓦タイルを使い、シンプルながら飽きのこない空間を演出。吹…
続きを読む
屋根の勾配を利用した開放的なリビング。漆喰を基調に白煉瓦タイルを使い、シンプルながら飽きのこない空間を演出。吹き抜けの間接照明が上品な印象を与えている。収納設備も兼ねた造作ベンチの上にはNさんの照明コレクションが並ぶ
-
シンプルホテルライクな造作洗面台。ゆとりのある大きなミラーは空間を広く見せる効果も。幅が広くて使いやすいボウル…
続きを読む
シンプルホテルライクな造作洗面台。ゆとりのある大きなミラーは空間を広く見せる効果も。幅が広くて使いやすいボウルや壁付け水栓など、細部へのこだわりも徹底している
-
くすみカラーのタイルをアクセントに、漆喰・オーク・モルタルをバランスよく取り入れている。腰壁は通常よりも高めに…
続きを読む
くすみカラーのタイルをアクセントに、漆喰・オーク・モルタルをバランスよく取り入れている。腰壁は通常よりも高めに設計し、生活感が出やすい手元を隠す。背面の幅3mの飾り棚には、お気に入りの雑貨を飾ってインテリアを楽しめる空間に
-
使い勝手抜群の現代版土間キッチン。水や油跳ねがあってもお掃除しやすい。キッチンとカウンターは素材を揃えて造作し…
続きを読む
使い勝手抜群の現代版土間キッチン。水や油跳ねがあってもお掃除しやすい。キッチンとカウンターは素材を揃えて造作したもので、モールテックス仕上げが印象的。コテむらまで美しいのが特徴。中央の小さな食品搬入口もユニークなアイデアだ
-
格子のデザイン窓の配置まで計算されたシンプルかつ個性的な外観。漆喰の白、ガルバリウムの黒、軒天や玄関まわりを飾…
続きを読む
格子のデザイン窓の配置まで計算されたシンプルかつ個性的な外観。漆喰の白、ガルバリウムの黒、軒天や玄関まわりを飾る無垢材のコントラストも明るく可憐な印象。7寸勾配になった屋根が、そのまま間取りにも活かされている
-
大きなベンチが置けるほど広い玄関土間。天井まである大きな窓が光をたくさん取り込み、外と室内を緩やかに繋ぐ。大胆…
続きを読む
大きなベンチが置けるほど広い玄関土間。天井まである大きな窓が光をたくさん取り込み、外と室内を緩やかに繋ぐ。大胆な空間使いや、インテリアに溶け込むプレインな壁面照明はまるでギャラリーのよう。
-
ランドリールームのカウンターは家具に合わせて造作。タオルや着替えなどを収納できるのはもちろん、洗濯物を畳んだり…
続きを読む
ランドリールームのカウンターは家具に合わせて造作。タオルや着替えなどを収納できるのはもちろん、洗濯物を畳んだり、アイロンをかけるための作業台としても活躍する
-
間接照明がくつろぎを演出する浴室。モルタル塗りのようなライトグレーのタイルでまとめられている。海外風のレインシ…
続きを読む
間接照明がくつろぎを演出する浴室。モルタル塗りのようなライトグレーのタイルでまとめられている。海外風のレインシャワーがラグジュアリーな空間
-
勾配天井の一部を有効活用した小さな空間は、収納部屋兼リモートワークスペースにもなる。高さ140cmのアーチ型ド…
続きを読む
勾配天井の一部を有効活用した小さな空間は、収納部屋兼リモートワークスペースにもなる。高さ140cmのアーチ型ドアがポイント。デスクは長時間座っていても疲れにくい掘りごたつ式にしているので、作業効率も上がりそうだ
-
ベッドを「置く」という概念を超越した造作ベッドフレーム。部屋の幅いっぱいに設計し、マットレスを敷くだけで使用で…
続きを読む
ベッドを「置く」という概念を超越した造作ベッドフレーム。部屋の幅いっぱいに設計し、マットレスを敷くだけで使用できる。ベッドの隙間に物が落ちたりゴミが溜まる問題を解決してくれる実用的なアイデア
この会社の他の建築実例を見る
-
-
【宇美町/見学予約受付中】グレージュ×広い土間KASHII DESIGN HOMEモデルハウス
この建築実例の詳細情報
|
商品名
|
-
|
|
部材・設備
|
-
|
|
延床面積
|
131.86m2
(39.8坪)
|
|
敷地面積
|
219.62m2
(66.4坪)
|
|
工法
|
木造軸組
|
|
本体価格
|
4,000万円~
|
|
竣工年月
|
-
|
この建築実例を建てた店舗情報
KASHII DESIGN HOME / 香椎建設のコンテンツ一覧