辰巳住宅

辰巳住宅

機能性はもちろん感性にも響くデザインで、お客様の想いをかたちにする家づくり
お気に入りに追加する
福岡県北九州市
【木の温もり感じる ホワイトナチュラルハウス】間取り図有/ランドリールーム/DEN
辰巳住宅 【木の温もり感じる ホワイトナチュラルハウス】間取り図有/ランドリールーム/DENの建築実例画像1
  • 本体価格
    -
  • 延床面積
    113.44m2 (34.3坪)
    敷地面積
    -
    家族構成
    -
  • 竣工年月
    -
    工法
    2×4、2×6
この会社をもっと知りたくなったら
無料でお届け!まずはカタログ請求

施主のこだわり

【木の温もり感じる】ホワイトナチュラルハウス

外壁はグレーとホワイトの2色を貼り分け、玄関ポーチをアーチにした可愛らしい外観。地面のコンクリートも波模様で曲線で統一したのも細かなこだわり。門柱も木目調にし可愛らしい世界観をつくりました。ライトグレーをメインクロスに採用し、床材や家具をオーク色に統一することで洗練された印象に。照明や小物でアクセントを追加しました。1階にはあると便利なリビング続きの畳コーナー。2階には扉なしのDENを採用し、収納としても重宝します。

外壁はグレーとホワイトの2色を貼り分け、玄関ポーチをアーチにした可愛らしい外観。地面のコンクリートも波模様で曲線で統一したのも細かなこだわり。門柱も木目調にし可愛らしい世界観をつくりました。ライトグレーをメインクロスに採用し、床材や家具をオーク色に統一することで洗練された印象に。照明や小物でアクセントを追加しました。1階にはあると便利なリビング続きの畳コーナー。2階には扉なしのDENを採用し、収納としても重宝します。

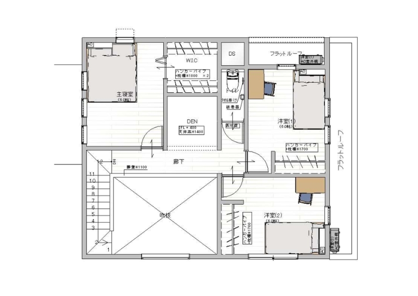
間取り図(3LDK+DEN)

1階
辰巳住宅 【木の温もり感じる ホワイトナチュラルハウス】間取り図有/ランドリールーム/DENの間取り図(3LDK+DEN)1階
2階
辰巳住宅 【木の温もり感じる ホワイトナチュラルハウス】間取り図有/ランドリールーム/DENの間取り図(3LDK+DEN)2階
この会社をもっと知りたくなったら
無料でお届け!まずはカタログ請求

内外観ギャラリー

この会社をもっと知りたくなったら
無料でお届け!まずはカタログ請求

この会社の他の建築実例を見る

この建築実例が気になった方へおすすめ

この建築実例の詳細情報

この建築実例を建てた店舗情報

住所 福岡県北九州市八幡西区幸神4-7-4
問い合わせ
0120-30-2501
  • ※営業時間内の対応となります。

  • ※お問い合わせの際は「SUUMO(スーモ)を見て」とお伝え下さい。

ホームページ この会社のホームページへ

辰巳住宅のコンテンツ一覧

お問い合わせ

カタログをもらう
お問い合わせ先
0120-30-2501
  • ※営業時間内の対応となります。

  • ※お問い合わせの際は「SUUMO(スーモ)を見て」とお伝え下さい。

  • 福岡県北九州市八幡西区幸神4-7-4

  • 定休日:毎週火曜日・水曜日

この会社のホームページへ
カタログ一覧

この会社が気になったら

カタログをもらう

関連キーワード

この建築実例のその他の特徴
ページトップへ戻る