新日本ホームズ

新日本ホームズ

「New JAPANDI」新、日本の家。家族をひとつにする。家族が帰りたくなる家
お気に入りに追加する
福岡県福岡市早良区  Mさん
シンプルモダンなデザインとゆとりある快適な暮らしを意識した住まい
新日本ホームズ シンプルモダンなデザインとゆとりある快適な暮らしを意識した住まいの建築実例画像1
  • 本体価格
    -
  • 延床面積
    244.90m2 (74.0坪)
    敷地面積
    -
    家族構成
    親夫婦+夫婦+子ども1人(12歳)
  • 竣工年月
    -
    工法
    2×4、2×6
この会社をもっと知りたくなったら
無料でお届け!まずはカタログ請求

施主Mさんのこだわり

ご家族の居住快適性とゆとりをデザインしたシンプルモダンな2世帯住宅

奥様のこだわりの空間であるキッチンは床材に合わせたデザインをチョイスし、スタイリッシュでまとまりのあるデザインを意識されています。ゆとりのあるスペースとたっぷりの収納を兼ね備えています。大き目のパントリーもあり、家事のしやすいすっきりとした空間を実現。また、ご家族やご友人とBBQを楽しみたいとのご要望で設置した広々としたバルコニーは、夏場にとても活躍しているそう。そのうえ、広さのあるバルコニーは雨の降り込みが気にならないため、雨の日の洗濯も気兼ねなくできま… 続きを読む

奥様のこだわりの空間であるキッチンは床材に合わせたデザインをチョイスし、スタイリッシュでまとまりのあるデザインを意識されています。ゆとりのあるスペースとたっぷりの収納を兼ね備えています。大き目のパントリーもあり、家事のしやすいすっきりとした空間を実現。また、ご家族やご友人とBBQを楽しみたいとのご要望で設置した広々としたバルコニーは、夏場にとても活躍しているそう。そのうえ、広さのあるバルコニーは雨の降り込みが気にならないため、雨の日の洗濯も気兼ねなくできます。その他、室内干し用の洗濯バーも三カ所設置するなど快適に生活するための工夫がされています。屋根裏収納スペースも広く、お子様のお友達との遊び場としてもお気に入りの場所となっているようです。また、浴室は洗い場スペースを広めにとり、洗面・脱衣所はお子様の成長に配慮し、ロールカーテンをつけて洗面スペースと脱衣スペースが分けられるように。そして、旦那様のお仕事スペースは陽当たりも良く、広さも十分で落ち着いてお仕事に取り組めます。お部屋だけでなく階段の広さや収納力にもこだわり、ご家族が快適に過ごせる工夫の詰まった住まいが実現できました。

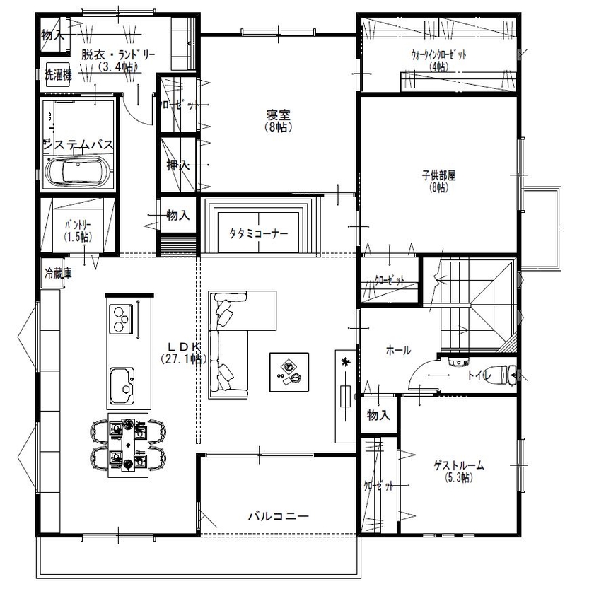
間取り図(7LDK+店舗)

1階
新日本ホームズ シンプルモダンなデザインとゆとりある快適な暮らしを意識した住まいの間取り図(7LDK+店舗)1階
2階
新日本ホームズ シンプルモダンなデザインとゆとりある快適な暮らしを意識した住まいの間取り図(7LDK+店舗)2階
この会社をもっと知りたくなったら
無料でお届け!まずはカタログ請求

内外観ギャラリー

この会社をもっと知りたくなったら
無料でお届け!まずはカタログ請求

この会社の他の建築実例を見る

この建築実例が気になった方へおすすめ

この建築実例の詳細情報

この建築実例を建てた店舗情報

住所 福岡県北九州市八幡西区折尾3-3-22(本社)
問い合わせ
0120-71-2033
  • ※営業時間内の対応となります。

  • ※お問い合わせの際は「SUUMO(スーモ)を見て」とお伝え下さい。

ホームページ この会社のホームページへ

新日本ホームズのコンテンツ一覧

お問い合わせ

カタログをもらう
カタログ一覧

この会社が気になったら

カタログをもらう

関連キーワード

この建築実例のその他の特徴
ページトップへ戻る