【2700万円台/31.27坪/越前市】木の温もりあふれる杉の勾配天井と収納・動線が調和する平屋風住宅
-
本体価格
2,700万円~2,799万円
(86.4万円~89.6万円/坪)
-
-
施主Mさんのこだわり
子育て世代の施主様が希望したのは、家族が毎日を快適に過ごせる収納力と家事動線、そして木の温もりを感じられる住まいである。延床31坪というコンパクトな広さの中に、玄関クロークや大容量のパントリー、ランドリールームを取り入れ、使いやすさを高めた。玄関クロークには靴やベビーカー、外遊びの道具もすっきり収まり、家の中をきれいに保てる。キッチン後ろに設けたパントリーは食材や日用品をまとめて収納でき、買い物帰りの片付けもスムーズに。洗面室に隣接するランドリールームは「…
続きを読む
子育て世代の施主様が希望したのは、家族が毎日を快適に過ごせる収納力と家事動線、そして木の温もりを感じられる住まいである。延床31坪というコンパクトな広さの中に、玄関クロークや大容量のパントリー、ランドリールームを取り入れ、使いやすさを高めた。玄関クロークには靴やベビーカー、外遊びの道具もすっきり収まり、家の中をきれいに保てる。キッチン後ろに設けたパントリーは食材や日用品をまとめて収納でき、買い物帰りの片付けもスムーズに。洗面室に隣接するランドリールームは「洗う」「干す」「畳む」が一か所で完結し、天候に左右されず安心して洗濯できる。家事の負担を軽減する工夫は、共働き世帯にも大きな魅力となっている。リビングは杉材を使った勾配天井が広がり、木の香りと質感が家族をやさしく包み込む。壁の一部には塗り壁を採用し、照明の光で表情が変わることで昼と夜に違う雰囲気を楽しむことができる。さらに南面の掃き出し窓を活かしたパッシブデザインや、福井県産材の利用により地域の気候に寄り添った家づくりを実現。冬はあたたかく夏は涼しく過ごせる断熱性能と、地震に強い構造を備え、家族が長く安心して暮らせる住まいとなっている。
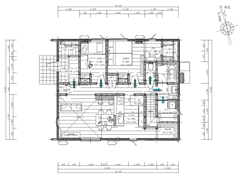
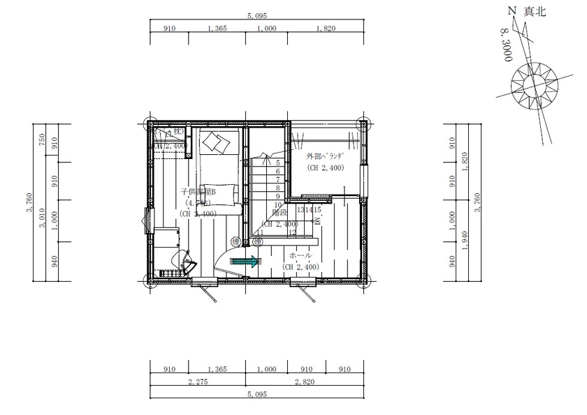
間取り図(3LDK)
内外観ギャラリー
-
杉材を使った勾配天井が広がるLDKは、木の温もりと開放感を感じられる心地よい空間。南面の大きな掃き出し窓から光…
続きを読む
杉材を使った勾配天井が広がるLDKは、木の温もりと開放感を感じられる心地よい空間。南面の大きな掃き出し窓から光をたっぷり取り込み、冬は暖かな日差しが奥まで届く。夏は軒で直射を和らげ風が抜けやすい設計で、一年を通して快適に過ごせる。家族が自然と集まり、会話が生まれる住まいの中心となっている。
-
リビングの一面には塗り壁を採用。職人の手仕事による風合いと光の陰影が合わさって表情豊かな空間となっている。昼と…
続きを読む
リビングの一面には塗り壁を採用。職人の手仕事による風合いと光の陰影が合わさって表情豊かな空間となっている。昼と夜で違う雰囲気を楽しめるだけでなく、調湿性に優れ室内を快適に保つ効果もある。間接照明がやわらかく壁を照らし、杉材の天井と調和することで家族が自然と集まりたくなるあたたかな雰囲気を演出。デザイン性と機能性を兼ね備えた住まいの魅力が感じられる一角である。
-
LDKとホールは扉や仕切りを設けず一体的につなげることで、家の中をぐるりと回れる「回遊動線」を実現。料理や洗濯…
続きを読む
LDKとホールは扉や仕切りを設けず一体的につなげることで、家の中をぐるりと回れる「回遊動線」を実現。料理や洗濯など、日々の家事をしながら他の空間へ行き来しやすく、家族の動きが自然につながる設計。玄関からリビングへもスムーズに入りやすいため、子どもが帰宅してすぐに顔を合わせられる安心感もある。 将来子どもが成長して生活スタイルが変わっても、お互いの気配を感じやすく長く暮らしやすい住まいとなっている。暮らしの変化に寄り添う工夫が家族の快適さを支えている。
-
キッチン前のカウンターは高さ1050mmに設定。通常の900mmよりも少し高めにすることで、料理中の手元を自然…
続きを読む
キッチン前のカウンターは高さ1050mmに設定。通常の900mmよりも少し高めにすることで、料理中の手元を自然に隠しながら圧迫感を与えない工夫となっている。高すぎないため視線はリビングへ抜け、家族の顔を見ながら調理でき会話も生まれやすい。キッチンに立つ時間が長くても閉塞感を感じにくく、暮らしの中心で過ごせる安心感がある。家事をしながら子どもの様子を見守れ、将来子どもが成長しても家族と心地よい距離感でつながれるよう考えられた設計。
-
ダイニング横には無垢の杉材を使った造作カウンターを設けており、子どもの勉強や家事の合間の作業に限らず、在宅ワー…
続きを読む
ダイニング横には無垢の杉材を使った造作カウンターを設けており、子どもの勉強や家事の合間の作業に限らず、在宅ワークや読書など多目的に使える便利なスペース。自然素材ならではの温もりが手に触れるたびに心地よさを感じさせ、料理をしながら宿題を見守ったり家族の会話が自然に生まれたりと、距離を近くする役割も果たす。暮らしの変化に合わせて長く活用できる柔軟な設計。
-
キッチン背面に設けた「階段下収納」と「食品庫」は扉を付けずオープンにすることで、しまった物が一目で分かり必要な…
続きを読む
キッチン背面に設けた「階段下収納」と「食品庫」は扉を付けずオープンにすることで、しまった物が一目で分かり必要な物をすぐに取り出せる。まとめ買いした食材や日用品もたっぷり収まり、出し入れの手間を減らす工夫となっている。リビング側からは視線を程よく遮る位置にあり、生活感を抑えながら開放感と使いやすさを両立させた、家族にやさしい収納である。
-
洗面脱衣室とサンルームは仕切りなくつなげることで、「洗う」・「干す」・「畳む」が一か所で完結する動線を実現。造…
続きを読む
洗面脱衣室とサンルームは仕切りなくつなげることで、「洗う」・「干す」・「畳む」が一か所で完結する動線を実現。造作棚やニッチにはタオルや日用品をすっきり収納でき、共働きや子育て世代にうれしい工夫となっている。自然な光と風が入り心地よさも感じられる空間である。
-
玄関にはアーチ型のニッチを設け、小物や花を飾ることで暮らしに彩りを添えている。お客様を迎える空間にやわらかな印…
続きを読む
玄関にはアーチ型のニッチを設け、小物や花を飾ることで暮らしに彩りを添えている。お客様を迎える空間にやわらかな印象を与えると同時に、家族にとっても帰宅時に心地よさを感じられる場所となり、住まいの第一印象を明るく整えている。
-
主寝室の一角には造作の杉製カウンターを設け、在宅ワークや趣味の作業に使えるスペースをつくっている。仕切りがない…
続きを読む
主寝室の一角には造作の杉製カウンターを設け、在宅ワークや趣味の作業に使えるスペースをつくっている。仕切りがないWICも隣接しており、身支度・休息・作業がひとつの空間で完結する便利さがある。壁付照明のやわらかな光が手元を照らして、落ち着いた時間を過ごせるのも魅力。家族と同じ部屋にいながら自分の時間を楽しめる場所として暮らしにゆとりを添えている。
この会社の他の建築実例を見る
-
-
3Dプリンターでわが家の間取りを立体体験・家事動線や広さがひと目でわかる安心の家づくりワークショップです
参加特典
当日つくった間取り模型をそのままお持ち帰りいただけます
この建築実例の詳細情報
|
商品名
|
-
|
|
部材・設備
|
-
|
|
延床面積
|
103.38m2
(31.2坪)
|
|
敷地面積
|
188.45m2
(57.0坪)
|
|
工法
|
木造軸組
|
|
本体価格
|
2,700万円~2,799万円
|
|
竣工年月
|
2025年7月
|
この建築実例を建てた店舗情報
木ごころホーム 中西木材住宅事業部のコンテンツ一覧