タキナミ

タキナミ

福井で地域密着90年以上の総合住宅・不動産企業
お気に入りに追加する
【間取り図有】自慢したくなる家、私達だけの特別なマイホーム
タキナミ 【間取り図有】自慢したくなる家、私達だけの特別なマイホームの建築実例画像1
  • 本体価格
    2,000万円2,499万円
    62.6万円78.2万円/坪
  • 延床面積
    105.67m2 (31.9坪)
    敷地面積
    -
    家族構成
    夫婦+子ども
  • 竣工年月
    -
    工法
    木造軸組
この会社をもっと知りたくなったら
無料でお届け!まずはカタログ請求

施主のこだわり

自慢したくなる家、私達だけの特別なマイホーム

無垢の木とナチュラルな自然素材を使用したご家族全員の理想が詰まった特別なマイホームが完成しました。玄関に入ればたくさんのグリーンが迎えてくれ、家族とのコミュニケーションがとりやすいリビング階段が、常に家族を身近に感じられます。デザインや間取りだけでなく、高気密高断熱の住宅性能にもこだわり、省エネで賢く暮らす毎日。自慢したくなる個性が光るマイホームです。

無垢の木とナチュラルな自然素材を使用したご家族全員の理想が詰まった特別なマイホームが完成しました。玄関に入ればたくさんのグリーンが迎えてくれ、家族とのコミュニケーションがとりやすいリビング階段が、常に家族を身近に感じられます。デザインや間取りだけでなく、高気密高断熱の住宅性能にもこだわり、省エネで賢く暮らす毎日。自慢したくなる個性が光るマイホームです。

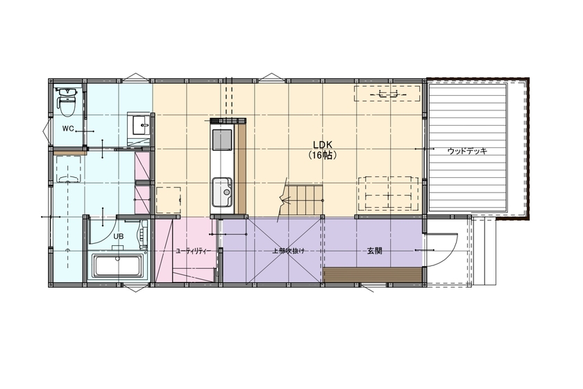
間取り図(3LDK)

1階
タキナミ 【間取り図有】自慢したくなる家、私達だけの特別なマイホームの間取り図(3LDK)1階
2階
タキナミ 【間取り図有】自慢したくなる家、私達だけの特別なマイホームの間取り図(3LDK)2階
この会社をもっと知りたくなったら
無料でお届け!まずはカタログ請求

内外観ギャラリー

この会社をもっと知りたくなったら
無料でお届け!まずはカタログ請求

この会社の他の建築実例を見る

この建築実例が気になった方へおすすめ

この建築実例の詳細情報

この建築実例を建てた店舗情報

店舗名 住まいの体感ランド
住所 福井県福井市灯明寺1丁目1412-1
問い合わせ
0776-24-3540
  • ※営業時間内の対応となります。

  • ※お問い合わせの際は「SUUMO(スーモ)を見て」とお伝え下さい。

ホームページ この会社のホームページへ

タキナミのコンテンツ一覧

お問い合わせ

カタログをもらう
総合カタログ
タキナミのカタログ(エコスマの魅力がもっとわかるカタログ)
エコスマの魅力がもっとわかるカタログ
問合コード:5012540001
イベントに参加する
お問い合わせ先
0776-24-3540
  • ※営業時間内の対応となります。

  • ※お問い合わせの際は「SUUMO(スーモ)を見て」とお伝え下さい。

住まいの体感ランド
  • 福井県福井市灯明寺1丁目1412-1

  • 定休日:水曜日・木曜日

この会社のホームページへ

この会社が気になったら

カタログをもらう
総合カタログ
タキナミのカタログ(エコスマの魅力がもっとわかるカタログ)
エコスマの魅力がもっとわかるカタログ
問合コード:5012540001
イベントに参加する

関連キーワード

この建築実例のその他の特徴
ページトップへ戻る