パルコホーム

パルコホーム

家族の笑顔溢れる暮らしを追求する「ママと暮らしのオフィシャルパートナー」
お気に入りに追加する
岩手県紫波郡  Sさん
BBQもゆったり楽しめる広々スペースを確保!友人・家族が集まる「ガレージハウス」
パルコホーム BBQもゆったり楽しめる広々スペースを確保!友人・家族が集まる「ガレージハウス」の建築実例画像1
  • 本体価格
    2,000万円2,499万円
    38.7万円48.4万円/坪
  • 延床面積
    171.00m2 (51.7坪)
    敷地面積
    292.00m2 (88.3坪)
    家族構成
    夫婦+子ども1人
  • 竣工年月
    2019年7月
    工法
    木造軸組
この会社をもっと知りたくなったら
無料でお届け!まずはカタログ請求

施主Sさんのこだわり

友人とホームパーティーも楽しめる大きなガレージが自慢。快適な動線も大満足

友人がとても多いというSさんの希望は「大きなガレージ」がある家。スタイリッシュな外観に、理想通りの広々ガレージを設けたプランを提案。休日は家族や友人と一緒にガレージでバーベキューを楽しむことができ、希望通りのライフスタイルが叶ったと喜ぶ。また、リビングからタタミコーナーにも繋がっているため、家事をしながら子どもを遊ばせることも。家事と子育て、趣味を楽しむことができる快適な生活動線にも満足している。

友人がとても多いというSさんの希望は「大きなガレージ」がある家。スタイリッシュな外観に、理想通りの広々ガレージを設けたプランを提案。休日は家族や友人と一緒にガレージでバーベキューを楽しむことができ、希望通りのライフスタイルが叶ったと喜ぶ。また、リビングからタタミコーナーにも繋がっているため、家事をしながら子どもを遊ばせることも。家事と子育て、趣味を楽しむことができる快適な生活動線にも満足している。

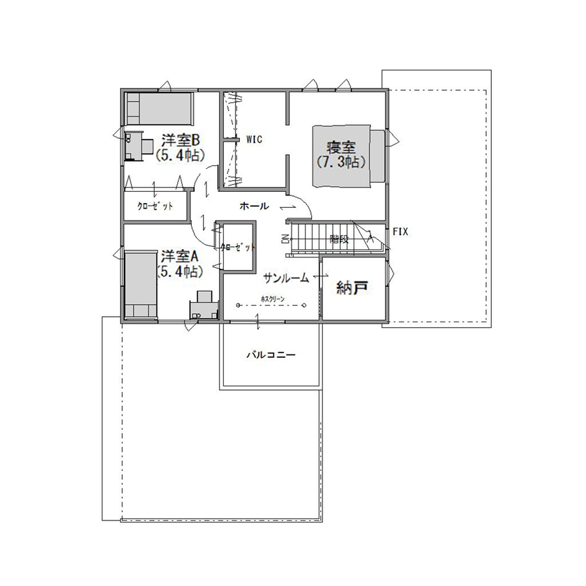
間取り図(4LDK+ガレージ)

1階
パルコホーム BBQもゆったり楽しめる広々スペースを確保!友人・家族が集まる「ガレージハウス」の間取り図(4LDK+ガレージ)1階
2階
パルコホーム BBQもゆったり楽しめる広々スペースを確保!友人・家族が集まる「ガレージハウス」の間取り図(4LDK+ガレージ)2階
この会社をもっと知りたくなったら
無料でお届け!まずはカタログ請求

内外観ギャラリー

この会社をもっと知りたくなったら
無料でお届け!まずはカタログ請求

この会社の他の建築実例を見る

この建築実例が気になった方へおすすめ

この建築実例の詳細情報

この建築実例を建てた店舗情報

住所 岩手県盛岡市北飯岡一丁目1‐82
問い合わせ
019-631-2865
  • ※営業時間内の対応となります。

  • ※お問い合わせの際は「SUUMO(スーモ)を見て」とお伝え下さい。

ホームページ この会社のホームページへ

パルコホームのコンテンツ一覧

お問い合わせ

カタログをもらう
総合カタログ
パルコホームのカタログ(【パルコホーム】総合カタログ)
【パルコホーム】総合カタログ
問合コード:5015140001
イベントに参加する
お問い合わせ先
019-631-2865
  • ※営業時間内の対応となります。

  • ※お問い合わせの際は「SUUMO(スーモ)を見て」とお伝え下さい。

  • 岩手県盛岡市北飯岡一丁目1‐82

  • 定休日:毎週火曜日、お盆期間、年末年始

この会社のホームページへ

この会社が気になったら

カタログをもらう
総合カタログ
パルコホームのカタログ(【パルコホーム】総合カタログ)
【パルコホーム】総合カタログ
問合コード:5015140001
イベントに参加する

関連キーワード

この建築実例のその他の特徴
ページトップへ戻る