アートホーム

アートホーム

家は器。家は家族が生活する器である。決して主張しすぎてはいけない。
お気に入りに追加する
北海道斜里郡  Oさん
【A-Prot】|4800万円/斜里郡/4LDK+土間スペース間取図|趣味を愉しむ土間スペースと吹き抜けリビング
アートホーム 【A-Prot】|4800万円/斜里郡/4LDK+土間スペース間取図|趣味を愉しむ土間スペースと吹き抜けリビングの建築実例画像1
  • 本体価格
    4,800万円
    80.1万円/坪
  • 延床面積
    198.19m2 (59.9坪)
    敷地面積
    580.21m2 (175.5坪)
    家族構成
    夫婦+子ども2人
  • 竣工年月
    2017年6月
    工法
    木造軸組
この会社をもっと知りたくなったら
無料でお届け!まずはカタログ請求

施主Oさんのこだわり

思い描いていた物が形になり大満足。楽しみながら家づくりができました。

以前暮らしていた家は子供が増えて手狭になってきたのと雨漏りが気になる家だった為新築の検討を始めたOさんご家族。3年ほどじっくりと色々な住宅展示場を見学する中でアートホームのモデルハウスを見て木の温かい雰囲気を一目で気に入ったそう。そこで、その後担当となる営業と出会い、親切で頼れる営業との相性も良くトントンと話しが進みすぐに建築を決めた。プランニングにあたり、はっきりとした要望があったOさんご家族は、ご夫婦で意見が食い違ってしまったこともあったが家が完成した… 続きを読む

以前暮らしていた家は子供が増えて手狭になってきたのと雨漏りが気になる家だった為新築の検討を始めたOさんご家族。3年ほどじっくりと色々な住宅展示場を見学する中でアートホームのモデルハウスを見て木の温かい雰囲気を一目で気に入ったそう。そこで、その後担当となる営業と出会い、親切で頼れる営業との相性も良くトントンと話しが進みすぐに建築を決めた。プランニングにあたり、はっきりとした要望があったOさんご家族は、ご夫婦で意見が食い違ってしまったこともあったが家が完成した今はその過程も含めて幸せな時間だったと振り返る。「色々と思い描いていた物が形になるにつれワクワクがとまらなかったです!」と奥様。家族の要望が詰まった大満足の家が完成した。

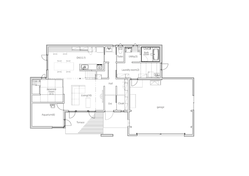
間取り図(4LDK+土間スペース)

1階
アートホーム 【A-Prot】|4800万円/斜里郡/4LDK+土間スペース間取図|趣味を愉しむ土間スペースと吹き抜けリビングの間取り図(4LDK+土間スペース)1階
2階
アートホーム 【A-Prot】|4800万円/斜里郡/4LDK+土間スペース間取図|趣味を愉しむ土間スペースと吹き抜けリビングの間取り図(4LDK+土間スペース)2階
この会社をもっと知りたくなったら
無料でお届け!まずはカタログ請求

内外観ギャラリー

この会社をもっと知りたくなったら
無料でお届け!まずはカタログ請求

この会社の他の建築実例を見る

この建築実例が気になった方へおすすめ

この建築実例の詳細情報

この建築実例を建てた店舗情報

店舗名 札幌支店
住所 北海道札幌市南区南30条西8丁目5-1
問い合わせ
011-581-8686
  • ※営業時間内の対応となります。

  • ※お問い合わせの際は「SUUMO(スーモ)を見て」とお伝え下さい。

ホームページ この会社のホームページへ

アートホームのコンテンツ一覧

お問い合わせ

カタログをもらう
総合カタログ
アートホームのカタログ(【アートホーム】実例やミニプロトなど商品のカタログ。)
【アートホーム】実例やミニプロトなど商品のカタログ。
問合コード:1313520001
イベントに参加する

この会社が気になったら

カタログをもらう
総合カタログ
アートホームのカタログ(【アートホーム】実例やミニプロトなど商品のカタログ。)
【アートホーム】実例やミニプロトなど商品のカタログ。
問合コード:1313520001
イベントに参加する

関連キーワード

この建築実例のその他の特徴
ページトップへ戻る