アートホーム

アートホーム

家は器。家は家族が生活する器である。決して主張しすぎてはいけない。
お気に入りに追加する
北海道札幌市  Aさん
【A-Prot】|札幌市/3LDK+FS|ルーバーで囲まれた程よい距離感の中庭と建物と一体感のある造作カーポート
  • 本体価格
    3,420万円
    81.6万円/坪
  • 延床面積
    138.69m2 (41.9坪)
    敷地面積
    223.65m2 (67.6坪)
    家族構成
    夫婦+子ども2人
    竣工年月
    2019年3月
    工法
    木造軸組
  • 特徴
    2階建て  |  収納充実  |  家事がラク  |  高気密・高断熱  |  高耐火  |  シンプルモダン  |  こだわりの外観デザイン  |  …
この会社をもっと知りたくなったら
無料でお届け!まずはカタログ請求

施主Aさんのこだわり

モデルハウスを参考にプランしてもらいました

知人がアートホームで家を建てていたのでその魅力は知っていました。他も検討しましたが、高い住宅性能やデザイン性、コストとのバランスを考えてもアートホームが良いと思い建築を決めました。プランはモデルハウスを参考に色々と要望を出したのですが、中でも特にこだわったのは中庭です。外からは見えないようにルーバーで目隠しをしてもらい、プライベートでくつろげる空間になっています。室内からも中庭があることで視覚的に広がりを感じられます。リビングは吹き抜けが開放的でキッチンも… 続きを読む

知人がアートホームで家を建てていたのでその魅力は知っていました。他も検討しましたが、高い住宅性能やデザイン性、コストとのバランスを考えてもアートホームが良いと思い建築を決めました。プランはモデルハウスを参考に色々と要望を出したのですが、中でも特にこだわったのは中庭です。外からは見えないようにルーバーで目隠しをしてもらい、プライベートでくつろげる空間になっています。室内からも中庭があることで視覚的に広がりを感じられます。リビングは吹き抜けが開放的でキッチンも広く設計してもらい使い勝手が良いです。

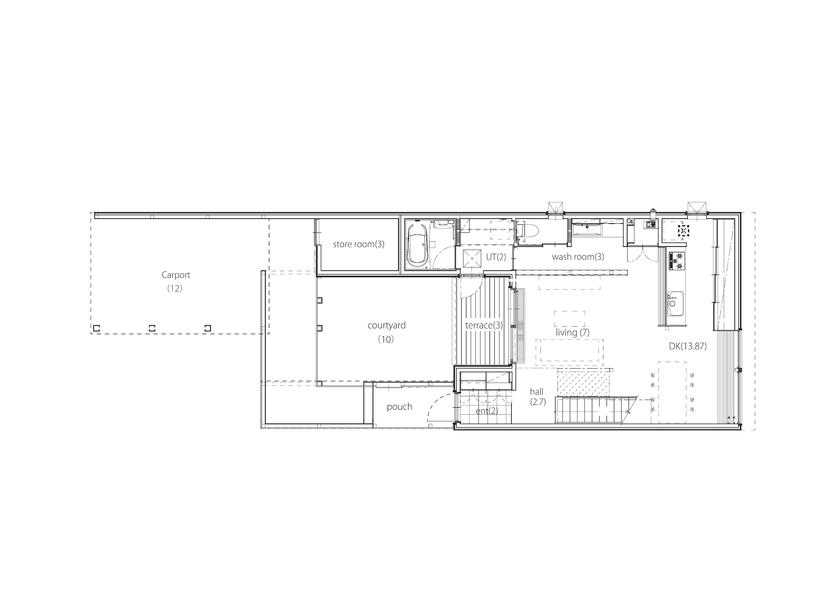
間取り図(3LDK+フリースペース)

1階
アートホーム 【A-Prot】|札幌市/3LDK+FS|ルーバーで囲まれた程よい距離感の中庭と建物と一体感のある造作カーポートの間取り図(3LDK+フリースペース)1階

2階
アートホーム 【A-Prot】|札幌市/3LDK+FS|ルーバーで囲まれた程よい距離感の中庭と建物と一体感のある造作カーポートの間取り図(3LDK+フリースペース)2階

この会社をもっと知りたくなったら
無料でお届け!まずはカタログ請求

内外観ギャラリー

この会社をもっと知りたくなったら
無料でお届け!まずはカタログ請求

この会社の他の建築実例を見る

この建築実例が気になった方へおすすめ

この建築実例の詳細情報

この建築実例を建てた店舗情報

店舗名 札幌支店
住所 北海道札幌市南区南30条西8丁目5-1
問い合わせ
011-581-8686
  • ※営業時間内の対応となります。

  • ※お問い合わせの際は「SUUMO(スーモ)を見て」とお伝え下さい。

ホームページ この会社のホームページへ

アートホームのコンテンツ一覧

お問い合わせ

カタログをもらう
総合カタログ
アートホームのカタログ(【アートホーム】実例やミニプロトなど商品のカタログ。)
【アートホーム】実例やミニプロトなど商品のカタログ。
問合コード:1313520001
イベントに参加する

この会社が気になったら

カタログをもらう
総合カタログ
アートホームのカタログ(【アートホーム】実例やミニプロトなど商品のカタログ。)
【アートホーム】実例やミニプロトなど商品のカタログ。
問合コード:1313520001
イベントに参加する

関連キーワード

ページトップへ戻る