アートホーム

アートホーム

家は器。家は家族が生活する器である。決して主張しすぎてはいけない。
お気に入りに追加する
北海道千歳市  Aさん
【A-Prot】|2940万円/千歳市/4LDK+物置間取図|開口から広がる緑の景色を楽しめる住まい
  • 本体価格
    2,940万円
    88.3万円/坪
  • 延床面積
    110.11m2 (33.3坪)
    敷地面積
    250.53m2 (75.7坪)
    家族構成
    夫婦+子ども2人
    竣工年月
    2012年11月
    工法
    木造軸組
  • 特徴
    耐震・免震・制震  |  2階建て  |  収納充実  |  家事がラク  |  高気密・高断熱  |  こだわりの外観デザイン  |  通風・採光  |  …
この会社をもっと知りたくなったら
無料でお届け!まずはカタログ請求

施主Aさんのこだわり

開口から広がる緑の景色を楽しめる家

北海道で自然を感じる暮らしに憧れ移住し、家づくりの検討を始めた。たまたま見かけたアートホーム千歳支店の社屋の佇まいが気に入り興味を持ったという。アウトドアやスキーなど外遊びが大好きなAさんご家族はウッドデッキや趣味の道具をしまえる物置、ご主人手作りのブランコなど子どもたちがのびのび遊べそうなお庭など楽しく家を住みこなしている。北海道の美しい自然を、家に居ながら存分に感じられる理想の住まいが完成した。

北海道で自然を感じる暮らしに憧れ移住し、家づくりの検討を始めた。たまたま見かけたアートホーム千歳支店の社屋の佇まいが気に入り興味を持ったという。アウトドアやスキーなど外遊びが大好きなAさんご家族はウッドデッキや趣味の道具をしまえる物置、ご主人手作りのブランコなど子どもたちがのびのび遊べそうなお庭など楽しく家を住みこなしている。北海道の美しい自然を、家に居ながら存分に感じられる理想の住まいが完成した。

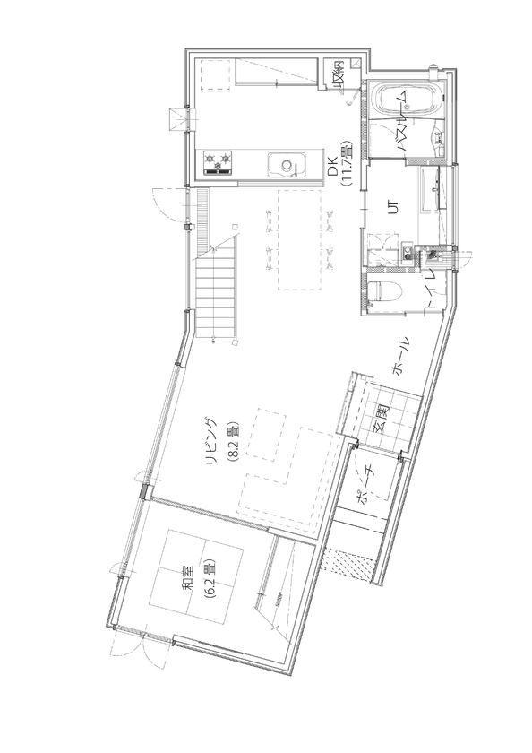
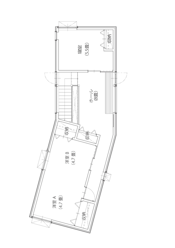
間取り図(4LDK+物置)

1階
アートホーム 【A-Prot】|2940万円/千歳市/4LDK+物置間取図|開口から広がる緑の景色を楽しめる住まいの間取り図(4LDK+物置)1階

2階
アートホーム 【A-Prot】|2940万円/千歳市/4LDK+物置間取図|開口から広がる緑の景色を楽しめる住まいの間取り図(4LDK+物置)2階

この会社をもっと知りたくなったら
無料でお届け!まずはカタログ請求

内外観ギャラリー

この会社をもっと知りたくなったら
無料でお届け!まずはカタログ請求

この会社の他の建築実例を見る

この建築実例が気になった方へおすすめ

この建築実例の詳細情報

この建築実例を建てた店舗情報

店舗名 札幌支店
住所 北海道札幌市南区南30条西8丁目5-1
問い合わせ
011-581-8686
  • ※営業時間内の対応となります。

  • ※お問い合わせの際は「SUUMO(スーモ)を見て」とお伝え下さい。

ホームページ この会社のホームページへ

アートホームのコンテンツ一覧

お問い合わせ

カタログをもらう
総合カタログ
アートホームのカタログ(【アートホーム】実例やミニプロトなど商品のカタログ。)
【アートホーム】実例やミニプロトなど商品のカタログ。
問合コード:1313520001
イベントに参加する

この会社が気になったら

カタログをもらう
総合カタログ
アートホームのカタログ(【アートホーム】実例やミニプロトなど商品のカタログ。)
【アートホーム】実例やミニプロトなど商品のカタログ。
問合コード:1313520001
イベントに参加する

関連キーワード

この建築実例のその他の特徴
ページトップへ戻る