アートホーム

アートホーム

家は器。家は家族が生活する器である。決して主張しすぎてはいけない。
お気に入りに追加する
北海道千歳市  Mさん
【A-Prot】|3860万円/千歳市/4LDK+フリースペース間取図|インナーガレージと吹き抜けリビングの住まい
  • 本体価格
    3,860万円
    84.3万円/坪
  • 延床面積
    151.42m2 (45.8坪)
    敷地面積
    306.25m2 (92.6坪)
    家族構成
    夫婦+子ども2人
    竣工年月
    2016年3月
    工法
    木造軸組
  • 特徴
    耐震・免震・制震  |  2階建て  |  収納充実  |  家事がラク  |  高気密・高断熱  |  シンプルモダン  |  こだわりの外観デザイン  |  …
この会社をもっと知りたくなったら
無料でお届け!まずはカタログ請求

施主Mさんのこだわり

希望の土地との出会いが決め手でリフォームの予定から新築へ切り替え

家族の暮らしに合わせてリフォームを検討していたMさん。家づくりの検討を始めてから希望を出していくうち、要望が膨らみ担当営業にざっくばらんに話ししたところ、その日のうちに営業が探してきた土地を気に入り新築工事へと切り替えることに。家を建てるのは2度目とあって生活スタイルに合わせた家づくりの希望も具体的に伝えていったという。「ラフプランを頂いた時に初めて設計の方にお会いしたのですが営業さんに伝えた細かな要望が反映されていてよく共有されているんだと信頼できました… 続きを読む

家族の暮らしに合わせてリフォームを検討していたMさん。家づくりの検討を始めてから希望を出していくうち、要望が膨らみ担当営業にざっくばらんに話ししたところ、その日のうちに営業が探してきた土地を気に入り新築工事へと切り替えることに。家を建てるのは2度目とあって生活スタイルに合わせた家づくりの希望も具体的に伝えていったという。「ラフプランを頂いた時に初めて設計の方にお会いしたのですが営業さんに伝えた細かな要望が反映されていてよく共有されているんだと信頼できました。」(Mさん)使い勝手の良いキッチンがお気に入りでご主人がキッチンに立つ機会も増えたそう。

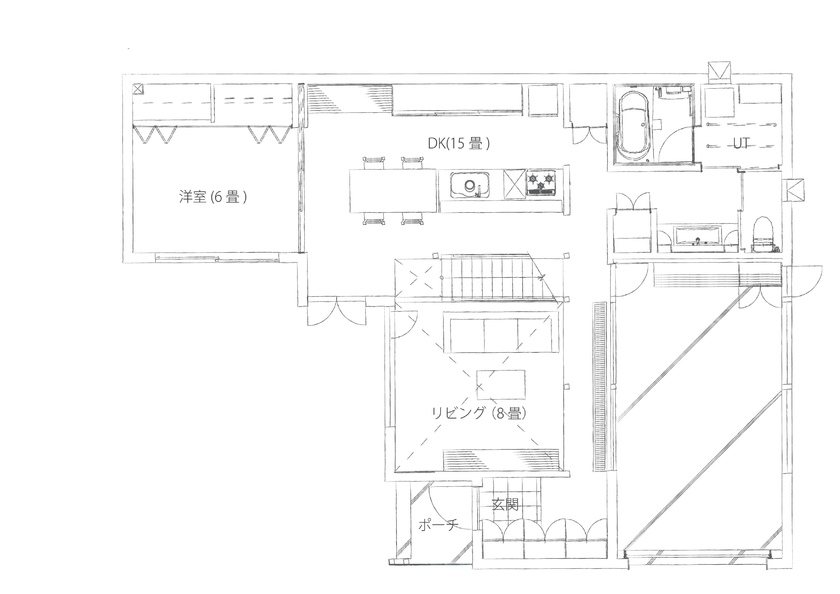
間取り図(4LDK+フリースペース)

1階
アートホーム 【A-Prot】|3860万円/千歳市/4LDK+フリースペース間取図|インナーガレージと吹き抜けリビングの住まいの間取り図(4LDK+フリースペース)1階

2階
アートホーム 【A-Prot】|3860万円/千歳市/4LDK+フリースペース間取図|インナーガレージと吹き抜けリビングの住まいの間取り図(4LDK+フリースペース)2階

この会社をもっと知りたくなったら
無料でお届け!まずはカタログ請求

内外観ギャラリー

この会社をもっと知りたくなったら
無料でお届け!まずはカタログ請求

この会社の他の建築実例を見る

この建築実例が気になった方へおすすめ

この建築実例の詳細情報

この建築実例を建てた店舗情報

店舗名 札幌支店
住所 北海道札幌市南区南30条西8丁目5-1
問い合わせ
011-581-8686
  • ※営業時間内の対応となります。

  • ※お問い合わせの際は「SUUMO(スーモ)を見て」とお伝え下さい。

ホームページ この会社のホームページへ

アートホームのコンテンツ一覧

お問い合わせ

カタログをもらう
総合カタログ
アートホームのカタログ(【アートホーム】実例やミニプロトなど商品のカタログ。)
【アートホーム】実例やミニプロトなど商品のカタログ。
問合コード:1313520001
イベントに参加する

この会社が気になったら

カタログをもらう
総合カタログ
アートホームのカタログ(【アートホーム】実例やミニプロトなど商品のカタログ。)
【アートホーム】実例やミニプロトなど商品のカタログ。
問合コード:1313520001
イベントに参加する

関連キーワード

この建築実例のその他の特徴
ページトップへ戻る