アートホーム

アートホーム

家は器。家は家族が生活する器である。決して主張しすぎてはいけない。
お気に入りに追加する
北海道千歳市  Sさん
【A-Prot】|3040万円/千歳市/3LDK間取図|内と外の境界線を心地よい場所に置くことができる<ナナメヤネ>
アートホーム 【A-Prot】|3040万円/千歳市/3LDK間取図|内と外の境界線を心地よい場所に置くことができる<ナナメヤネ>の建築実例画像1
  • 本体価格
    3,040万円
    91.4万円/坪
  • 延床面積
    110.00m2 (33.2坪)
    敷地面積
    246.40m2 (74.5坪)
    家族構成
    夫婦+子ども1人
  • 竣工年月
    2017年10月
    工法
    木造軸組
この会社をもっと知りたくなったら
無料でお届け!まずはカタログ請求

施主Sさんのこだわり

敷地をモチーフにした大胆な提案力で心地の良い家が完成しました

フリープランで建築し住まいを実現したSさん邸。家づくりを考えはじめてから何社か検討したがアートホームのオープンハウスを見学してデザインが気に入ったのと同社の敷地をモチーフにしたプランの提案力に期待し工務店を決めたという。雑木林に面した敷地を所有していたため外部の視線を気にせず大きなコーナー窓を配置して緑を取り込む気持ちの良いダイニングスペースが完成した。

フリープランで建築し住まいを実現したSさん邸。家づくりを考えはじめてから何社か検討したがアートホームのオープンハウスを見学してデザインが気に入ったのと同社の敷地をモチーフにしたプランの提案力に期待し工務店を決めたという。雑木林に面した敷地を所有していたため外部の視線を気にせず大きなコーナー窓を配置して緑を取り込む気持ちの良いダイニングスペースが完成した。

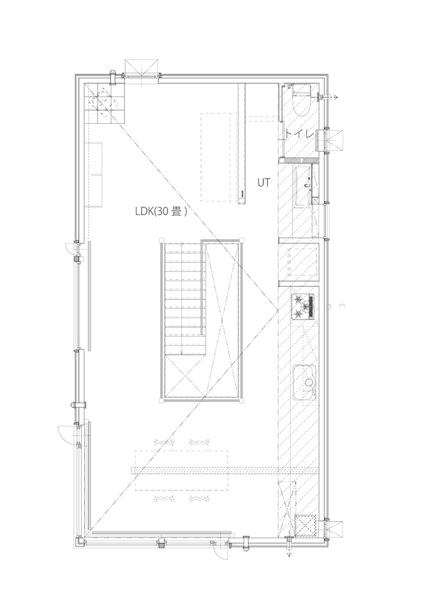
間取り図(3LDK)

1階
アートホーム 【A-Prot】|3040万円/千歳市/3LDK間取図|内と外の境界線を心地よい場所に置くことができる<ナナメヤネ>の間取り図(3LDK)1階
2階
アートホーム 【A-Prot】|3040万円/千歳市/3LDK間取図|内と外の境界線を心地よい場所に置くことができる<ナナメヤネ>の間取り図(3LDK)2階
この会社をもっと知りたくなったら
無料でお届け!まずはカタログ請求

内外観ギャラリー

この会社をもっと知りたくなったら
無料でお届け!まずはカタログ請求

この会社の他の建築実例を見る

この建築実例が気になった方へおすすめ

この建築実例の詳細情報

この建築実例を建てた店舗情報

店舗名 札幌支店
住所 北海道札幌市南区南30条西8丁目5-1
問い合わせ
011-581-8686
  • ※営業時間内の対応となります。

  • ※お問い合わせの際は「SUUMO(スーモ)を見て」とお伝え下さい。

ホームページ この会社のホームページへ

アートホームのコンテンツ一覧

お問い合わせ

カタログをもらう
総合カタログ
アートホームのカタログ(【アートホーム】実例やミニプロトなど商品のカタログ。)
【アートホーム】実例やミニプロトなど商品のカタログ。
問合コード:1313520001
イベントに参加する

この会社が気になったら

カタログをもらう
総合カタログ
アートホームのカタログ(【アートホーム】実例やミニプロトなど商品のカタログ。)
【アートホーム】実例やミニプロトなど商品のカタログ。
問合コード:1313520001
イベントに参加する

関連キーワード

この建築実例のその他の特徴
ページトップへ戻る