アートホーム

アートホーム

家は器。家は家族が生活する器である。決して主張しすぎてはいけない。
お気に入りに追加する
北海道札幌市  Kさん
【A-Prot】|札幌市/3LDK+フリースペース|センスの良いデザインと無垢に触れながら、ゆったり暮らす
アートホーム 【A-Prot】|札幌市/3LDK+フリースペース|センスの良いデザインと無垢に触れながら、ゆったり暮らすの建築実例画像1
  • 本体価格
    4,280万円
    90.3万円/坪
  • 延床面積
    156.70m2 (47.4坪)
    敷地面積
    240.00m2 (72.6坪)
    家族構成
    夫婦+子ども2人
  • 竣工年月
    2012年3月
    工法
    木造軸組
この会社をもっと知りたくなったら
無料でお届け!まずはカタログ請求

施主Kさんのこだわり

お気に入りの家具や雑貨が映える木の家

窓の付け方、木の雰囲気が気に入りアートホームでご建築されたKさん邸。「気持ちの良い朝を迎えたいと希望をお伝えして提案された、リビングの吹き抜けがあるプランが気に入っています。」とKさん。東側からの朝陽を取り入れながら階段と隣り合わせの吹抜が空間を調和している開放的な住まいが完成した。空間に統一してセレクトされた家具はアパート暮らしでは置けなかった大きなもの。新築したら置こうと決めていたそう。家具・雑貨へのこだわり「飾る」ことが装飾ではなく、実生活のベースに… 続きを読む

窓の付け方、木の雰囲気が気に入りアートホームでご建築されたKさん邸。「気持ちの良い朝を迎えたいと希望をお伝えして提案された、リビングの吹き抜けがあるプランが気に入っています。」とKさん。東側からの朝陽を取り入れながら階段と隣り合わせの吹抜が空間を調和している開放的な住まいが完成した。空間に統一してセレクトされた家具はアパート暮らしでは置けなかった大きなもの。新築したら置こうと決めていたそう。家具・雑貨へのこだわり「飾る」ことが装飾ではなく、実生活のベースに溶け込んでいる。だから美しく、さりげなく、そして生活する中で家への愛情が伝わってくる家。

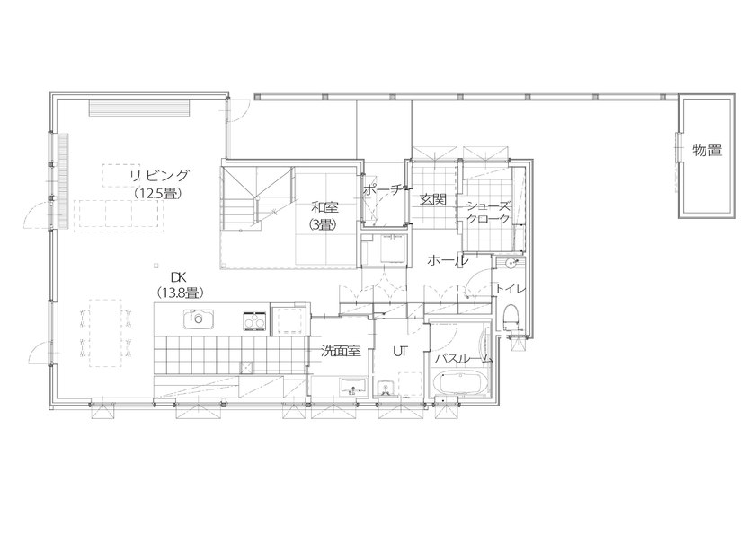
間取り図(3LDK+フリースペース)

1階
アートホーム 【A-Prot】|札幌市/3LDK+フリースペース|センスの良いデザインと無垢に触れながら、ゆったり暮らすの間取り図(3LDK+フリースペース)1階
2階
アートホーム 【A-Prot】|札幌市/3LDK+フリースペース|センスの良いデザインと無垢に触れながら、ゆったり暮らすの間取り図(3LDK+フリースペース)2階
この会社をもっと知りたくなったら
無料でお届け!まずはカタログ請求

内外観ギャラリー

この会社をもっと知りたくなったら
無料でお届け!まずはカタログ請求

この会社の他の建築実例を見る

この建築実例が気になった方へおすすめ

この建築実例の詳細情報

この建築実例を建てた店舗情報

店舗名 札幌支店
住所 北海道札幌市南区南30条西8丁目5-1
問い合わせ
011-581-8686
  • ※営業時間内の対応となります。

  • ※お問い合わせの際は「SUUMO(スーモ)を見て」とお伝え下さい。

ホームページ この会社のホームページへ

アートホームのコンテンツ一覧

お問い合わせ

カタログをもらう
総合カタログ
アートホームのカタログ(【アートホーム】実例やミニプロトなど商品のカタログ。)
【アートホーム】実例やミニプロトなど商品のカタログ。
問合コード:1313520001
イベントに参加する

この会社が気になったら

カタログをもらう
総合カタログ
アートホームのカタログ(【アートホーム】実例やミニプロトなど商品のカタログ。)
【アートホーム】実例やミニプロトなど商品のカタログ。
問合コード:1313520001
イベントに参加する

関連キーワード

この建築実例のその他の特徴
ページトップへ戻る