アートホーム

アートホーム

家は器。家は家族が生活する器である。決して主張しすぎてはいけない。
お気に入りに追加する
北海道千歳市  Mさん
【A-Prot】|千歳市/3LDK|フリースペースからLDKが見渡せる開放的な空間構成。土間続きに外とつながる家
アートホーム 【A-Prot】|千歳市/3LDK|フリースペースからLDKが見渡せる開放的な空間構成。土間続きに外とつながる家の建築実例画像1
  • 本体価格
    3,930万円
    91.7万円/坪
  • 延床面積
    141.80m2 (42.8坪)
    敷地面積
    293.24m2 (88.7坪)
    家族構成
    夫婦+子ども1人
  • 竣工年月
    2010年9月
    工法
    木造軸組
この会社をもっと知りたくなったら
無料でお届け!まずはカタログ請求

施主Mさんのこだわり

ライフスタイルに合わせた土地探しからプランまで、トータルの提案力が決め手

玄関から広々とした土間続きにドックランへ出られるMさん邸。家づくりの検討を始めた当初はもっと大きな家を希望、建築地にもさほどこだわりはなかったが、担当営業のヒアリングでライフスタイルやお子さんの学校、勤務先、周辺環境など優先順位を上げていくうち予算も考慮しながら土地探しをはじめた。「細かなヒアリングから自分たちの暮らしに必要で譲れないポイントを整理することができました。」とMさん。趣味のサーフィンを手入れする土間スペースと愛犬の為のドッグランなどをプランで… 続きを読む

玄関から広々とした土間続きにドックランへ出られるMさん邸。家づくりの検討を始めた当初はもっと大きな家を希望、建築地にもさほどこだわりはなかったが、担当営業のヒアリングでライフスタイルやお子さんの学校、勤務先、周辺環境など優先順位を上げていくうち予算も考慮しながら土地探しをはじめた。「細かなヒアリングから自分たちの暮らしに必要で譲れないポイントを整理することができました。」とMさん。趣味のサーフィンを手入れする土間スペースと愛犬の為のドッグランなどをプランできそうな敷地広さを確保した現在の土地に出会った。6面窓から差し込む光が心地よいリビングスペースと家族がどこにいてもつながりを感じられる開放的な住まいが完成した。

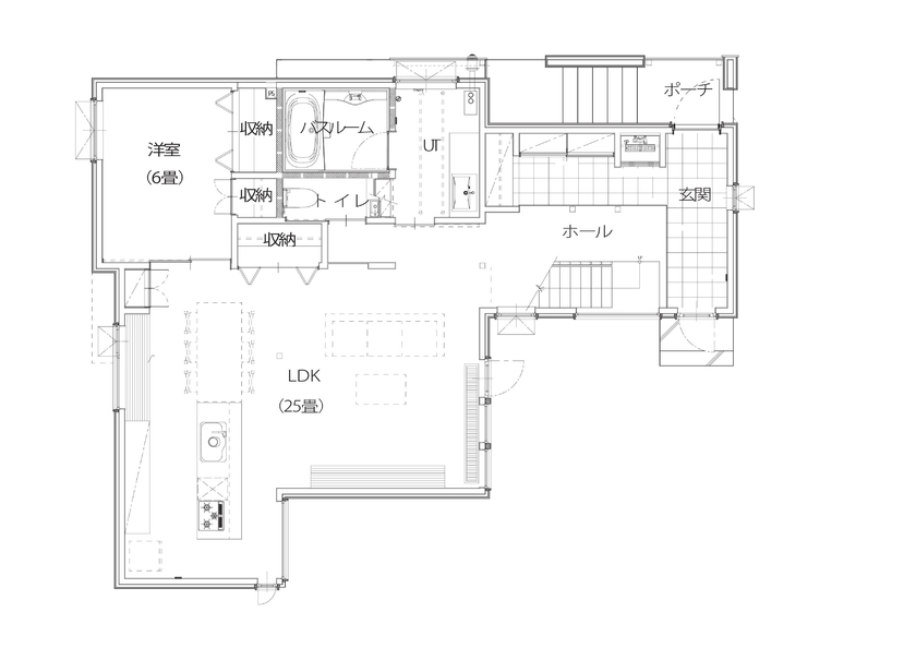
間取り図(3LDK+フリースペース)

1階
アートホーム 【A-Prot】|千歳市/3LDK|フリースペースからLDKが見渡せる開放的な空間構成。土間続きに外とつながる家の間取り図(3LDK+フリースペース)1階
2階
アートホーム 【A-Prot】|千歳市/3LDK|フリースペースからLDKが見渡せる開放的な空間構成。土間続きに外とつながる家の間取り図(3LDK+フリースペース)2階
この会社をもっと知りたくなったら
無料でお届け!まずはカタログ請求

内外観ギャラリー

この会社をもっと知りたくなったら
無料でお届け!まずはカタログ請求

この会社の他の建築実例を見る

この建築実例が気になった方へおすすめ

この建築実例の詳細情報

この建築実例を建てた店舗情報

店舗名 札幌支店
住所 北海道札幌市南区南30条西8丁目5-1
問い合わせ
011-581-8686
  • ※営業時間内の対応となります。

  • ※お問い合わせの際は「SUUMO(スーモ)を見て」とお伝え下さい。

ホームページ この会社のホームページへ

アートホームのコンテンツ一覧

お問い合わせ

カタログをもらう
総合カタログ
アートホームのカタログ(【アートホーム】実例やミニプロトなど商品のカタログ。)
【アートホーム】実例やミニプロトなど商品のカタログ。
問合コード:1313520001
イベントに参加する

この会社が気になったら

カタログをもらう
総合カタログ
アートホームのカタログ(【アートホーム】実例やミニプロトなど商品のカタログ。)
【アートホーム】実例やミニプロトなど商品のカタログ。
問合コード:1313520001
イベントに参加する

関連キーワード

この建築実例のその他の特徴
ページトップへ戻る