アートホーム

アートホーム

家は器。家は家族が生活する器である。決して主張しすぎてはいけない。
お気に入りに追加する
北海道恵庭市  Sさん
【A-Prot】|3950万円/恵庭市/3LDK+家事室|外観に調和した造作カーポートのある住まい
  • 本体価格
    3,950万円
    88.1万円/坪
  • 延床面積
    148.22m2 (44.8坪)
    敷地面積
    543.33m2 (164.3坪)
    家族構成
    -
    竣工年月
    2010年6月
    工法
    木造軸組
  • 特徴
    耐震・免震・制震  |  2階建て  |  収納充実  |  家事がラク  |  高気密・高断熱  |  シンプルモダン  |  こだわりの外観デザイン  |  …
この会社をもっと知りたくなったら
無料でお届け!まずはカタログ請求

施主Sさんのこだわり

1階の広々LDKと2階にまとめた生活空間がメリハリのある間取り

明るい木目の室内が統一感のあるSさん邸。1階にはLDKだけを広々と確保して2階に各居室やUTなどの生活スペースをまとめて配置している為、メリハリのある空間の使い方ができる。玄関のシューズクロークに張ったゼブラウッドは設計士からの提案で、はじめは変わった名前から、どんなものだろう?と思っていたが担当設計士のセンスに信頼を置いていたのでお任せすることに。「自分たちでは発想しなかったアイデアを沢山提案してもらい、結果的に統一された素敵な空間になりお任せして良かっ… 続きを読む

明るい木目の室内が統一感のあるSさん邸。1階にはLDKだけを広々と確保して2階に各居室やUTなどの生活スペースをまとめて配置している為、メリハリのある空間の使い方ができる。玄関のシューズクロークに張ったゼブラウッドは設計士からの提案で、はじめは変わった名前から、どんなものだろう?と思っていたが担当設計士のセンスに信頼を置いていたのでお任せすることに。「自分たちでは発想しなかったアイデアを沢山提案してもらい、結果的に統一された素敵な空間になりお任せして良かったと満足しています。」とSさん。洗面室、家事室、ウォークインクローゼットとつながる家事ラクな動線も打合せ時のヒアリングから決定していったという。Sさんの希望とその要望を汲み取った設計の提案が調和し統一感のある住まいが完成した。

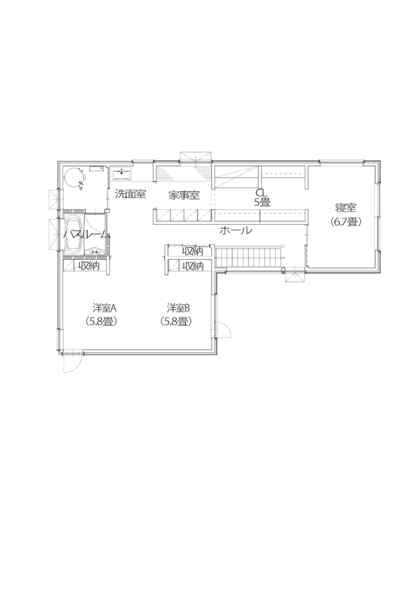
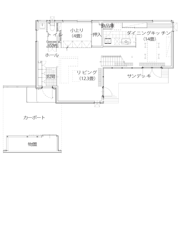
間取り図(3LDK+家事室)

1階
アートホーム 【A-Prot】|3950万円/恵庭市/3LDK+家事室|外観に調和した造作カーポートのある住まいの間取り図(3LDK+家事室)1階

2階
アートホーム 【A-Prot】|3950万円/恵庭市/3LDK+家事室|外観に調和した造作カーポートのある住まいの間取り図(3LDK+家事室)2階

この会社をもっと知りたくなったら
無料でお届け!まずはカタログ請求

内外観ギャラリー

この会社をもっと知りたくなったら
無料でお届け!まずはカタログ請求

この会社の他の建築実例を見る

この建築実例が気になった方へおすすめ

この建築実例の詳細情報

この建築実例を建てた店舗情報

店舗名 札幌支店
住所 北海道札幌市南区南30条西8丁目5-1
問い合わせ
011-581-8686
  • ※営業時間内の対応となります。

  • ※お問い合わせの際は「SUUMO(スーモ)を見て」とお伝え下さい。

ホームページ この会社のホームページへ

アートホームのコンテンツ一覧

お問い合わせ

カタログをもらう
総合カタログ
アートホームのカタログ(【アートホーム】実例やミニプロトなど商品のカタログ。)
【アートホーム】実例やミニプロトなど商品のカタログ。
問合コード:1313520001
イベントに参加する

この会社が気になったら

カタログをもらう
総合カタログ
アートホームのカタログ(【アートホーム】実例やミニプロトなど商品のカタログ。)
【アートホーム】実例やミニプロトなど商品のカタログ。
問合コード:1313520001
イベントに参加する

関連キーワード

この建築実例のその他の特徴
ページトップへ戻る