アートホーム

アートホーム

家は器。家は家族が生活する器である。決して主張しすぎてはいけない。
お気に入りに追加する
北海道虻田郡  Hさん
【A-Prot】|虻田郡/大空間/2LDK|太陽の位置から計算された、自然とともに生きるくの字型の家
  • 本体価格
    3,550万円
    88.9万円/坪
  • 延床面積
    132.13m2 (39.9坪)
    敷地面積
    662.01m2 (200.2坪)
    家族構成
    夫婦+子ども1人
    竣工年月
    2017年8月
    工法
    木造軸組
  • 特徴
    耐震・免震・制震  |  2階建て  |  収納充実  |  家事がラク  |  高気密・高断熱  |  こだわりの外観デザイン  |  通風・採光  |  …
この会社をもっと知りたくなったら
無料でお届け!まずはカタログ請求

施主Hさんのこだわり

日常の暮らしを自然に委ねて重なり合う

何気ない風の音や枝葉の揺れる音。樹々の振る舞いに譲りながら、私たちは此処に居たい。日常の暮らしを自然に委ねて重なり合い、混ざり合う。居心地の良い五感がまとわりつく。此処ではいつも柔らかい時が薫る。私たちは樹々と共棲してゆく。いつもの柔らかいこの場所で。

何気ない風の音や枝葉の揺れる音。樹々の振る舞いに譲りながら、私たちは此処に居たい。日常の暮らしを自然に委ねて重なり合い、混ざり合う。居心地の良い五感がまとわりつく。此処ではいつも柔らかい時が薫る。私たちは樹々と共棲してゆく。いつもの柔らかいこの場所で。

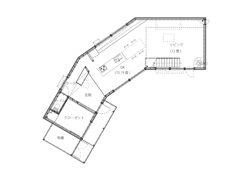
間取り図(2LDK)

1階
アートホーム 【A-Prot】|虻田郡/大空間/2LDK|太陽の位置から計算された、自然とともに生きるくの字型の家の間取り図(2LDK)1階

2階
アートホーム 【A-Prot】|虻田郡/大空間/2LDK|太陽の位置から計算された、自然とともに生きるくの字型の家の間取り図(2LDK)2階

この会社をもっと知りたくなったら
無料でお届け!まずはカタログ請求

内外観ギャラリー

この会社をもっと知りたくなったら
無料でお届け!まずはカタログ請求

この会社の他の建築実例を見る

この建築実例が気になった方へおすすめ

この建築実例の詳細情報

この建築実例を建てた店舗情報

店舗名 札幌支店
住所 北海道札幌市南区南30条西8丁目5-1
問い合わせ
011-581-8686
  • ※営業時間内の対応となります。

  • ※お問い合わせの際は「SUUMO(スーモ)を見て」とお伝え下さい。

ホームページ この会社のホームページへ

アートホームのコンテンツ一覧

お問い合わせ

カタログをもらう
総合カタログ
アートホームのカタログ(【アートホーム】実例やミニプロトなど商品のカタログ。)
【アートホーム】実例やミニプロトなど商品のカタログ。
問合コード:1313520001
イベントに参加する

この会社が気になったら

カタログをもらう
総合カタログ
アートホームのカタログ(【アートホーム】実例やミニプロトなど商品のカタログ。)
【アートホーム】実例やミニプロトなど商品のカタログ。
問合コード:1313520001
イベントに参加する

関連キーワード

この建築実例のその他の特徴
ページトップへ戻る