アートホーム

アートホーム

家は器。家は家族が生活する器である。決して主張しすぎてはいけない。
お気に入りに追加する
北海道札幌市  Oさん
【A-Prot】|4010万円/札幌市/3LDK間取図|内に開くプライベート空間とビルトインガレージの住まい
アートホーム 【A-Prot】|4010万円/札幌市/3LDK間取図|内に開くプライベート空間とビルトインガレージの住まいの建築実例画像1
  • 本体価格
    4,010万円
    111.5万円/坪
  • 延床面積
    118.95m2 (35.9坪)
    敷地面積
    260.31m2 (78.7坪)
    家族構成
    夫婦+子ども1人
  • 竣工年月
    2017年7月
    工法
    木造軸組
この会社をもっと知りたくなったら
無料でお届け!まずはカタログ請求

施主Oさんのこだわり

アプローチの回廊と独立したリビングが魅力の住まい

線路沿いに建つOさん邸は外の喧騒を排除するかということに重点を置いた設計者の巧みなこだわりが感じられる住まいである。穏やかな日常こそ特別だということを、そこに幾つものストーリーがあるということをいつもこの場所から感じられる。ちょっとこうするだけでアプローチの長い回廊は、外との距離感を適度に保ちながら外の喧騒を柔らかく調律してくれる。ダイニングと中庭の関係は縁側のような中間領域を介して繋がり日常の中に溶け込んでくる。外に閉じながら内に開くこと、均質な空間を連… 続きを読む

線路沿いに建つOさん邸は外の喧騒を排除するかということに重点を置いた設計者の巧みなこだわりが感じられる住まいである。穏やかな日常こそ特別だということを、そこに幾つものストーリーがあるということをいつもこの場所から感じられる。ちょっとこうするだけでアプローチの長い回廊は、外との距離感を適度に保ちながら外の喧騒を柔らかく調律してくれる。ダイニングと中庭の関係は縁側のような中間領域を介して繋がり日常の中に溶け込んでくる。外に閉じながら内に開くこと、均質な空間を連続させるのではなく、光の濃淡にメリハリをつけて、日常にストーリーが吹き込まれる。

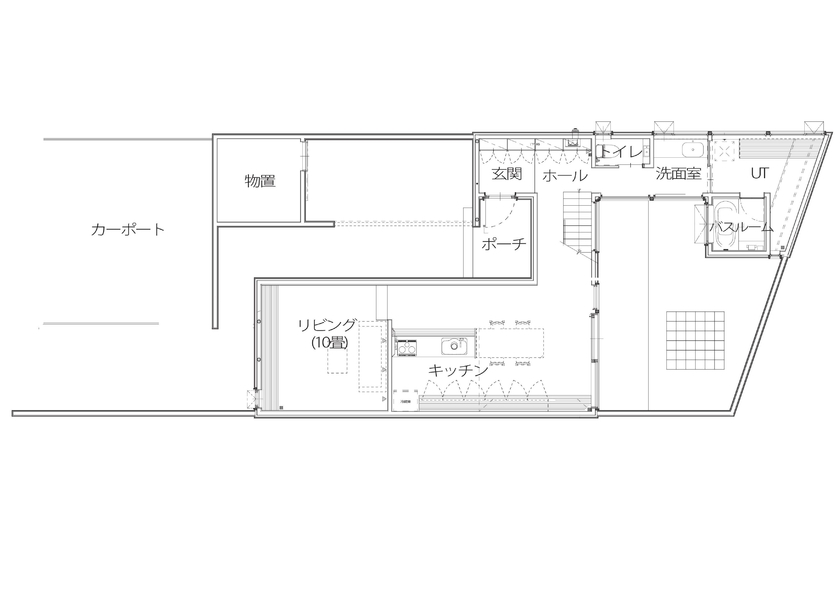
間取り図(3LDK)

1階
アートホーム 【A-Prot】|4010万円/札幌市/3LDK間取図|内に開くプライベート空間とビルトインガレージの住まいの間取り図(3LDK)1階
2階
アートホーム 【A-Prot】|4010万円/札幌市/3LDK間取図|内に開くプライベート空間とビルトインガレージの住まいの間取り図(3LDK)2階
この会社をもっと知りたくなったら
無料でお届け!まずはカタログ請求

内外観ギャラリー

この会社をもっと知りたくなったら
無料でお届け!まずはカタログ請求

この会社の他の建築実例を見る

この建築実例が気になった方へおすすめ

この建築実例の詳細情報

この建築実例を建てた店舗情報

店舗名 札幌支店
住所 北海道札幌市南区南30条西8丁目5-1
問い合わせ
011-581-8686
  • ※営業時間内の対応となります。

  • ※お問い合わせの際は「SUUMO(スーモ)を見て」とお伝え下さい。

ホームページ この会社のホームページへ

アートホームのコンテンツ一覧

お問い合わせ

カタログをもらう
総合カタログ
アートホームのカタログ(【アートホーム】実例やミニプロトなど商品のカタログ。)
【アートホーム】実例やミニプロトなど商品のカタログ。
問合コード:1313520001
イベントに参加する

この会社が気になったら

カタログをもらう
総合カタログ
アートホームのカタログ(【アートホーム】実例やミニプロトなど商品のカタログ。)
【アートホーム】実例やミニプロトなど商品のカタログ。
問合コード:1313520001
イベントに参加する

関連キーワード

この建築実例のその他の特徴
ページトップへ戻る