アートホーム

アートホーム

家は器。家は家族が生活する器である。決して主張しすぎてはいけない。
お気に入りに追加する
北海道千歳市  Tさん
【A-prot】|千歳市/4LDK|利便性のある立地とプライバシーのある広い空間を同時に叶えた家
アートホーム 【A-prot】|千歳市/4LDK|利便性のある立地とプライバシーのある広い空間を同時に叶えた家の建築実例画像1
  • 本体価格
    2,860万円
    80.5万円/坪
  • 延床面積
    117.56m2 (35.5坪)
    敷地面積
    223.80m2 (67.6坪)
    家族構成
    -
  • 竣工年月
    2012年8月
    工法
    木造軸組
この会社をもっと知りたくなったら
無料でお届け!まずはカタログ請求

施主Tさんのこだわり

庭と暮らす家

「どちらが良いか?」良い利便性で、近隣に囲まれた場所。「どちらが良いか?」利便性は悪いが、ロケーションも開けた場所。 「どちらが良いか?…」決められない。しかし、建築的に解決する方法は、利便性は変えられない。でも、環境なら変えられる。こんなコンセプトから生まれた「庭と暮らす家」近隣との接点を壁で囲い、視界を閉ざし、光を入れる。自分の敷地にロケーションを創る。ごくごく単純な発想。家の内と外、生活の空間を広げてみる。敷地全体と暮らしてみる。「庭と暮らす家」

「どちらが良いか?」良い利便性で、近隣に囲まれた場所。「どちらが良いか?」利便性は悪いが、ロケーションも開けた場所。 「どちらが良いか?…」決められない。しかし、建築的に解決する方法は、利便性は変えられない。でも、環境なら変えられる。こんなコンセプトから生まれた「庭と暮らす家」近隣との接点を壁で囲い、視界を閉ざし、光を入れる。自分の敷地にロケーションを創る。ごくごく単純な発想。家の内と外、生活の空間を広げてみる。敷地全体と暮らしてみる。「庭と暮らす家」

間取り図(4LDK)

1階
アートホーム 【A-prot】|千歳市/4LDK|利便性のある立地とプライバシーのある広い空間を同時に叶えた家の間取り図(4LDK)1階
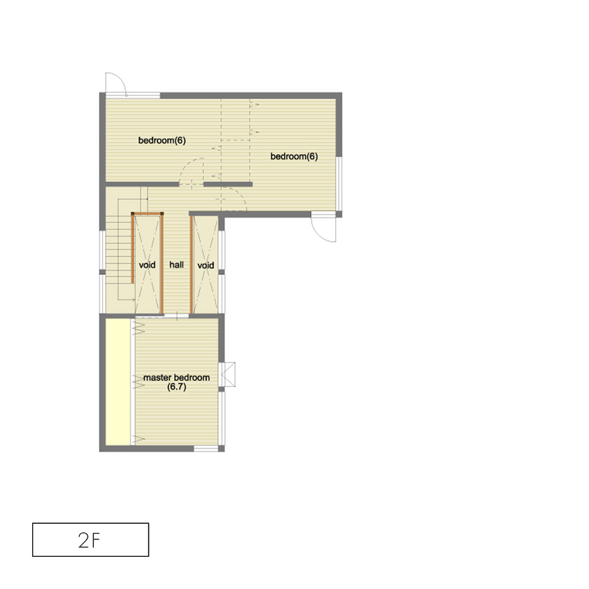
2階
アートホーム 【A-prot】|千歳市/4LDK|利便性のある立地とプライバシーのある広い空間を同時に叶えた家の間取り図(4LDK)2階
この会社をもっと知りたくなったら
無料でお届け!まずはカタログ請求

内外観ギャラリー

この会社をもっと知りたくなったら
無料でお届け!まずはカタログ請求

この会社の他の建築実例を見る

この建築実例が気になった方へおすすめ

この建築実例の詳細情報

この建築実例を建てた店舗情報

店舗名 札幌支店
住所 北海道札幌市南区南30条西8丁目5-1
問い合わせ
011-581-8686
  • ※営業時間内の対応となります。

  • ※お問い合わせの際は「SUUMO(スーモ)を見て」とお伝え下さい。

ホームページ この会社のホームページへ

アートホームのコンテンツ一覧

お問い合わせ

カタログをもらう
総合カタログ
アートホームのカタログ(【アートホーム】実例やミニプロトなど商品のカタログ。)
【アートホーム】実例やミニプロトなど商品のカタログ。
問合コード:1313520001
イベントに参加する

この会社が気になったら

カタログをもらう
総合カタログ
アートホームのカタログ(【アートホーム】実例やミニプロトなど商品のカタログ。)
【アートホーム】実例やミニプロトなど商品のカタログ。
問合コード:1313520001
イベントに参加する

関連キーワード

この建築実例のその他の特徴
ページトップへ戻る