"20260209164534:H:0" "20260209164534:H:0" "20260209164534:H:0"
この物件にお問い合わせ
お問い合わせの内容を選択してください
06-6655-6711
ホームセレクト (株)匠
営業時間:AM10:00~PM19:30
定休日:年中無休
お電話の際は、SUUMOを見たとお伝えいただくとスムーズです。

部屋の特徴・設備

  • バストイレ別、バルコニー、エアコン、フローリング、シャワー付洗面台、TVインターホン、浴室乾燥機、オートロック、室内洗濯置、シューズボックス、システムキッチン、追焚機能浴室、温水洗浄便座、脱衣所、洗面所独立、洗面化粧台、2口コンロ、駐輪場、宅配ボックス、CATV、閑静な住宅地、防犯カメラ、保証人不要、駐車2台可、CATVインターネット、バイク置場、24時間緊急通報システム、全居室フローリング、ディンプルキー、ネット専用回線、駅まで平坦、ネット使用料不要、ダブルロックキー、雨戸、築2年以内、24時間換気システム、平坦地、ルームシェア相談、一部フローリング、フラットフロア、浴室未使用、トイレ未使用、防音サッシ、防犯ガラス、ハイサッシ、3駅以上利用可、3沿線以上利用可、駅前、駅徒歩5分以内、外壁サイディング、ゴミ回収サービス、敷地内ごみ置き場、セキュリティ会社加入済、キッチン5畳以上、キッチン未使用、都市ガス、洗面所にドア、シャッター、LGBTフレンドリー、初期費用カード決済可

物件概要

情報の見方

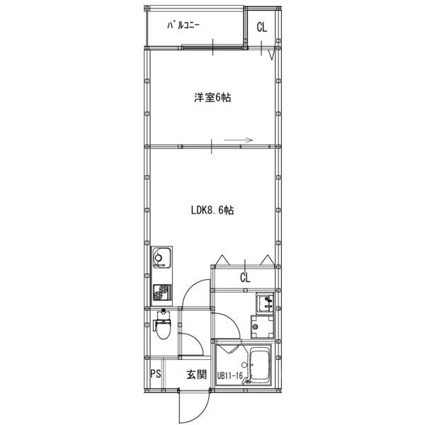
間取り詳細 洋6 LDK8.6 構造 木造
階建 1階/3階建 築年月 2026年2月
エネルギー
消費性能
- 断熱性能 -
目安光熱費
  • -
損保 - 駐車場 敷地内16500円/駐2台可
入居 '26年2月中旬 取引態様 仲介
条件 単身者可/二人入居可/ルームシェア相談 取り扱い店舗
物件コード
04213535
SUUMO
物件コード
100487048408 総戸数 18戸
情報更新日 2026/02/08 次回更新予定日 2026/02/16
契約期間
  • 普通借家 2年
保証会社
  • 全保連利用必 初回保証料:総賃料の100%・1年更新1万円
ほか諸費用
  • 退去時(エアコン洗浄16,500円・室内清掃38,500円・カギ交換費用33,000円)、生活安心サポート費用 550円/月、駐輪場利用料 330円/月、月額利用料 2490円/月、バイク置場利用料 3300円/月
備考
  • 巡回管理/その他にも敷金礼金無し、新築、ペット可、デザイナーズ、分譲賃貸、戸建、タワーマンション、家具家電付、仲介手数料無料、仲介手数料半月、楽器、保証人不要、高齢者相談、事務所可等の物件もご相談下さい。他にもいろいろな物件がございます。お部屋探しはホームセレクト玉出店まで

情報掲載元物件はこちら
この物件にお問い合わせ
お問い合わせの内容を選択してください
06-6655-6711
ホームセレクト (株)匠
営業時間:AM10:00~PM19:30/定休日:年中無休

この物件を取り扱う店舗

ホームセレクト (株)匠 取引態様:仲介
免許番号: 大阪府知事(1)第56965号 / (公社)全日本不動産協会大阪府本部会員 / (公社)近畿地区不動産公正取引協議会加盟
【店舗写真】ホームセレクト (株)匠
大阪府大阪市西成区玉出西2-6-1
AM10:00~PM19:30
定休日: 年中無休
-
06-6655-6711
  • 部屋情報
  • 地図・周辺環境
  • エリアの口コミ

【掲載物件情報について】

・SUUMOは「自ら居住するための住宅」をお探しの方に向けたポータルサイトです。契約者以外の方が使用する(例:第三者に宿泊させる等)ことを目的としたお問合せはご遠慮ください


・SUUMOではユーザーの皆様に最も信頼されるサイトを目指して、物件情報の精度向上に努めております。SUUMOに掲載されている物件情報について「事実と異なる点や誤解を招く表現がある」「成約済の物件が掲載されている」などにお気づきになりましたら、以下のページからご連絡ください

その他の情報

最寄駅から探す

最寄駅の沿線から探す

関連エリアから不動産情報を探す

ページトップへ戻る

お気に入りに追加しました。