"20260208172409:H:0" "20260208172409:H:0" "20260208172409:H:0"

アルテカーサアリビエ東京イースト

この物件にお問い合わせ
お問い合わせの内容を選択してください
03-5615-0370
アエラス日暮里店 (株)アエラス.ER
営業時間:10:00~19:00(時間外対応出来る場合有り)
定休日:年中無休(年末年始などを除く)
お電話の際は、SUUMOを見たとお伝えいただくとスムーズです。
アエラス日暮里店 (株)アエラス.ER
TEL: 03-5615-0370
※映像に誤りがある場合は こちら

パノラマ

アエラス日暮里店 (株)アエラス.ER
TEL: 03-5615-0370

部屋の特徴・設備

  • バストイレ別、バルコニー、エアコン、ガスコンロ対応、フローリング、TVインターホン、浴室乾燥機、オートロック、室内洗濯置、システムキッチン、南向き、角住戸、温水洗浄便座、エレベーター、洗面所独立、2口コンロ、駐輪場、宅配ボックス、光ファイバー、外壁タイル張り、BS・CS、敷金不要、防犯カメラ、全居室収納、分譲賃貸、二人入居相談、バイク置場、ダブルロックキー、外壁コンクリート、3駅以上利用可、駅徒歩5分以内、24時間ゴミ出し可、敷地内ごみ置き場、都市ガス、玄関収納、高速ネット対応、礼金1ヶ月、初期費用カード決済可

物件概要

情報の見方

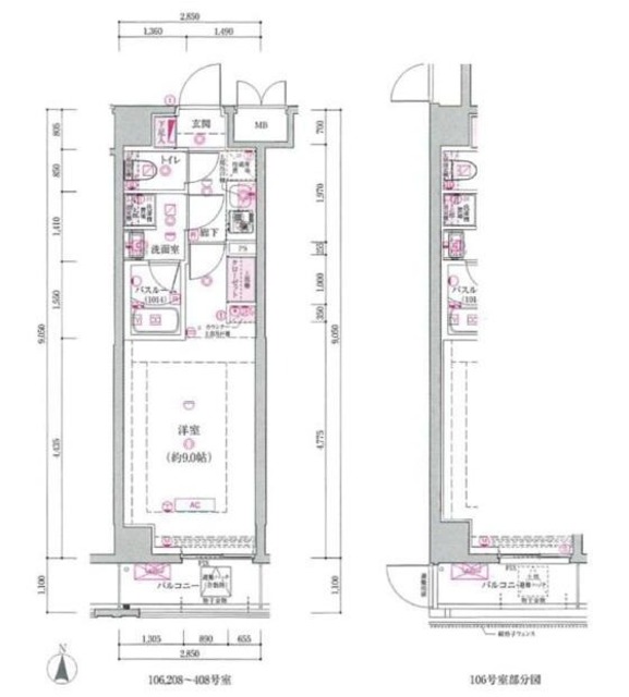
間取り詳細 洋9 構造 鉄筋コン
階建 1階/5階建 築年月 2016年5月
エネルギー
消費性能
- 断熱性能 -
目安光熱費
  • -
損保 駐車場 近隣47m11000円
入居 '26年3月上旬 取引態様 仲介
条件 二人入居可 取り扱い店舗
物件コード
69407226
SUUMO
物件コード
100481007243 総戸数 -
情報更新日 2026/02/07 次回更新予定日 2026/02/15
契約期間
  • 普通借家 2年
保証会社
  • 保証会社利用必 初回:賃料等の80%、月額:賃料等の1.5%
ほか初期費用
  • 合計6.05万円(内訳:カギ交換費用33000円/契約事務手数料11000円/室内抗菌消臭費用16500円)
備考
  • 足立古千谷郵便局まで818m/足立区立舎人図書館まで842m/退去時ハウス清掃費55000円/退去時エアコン分解清掃費16500円/24時間生活サポート1650円月額/更新事務手数料 0.55ヶ月税込み/保証金契約時償却償却に原状回復費用は含まれません/短期解約違約金 1年未満の解約で総賃料の2ヶ月分1年以上2年以内の解約で総賃料の1ヶ月分/駐輪場代借主負担(使用時)/バイク置場代借主負担(使用時)

情報掲載元物件はこちら
この物件にお問い合わせ
お問い合わせの内容を選択してください
アエラス日暮里店 (株)アエラス.ER
営業時間:10:00~19:00(時間外対応出来る場合有り)/定休日:年中無休(年末年始などを除く)

この物件を取り扱う店舗

アエラス日暮里店 (株)アエラス.ER 取引態様:仲介
免許番号: 国土交通大臣(1)第10724号 / (公社)全日本不動産協会東京都本部会員 / (公社)首都圏不動産公正取引協議会加盟
  • 駅徒歩3分以内
  • 多店舗展開
  • 保証人不要相談可
  • 19時以降も営業
  • 女性スタッフ
まずは、どのような事でも「ご相談」ください。お客様の希望物件が見つかるまで、とことんお付き合いさせて頂きます。
東京都荒川区東日暮里6-60-5 COCOSPACE日暮里 2階
10:00~19:00(時間外対応出来る場合有り)
定休日: 年中無休(年末年始などを除く)
JR山手線/日暮里駅 歩1分
JR山手線/西日暮里駅 歩9分
JR常磐線/三河島駅 歩12分
03-5615-0370
  • 部屋情報
  • 地図・周辺環境
  • エリアの口コミ

【掲載物件情報について】

・SUUMOは「自ら居住するための住宅」をお探しの方に向けたポータルサイトです。契約者以外の方が使用する(例:第三者に宿泊させる等)ことを目的としたお問合せはご遠慮ください


・SUUMOではユーザーの皆様に最も信頼されるサイトを目指して、物件情報の精度向上に努めております。SUUMOに掲載されている物件情報について「事実と異なる点や誤解を招く表現がある」「成約済の物件が掲載されている」などにお気づきになりましたら、以下のページからご連絡ください

その他の情報

アエラス日暮里店 (株)アエラス.ERのその他取り扱い物件

全物件を一覧表示する

最寄駅から探す

最寄駅の沿線から探す

関連エリアから不動産情報を探す

ページトップへ戻る

お気に入りに追加しました。