"20260419140643:H:0" "20260419140643:H:0" "20260419140643:H:0"
この物件にお問い合わせ
お問い合わせの内容を選択してください
03-6228-5899
MINATO STYLE 銀座新橋店(株)3B ARROWS
営業時間:10:00~19:00
定休日:毎週水曜、第一第三火曜
お電話の際は、SUUMOを見たとお伝えいただくとスムーズです。

部屋の特徴・設備

  • バストイレ別、ガスコンロ対応、クロゼット、フローリング、TVインターホン、浴室乾燥機、オートロック、室内洗濯置、シューズボックス、温水洗浄便座、脱衣所、洗面所独立、駐輪場、宅配ボックス、3口以上コンロ、防犯カメラ、ペット相談、保証人不要、仲介手数料不要、デザイナーズ、ネット使用料不要、24時間換気システム、外壁コンクリート、庭、24時間ゴミ出し可、敷地内ごみ置き場、都市ガス、年度内入居可

物件概要

情報の見方

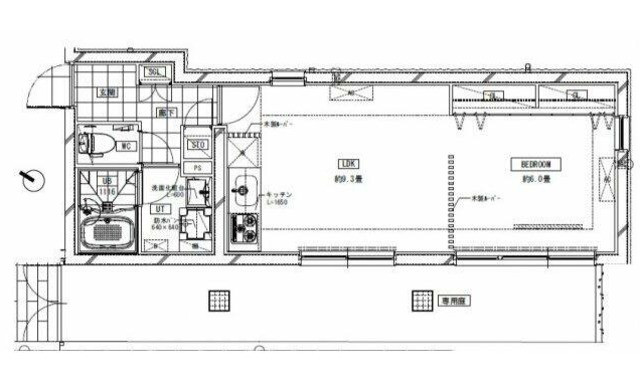
間取り詳細 洋6 LDK9.3 構造 鉄筋コン
階建 3階/5階建 築年月 2016年3月
エネルギー
消費性能
- 断熱性能 -
目安光熱費
  • -
損保 2万円2年 駐車場 近隣100m50000円
入居 取引態様 仲介
条件 二人入居可/ペット相談 取り扱い店舗
物件コード
744221
SUUMO
物件コード
100501896229 総戸数 -
情報更新日 2026/04/18 次回更新予定日 2026/04/26
契約期間
  • 普通借家 2年
仲介手数料
  • 不要
保証会社
  • 保証会社利用必 [会社名]エポス[内容]初回:総賃料の50%、月次1.5%
ほか初期費用
  • 合計2.2万円(内訳:プレミアデスク(指定なし)2.2万円)
ほか諸費用
  • 更新料 賃料1.00ヶ月分
備考
  • [備考]リーガランド目黒 目黒区下目黒2丁目にございます。JR山手線の目黒駅から徒歩7分、目黒川沿いに建ち、ペットの飼育も可能なデザイナーズマンションです。学区域は、下目黒小学校、大鳥中学校です。

情報掲載元物件はこちら
この物件にお問い合わせ
お問い合わせの内容を選択してください
MINATO STYLE 銀座新橋店(株)3B ARROWS
営業時間:10:00~19:00/定休日:毎週水曜、第一第三火曜

店舗・物件ブランドのアピールポイント

この物件を取り扱う店舗

MINATO STYLE 銀座新橋店(株)3B ARROWS 取引態様:仲介
免許番号: 国土交通大臣(1)第10805号 / (公社)全日本不動産協会東京都本部会員 / (公社)首都圏不動産公正取引協議会加盟
  • 年中無休
  • 引越会社紹介
  • 法人契約取扱
  • 社宅・寮対応
  • 売買取扱あり
新橋駅から徒歩1分!!オフィス街の中心に位置する不動産屋です!
東京都港区新橋2-16-1 ニュー新橋ビル9階
10:00~19:00
定休日: 毎週水曜、第一第三火曜
JR山手線/新橋駅 歩1分

03-6228-5899
  • 部屋情報
  • 地図・周辺環境
  • エリアの口コミ

【掲載物件情報について】

・SUUMOは「自ら居住するための住宅」をお探しの方に向けたポータルサイトです。契約者以外の方が使用する(例:第三者に宿泊させる等)ことを目的としたお問合せはご遠慮ください


・SUUMOではユーザーの皆様に最も信頼されるサイトを目指して、物件情報の精度向上に努めております。SUUMOに掲載されている物件情報について「事実と異なる点や誤解を招く表現がある」「成約済の物件が掲載されている」などにお気づきになりましたら、以下のページからご連絡ください

その他の情報

MINATO STYLE 銀座新橋店(株)3B ARROWSのその他取り扱い物件

全物件を一覧表示する

最寄駅から探す

最寄駅の沿線から探す

関連エリアから不動産情報を探す

ページトップへ戻る

お気に入りに追加しました。