"20260212235855:H:0" "20260212235855:H:0" "20260212235855:H:0"
この物件にお問い合わせ
お問い合わせの内容を選択してください
048-767-8732
(株)bond
営業時間:10:00~19:00
定休日:年中無休
お電話の際は、SUUMOを見たとお伝えいただくとスムーズです。
(株)bond
TEL: 048-767-8732
※映像に誤りがある場合は こちら

部屋の特徴・設備

  • バストイレ別、バルコニー、エアコン、ガスコンロ対応、クロゼット、フローリング、TVインターホン、浴室乾燥機、オートロック、室内洗濯置、シューズボックス、システムキッチン、南向き、追焚機能浴室、温水洗浄便座、脱衣所、エレベーター、洗面所独立、洗面化粧台、2口コンロ、駐輪場、宅配ボックス、CATV、BS・CS、対面式キッチン、防犯カメラ、ペット相談、全居室収納、分譲賃貸、オートバス、全居室洋室、保証人不要、敷金1ヶ月、CATVインターネット、二人入居相談、全居室フローリング、ガスレンジ付、CS、ネット専用回線、ネット使用料不要、南面リビング、学生相談、始発駅、3沿線以上利用可、駅徒歩10分以内、高層階、24時間ゴミ出し可、敷地内ごみ置き場、都市ガス、洗面所にドア、南面バルコニー、シューズWIC、玄関収納、BS、礼金1ヶ月、初期費用カード決済可

物件概要

情報の見方

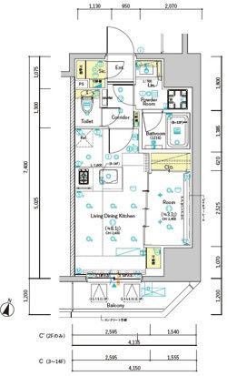
間取り詳細 洋3.1 LDK8.1 構造 鉄筋コン
階建 10階/14階建 築年月 2025年12月
エネルギー
消費性能
- 断熱性能 -
目安光熱費
  • -
損保 2万円2年 駐車場 -
入居 取引態様 仲介
条件 二人入居可/ペット相談 取り扱い店舗
物件コード
-
SUUMO
物件コード
100479218034 総戸数 41戸
情報更新日 2026/02/09 次回更新予定日 2026/02/17
敷金積み増し
  • ペット飼育の場合敷金2ヶ月(総額)
契約期間
  • 定期借家 2年
保証会社
  • 保証会社利用必 月額賃料等の40%(初回保証料)1年毎に1万円(更新保証料)
ほか初期費用
  • 合計2.42万円(内訳:SYLAプレミアムクラブ 24200円)
ほか諸費用
  • 再契約料/新賃料1ヵ月分、室内清掃費用59400円(退去時)
備考
  • 株式会社bondではお客様の多様なニーズにお応え致します!希望の条件に沿った物件のご紹介をさせて頂きます!初期費用クレジット決済可能です!分譲マンション、新築、中古一戸建ての紹介も可能!売買や建物管理も行っておりますのでお気軽にご相談ください!

情報掲載元物件はこちら
この物件にお問い合わせ
お問い合わせの内容を選択してください
048-767-8732
(株)bond
営業時間:10:00~19:00/定休日:年中無休

この物件を取り扱う店舗

(株)bond 取引態様:仲介
免許番号: 埼玉県知事(4)第20302号 / (公社)埼玉県宅地建物取引業協会会員 / (公社)首都圏不動産公正取引協議会加盟
  • 駐車場あり
  • 駅まで車送迎
  • 19時以降も営業
  • 女性スタッフ
  • 賃貸保証対応
お客様の多様なニーズに対応し、素敵なお部屋をお探し致します。どのような条件でもご相談ください。
埼玉県さいたま市中央区下落合2-23-19 ガーデンハウス105
10:00~19:00
定休日: 年中無休
JR京浜東北線/与野駅 歩3分

048-767-8732
  • 部屋情報
  • 地図・周辺環境
  • エリアの口コミ

【掲載物件情報について】

・SUUMOは「自ら居住するための住宅」をお探しの方に向けたポータルサイトです。契約者以外の方が使用する(例:第三者に宿泊させる等)ことを目的としたお問合せはご遠慮ください


・SUUMOではユーザーの皆様に最も信頼されるサイトを目指して、物件情報の精度向上に努めております。SUUMOに掲載されている物件情報について「事実と異なる点や誤解を招く表現がある」「成約済の物件が掲載されている」などにお気づきになりましたら、以下のページからご連絡ください

その他の情報

(株)bondのその他取り扱い物件

全物件を一覧表示する

最寄駅から探す

最寄駅の沿線から探す

関連エリアから不動産情報を探す

ページトップへ戻る

お気に入りに追加しました。