"20251212033805:H:0" "20251212033805:H:0" "20251212033805:H:0"

阪急神戸線 六甲駅 4階建 築36年

この物件にお問い合わせ
お問い合わせの内容を選択してください
078-600-0540
(株)プラン・ドゥ・シー岡本店
営業時間:10:00~19:00
定休日:年中無休
お電話の際は、SUUMOを見たとお伝えいただくとスムーズです。

部屋の特徴・設備

  • バストイレ別、バルコニー、エアコン、ガスコンロ対応、フローリング、TVインターホン、浴室乾燥機、オートロック、室内洗濯置、陽当り良好、システムキッチン、追焚機能浴室、角住戸、温水洗浄便座、脱衣所、洗面所独立、洗面化粧台、宅配ボックス、押入、CATV、光ファイバー、外壁タイル張り、礼金不要、閑静な住宅地、2面採光、敷金不要、3口以上コンロ、グリル付、CS、内装リフォーム済、24時間換気システム、外壁コンクリート、平坦地、耐火構造、和室、都市ガス、洗面所にドア、BS、敷金・礼金不要、IT重説 対応物件、初期費用カード決済可、通風良好

物件概要

情報の見方

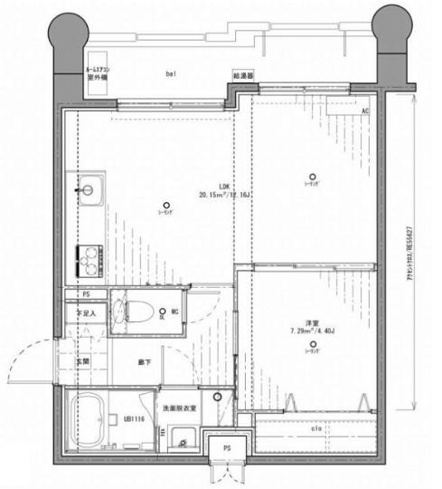
間取り詳細 - 構造 鉄筋コン
階建 1階/4階建 築年月 1990年5月
エネルギー
消費性能
- 断熱性能 -
目安光熱費
  • -
損保 駐車場 近隣100m19800円
入居 取引態様 仲介
条件 二人入居可/子供可 取り扱い店舗
物件コード
1864252
SUUMO
物件コード
100476906534 総戸数 -
情報更新日 2025/12/11 次回更新予定日 2025/12/19
契約期間
  • 普通借家 2年
ほか初期費用
  • 合計4.62万円(内訳:消毒代2.2万円 鍵交換代2.42万円)
備考
  • 初期費用、入居審査の不安など、その他お困りごと是非SumoSumoにご相談下さい★女性スタッフ対応も可能☆

情報掲載元物件はこちら
この物件にお問い合わせ
お問い合わせの内容を選択してください
(株)プラン・ドゥ・シー岡本店
営業時間:10:00~19:00/定休日:年中無休

この物件を取り扱う店舗

(株)プラン・ドゥ・シー岡本店 取引態様:仲介
免許番号: 国土交通大臣(2)第9550号
  • 駅まで車送迎
  • 年中無休
  • 19時以降も営業
  • 駐車場あり
  • 女性スタッフ
ご内覧希望・諸条件の交渉やご相談はSumoSumoまで!
兵庫県神戸市東灘区岡本1-9-9 甲南グランメール岡本1階
10:00~19:00
定休日: 年中無休
阪急神戸線/岡本駅 歩4分
JR東海道本線/摂津本山駅 歩3分
078-600-0540
  • 部屋情報
  • 地図・周辺環境
  • エリアの口コミ

【掲載物件情報について】

・SUUMOは「自ら居住するための住宅」をお探しの方に向けたポータルサイトです。契約者以外の方が使用する(例:第三者に宿泊させる等)ことを目的としたお問合せはご遠慮ください


・SUUMOではユーザーの皆様に最も信頼されるサイトを目指して、物件情報の精度向上に努めております。SUUMOに掲載されている物件情報について「事実と異なる点や誤解を招く表現がある」「成約済の物件が掲載されている」などにお気づきになりましたら、以下のページからご連絡ください

その他の情報

(株)プラン・ドゥ・シー岡本店のその他取り扱い物件

最寄駅から探す

最寄駅の沿線から探す

関連エリアから不動産情報を探す

ページトップへ戻る

お気に入りに追加しました。