"20260110231525:H:0" "20260110231525:H:0" "20260110231525:H:0"
この物件にお問い合わせ
お問い合わせの内容を選択してください
0120-937200
【通話料無料】
(株)石神井ハウジング
営業時間:AM10:00~PM19:00
定休日:第一第三火曜、水曜日
お電話の際は、SUUMOを見たとお伝えいただくとスムーズです。
(株)石神井ハウジング
TEL: 0120-937200【通話料無料】
※映像に誤りがある場合は こちら

パノラマ

(株)石神井ハウジング
TEL: 0120-937200【通話料無料】

部屋の特徴・設備

  • バストイレ別、バルコニー、エアコン、ガスコンロ対応、クロゼット、フローリング、シャワー付洗面台、TVインターホン、浴室乾燥機、オートロック、室内洗濯置、シューズボックス、システムキッチン、角住戸、温水洗浄便座、脱衣所、洗面化粧台、2口コンロ、宅配ボックス、CATV、最上階、ウォークインクロゼット、保証人不要、2沿線利用可、ネット専用回線、ネット使用料不要、保証金不要、築2年以内、24時間換気システム、浴室未使用、トイレ未使用、2駅利用可、3駅以上利用可、駅徒歩10分以内、上階無し、敷地内ごみ置き場、キッチン未使用、プロパンガス、年度内入居可、保証会社利用可、IT重説 対応物件、初期費用カード決済可

物件概要

情報の見方

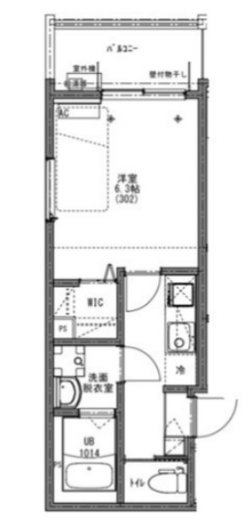
間取り詳細 洋6.3 構造 木造
階建 3階/3階建 築年月 2026年2月
エネルギー
消費性能
- 断熱性能 -
目安光熱費
  • -
損保 駐車場 -
入居 '26年2月中旬 取引態様 仲介
条件 子供不可/事務所利用不可 取り扱い店舗
物件コード
597796
SUUMO
物件コード
100476944139 総戸数 6戸
情報更新日 2026/01/09 次回更新予定日 2026/01/17
契約期間
  • 普通借家 2年
保証会社
  • 保証会社利用必 初回保証料:家賃総額50% 月額保証料:900円/月
ほか初期費用
  • 合計4.4万円(内訳:契約事務手数料1.65万円 鍵交換代2.75万円)
ほか諸費用
  • 更新料 新賃料1.00ヶ月分 室内清掃費用 55000円 月額ケイアイクラブ費 月額2750円
備考
  • ※短期違約金有

情報掲載元物件はこちら
この物件にお問い合わせ
お問い合わせの内容を選択してください
0120-937200 【通話料無料】
(株)石神井ハウジング
営業時間:AM10:00~PM19:00/定休日:第一第三火曜、水曜日

この物件を取り扱う店舗

(株)石神井ハウジング 取引態様:仲介
免許番号: 東京都知事(6)第76800号 / (公社)全日本不動産協会東京都本部会員 / (公社)首都圏不動産公正取引協議会加盟
  • 開店10年以上
  • 駅徒歩3分以内
  • 19時以降も営業
  • 法人契約取扱
  • 賃貸保証対応
創業27年の信頼と実績でとことんお探し致します☆石神井公園エリアおかげさまで口コミ高評価を頂いております☆
東京都練馬区石神井町3-20-14
AM10:00~PM19:00
定休日: 第一第三火曜、水曜日
西武池袋線/石神井公園駅 歩1分
西武新宿線/上石神井駅 バス20分 (バス停)石神井公園駅 歩1分
都営大江戸線/光が丘駅 歩40分
0120-937200
  • 部屋情報
  • 地図・周辺環境
  • エリアの口コミ

【掲載物件情報について】

・SUUMOは「自ら居住するための住宅」をお探しの方に向けたポータルサイトです。契約者以外の方が使用する(例:第三者に宿泊させる等)ことを目的としたお問合せはご遠慮ください


・SUUMOではユーザーの皆様に最も信頼されるサイトを目指して、物件情報の精度向上に努めております。SUUMOに掲載されている物件情報について「事実と異なる点や誤解を招く表現がある」「成約済の物件が掲載されている」などにお気づきになりましたら、以下のページからご連絡ください

その他の情報

(株)石神井ハウジングのその他取り扱い物件

全物件を一覧表示する

最寄駅から探す

最寄駅の沿線から探す

関連エリアから不動産情報を探す

ページトップへ戻る

お気に入りに追加しました。