"20251216133353:H:0" "20251216133353:H:0" "20251216133353:H:0"

京成本線 青砥駅 4階建 築38年

この物件にお問い合わせ
お問い合わせの内容を選択してください
0800-1700507
【通話料無料】
ハウスコム東東京(株)小岩店
営業時間:10:00~18:00
定休日:水曜日 12月25日~1月3日
お電話の際は、SUUMOを見たとお伝えいただくとスムーズです。
ハウスコム東東京(株)小岩店
TEL: 0800-1700507【通話料無料】
※映像に誤りがある場合は こちら

部屋の特徴・設備

  • バルコニー、エアコン、クロゼット、フローリング、室内洗濯置、シューズボックス、角住戸、宅配ボックス、CATV、外壁タイル張り、閑静な住宅地、2面採光、IHクッキングヒーター、出窓、分譲賃貸、敷金1ヶ月、2沿線利用可、ディンプルキー、駅まで平坦、ダブルロックキー、保証金不要、平坦地、2駅利用可、3駅以上利用可、3沿線以上利用可、24時間ゴミ出し可、敷地内ごみ置き場、都市ガス、礼金1ヶ月、IT重説 対応物件

物件概要

情報の見方

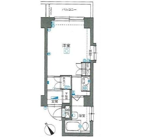
間取り詳細 - 構造 鉄筋コン
階建 2階/4階建 築年月 1988年12月
エネルギー
消費性能
- 断熱性能 -
目安光熱費
  • -
損保 1.6万円2年 駐車場 -
入居 '26年2月中旬 取引態様 仲介
条件 - 取り扱い店舗
物件コード
HC2-606550-210-0152
SUUMO
物件コード
100475751114 総戸数 -
情報更新日 2025/12/15 次回更新予定日 2025/12/30
保証会社
  • 日本セーフティー利用必 契約時賃料総額の50%。以降1年毎に1万円。
ほか初期費用
  • 合計3万円(内訳:鍵交換代3万円)
ほか諸費用
  • 更新料 新賃料1.00ヶ月分
備考
  • 1年未満の解約は、違約金として賃料総額の1ヶ月分がかかります。

情報掲載元物件はこちら
この物件にお問い合わせ
お問い合わせの内容を選択してください
0800-1700507 【通話料無料】
ハウスコム東東京(株)小岩店
営業時間:10:00~18:00/定休日:水曜日 12月25日~1月3日

店舗・物件ブランドのアピールポイント

この物件を取り扱う店舗

ハウスコム東東京(株)小岩店 取引態様:仲介
免許番号: 東京都知事(1)第108283号 / (公財)日本賃貸住宅管理協会会員 / (公社)首都圏不動産公正取引協議会加盟
  • 駅徒歩3分以内
  • 女性スタッフ
  • 開店10年以上
  • 外国語対応可
  • 法人契約取扱
江戸川区・葛飾区・JR総武線沿線のお部屋探しはハウスコム小岩店にお任せ下さい。
東京都江戸川区南小岩7-22-7 丸誠ビルディング1階
10:00~18:00
定休日: 水曜日 12月25日~1月3日
JR総武線/小岩駅 歩1分
京成本線/京成小岩駅 歩20分
京成本線/江戸川駅 歩22分
0800-1700507
  • 部屋情報
  • 地図・周辺環境
  • エリアの口コミ

【掲載物件情報について】

・SUUMOは「自ら居住するための住宅」をお探しの方に向けたポータルサイトです。契約者以外の方が使用する(例:第三者に宿泊させる等)ことを目的としたお問合せはご遠慮ください


・SUUMOではユーザーの皆様に最も信頼されるサイトを目指して、物件情報の精度向上に努めております。SUUMOに掲載されている物件情報について「事実と異なる点や誤解を招く表現がある」「成約済の物件が掲載されている」などにお気づきになりましたら、以下のページからご連絡ください

その他の情報

ハウスコム東東京(株)小岩店のその他取り扱い物件

全物件を一覧表示する

最寄駅から探す

最寄駅の沿線から探す

関連エリアから不動産情報を探す

ページトップへ戻る

お気に入りに追加しました。